« Tilbage

Sommerhus med stor hems og lukket terrasse

Katalognr.: D3198

Baunebjergvej 18, Haurvig

På Baunebjergvej 18 ligger dette pæne og velholdte sommerhus med en dejlig lukket terrasse, som især er praktisk, hvis I har småbørn eller hund med på ferien. Der er 2 soveværelser og en stor hems. Der er en rigtig flot brændeovn, opvaskemaskine, vaskemaskine, tørretumbler og gratis trådløst internet. 2 hunde er tilladt i feriehuset.

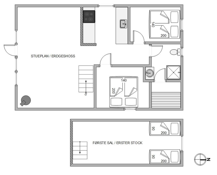
Sommerhus i 2 plan

Der er 2 soveværelser i sommerhuset, som begge er indrettet dobbeltsenge. Ovenpå er der en stor hems, hvor der er 2 enkeltsenge. På badeværelset er der gulvvarme samt en sauna, som er rigtig dejlig efter en lang gåtur ved vandet. Her er desuden bruseniche og vaskemaskine samt tørretumbler.

Køkkenet har en fryser på 35 L, en mikroovn og en opvaskemaskine. Stuen har loft til kip med hyggelige synlige bjælker samt en flot brændeovn, som skaber både hygge og varme. Der er desuden fladskærms-TV, DVD og gratis trådløst internet.

I kan med fordel også benytte jer af den energibesparende varmepumpe til at holde en behagelig temperatur i rummet.

Skøn terrasse

Der er en skøn sydvendt og helt lukket terrasse, som også strækker sig om huset mod vest. Den er derfor ideel for familier med børn og/eller hunde. Desuden er 24 kvm af terrassen overdækket, så I kan sidde i ly for lidt regn.

Der er kun 750 meter til Vesterhavet, og området Haurvig byder på mange muligheder for skønne vandreture i området, som er præget af et smukt hede- og klitlandskab.

Hvide Sande er kun ca. 7 km borte, og her er der et stort udvalg af butikker og restauranter, ligesom der er mange muligheder for lystfiskeri.

Faciliteter

  5 Antal personer
  1 Husdyr tilladt
  7000 m Afstand til indløb
  750 m Afstand til strand
Sauna
Opvaske-maskine
Ikke-ryger

Øvrige faciliteter

Om huset

  Grundareal: 1300 m²
  Husareal: 79 m²
  Byggeår: 1993
  Renoveret: 2017
  Indkøb: 7000 m
  Hav: 750 m
  Personer: 5
  Soveværelser: 2
  Dobbeltsenge: 2
  Børnestole: 1
  Børnesenge: 1
  Dyr
  Brændeovn
  Vaskemaskine
  Opvaske-maskine
  Tørretumbler

Rum

Køkken:
  Køleskab
  Ovn
  Mikroovn

Badeværelse:
  Badeværelser: 1
  Sauna

Underholdning

  CD-afspiller
  DVD-afspiller
  Radio
  Tyske TV kanaler

Udendørs

  Liggestole
  Grill

Betingelser

På ankomstdagen kan nøglen hentes på vores kontor senest kl. 15. Ofte er husene tidligere klar til indflytning, kom gerne ind og spørg om jeres hus er klar. Afrejsetidspunktet er senest kl. 10 eller kl. 9, hvis der er booket slutrengøring.

Beliggenhed

Book huset
Ugekalender 2025
51
52

Varighed

Valgte periode: Uge
-
Pris: Book dette hus »
Kontakt  Ring mig op

Lignende huse

Strandkrogvejen 62
Årgab
Pris fra 7.839 DKK
Se mere
Humlegårdsvej 4G
Bjerregård
Pris fra 7.767 DKK
Se mere
Tornbjerrevej 4
Haurvig
Pris fra 7.657 DKK
Se mere
Julianevej 29
Bjerregård
Pris fra 7.077 DKK
Se mere