« Tilbage

Smukt beliggende, lækkert indrettet sommerhus i Grærup

Katalognr.: 52067

Bjørnedalen 27, Grærup Strand

Hvor det dufter af lyng og hav, hvor lærken triller, og hvor der både er langt mellem husene og mellem badelagnerne på stranden, finder du dette skønne 4-stjernede sommerhus.

Bjørnedalen 27 i Grærup er et rigtigt flot feriehus, renoveret i 2020. Her er der kælet om detaljerne, så den rigtige feriehusstemning er bevaret. Dog har  moderne facilitetter fundet vej, så I ikke behøver give afkald på den daglige luksus, som et moderne badeværelse med gulvvarme og et smart køkken med bl.a. opvaskemaskine kan give jer.

Gratis internet og et lækkert indgangsområde med vaskemaskine er naturlige bestanddele, når livet skal være nemt og bekvemt.

Moderne og bekvemt, lyst, venligt og hyggeligt

Stearinlys på sofabordet og hyggesnak fra spisebordet, hvor der er gang i et spil kort. Du sidder tilbagelænet i den store sofa med en bog på skødet og nyder stemningen. Sådan kunne en aften udspille sig i dette sommerhus, som indbyder til hygge og samvær med et stort sofahjørne.

Flokken kan samles til hygge omkring måltiderne ved det store spisebord. Feriehusets store vinduer giver et skønt lysindfald og udsigt til de lyngbeklædte klitter.

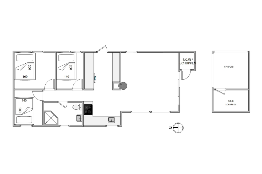
Sommerhuset på Bjørnedalen 27 har 3 soveværelser, som alle er indrettet med dobbeltsenge ? en lidt større (160×200) og 2 senge med 140×200.

Badeværelset er med bruser og naturligvis gulvvarme. Sommerhuset er både smukt og praktisk indrettet, således at der er et godt indgangsområde med skabs- og bordplads og muligheden for at sidde ned, imens skoenes sløjfer skal bindes.

Hængekøjeromantik med lærkesang og duften af lyng

Fra stuen kommer I ud på det store fantastisk terrassedæk, der omkranser feriehuset. Her er der sørget for både ly og læ, så I kan nyde hver en solstråle og kan tilbringe mange timer med solbadning eller grillhygge. For en absolut naturoplevelse kan I lægge jer til rette i hængekøjen og bare nyde nærheden til naturen, der i sommermånederne her i Grærup er fyldt med lærkesang og duften af lyng.

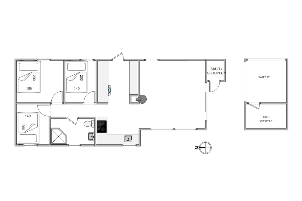
Imens I således nyder feriedagene, står bilen, cyklen og barnevognen tørt og godt i feriehusets carport.

Grærup ? strand og hedelandskab, cykelsti og fiskesø

Elsker du ensomme strande, så er Grærup et rigtigt godt bud. Du kan gå langs stranden til den næste badeby Vejers, spise en is og tage turen gennem skov og den lyngbeklædte hede tilbage. Også for cykelentusiasterne er Grærup et hit ? cykelsti nummer 1 begynder næsten lige ved sommerhuset, og en tur til nærmeste by, Oksbøl, er nemt klaret. Tag fiskestangen med og prøv lykken med at fange en af de store velsmagende ørreder fra den smukke Grærup fiskesø ? en dejlig naturoplevelse og måske er det derefter fisk, der skal på grillen?

Faciliteter

  6 Antal personer
   Husdyr ikke tilladt
  7000 m Afstand til indløb
  600 m Afstand til strand
Opvaske-maskine
Ikke-ryger

Øvrige faciliteter

Om huset

  Grundareal: 1542 m²
  Husareal: 74 m²
  Byggeår: 1978
  Renoveret: 2020
  Indkøb: 7000 m
  Hav: 600 m
  Personer: 6
  Soveværelser: 3
  Dobbeltsenge: 3
  Vaskemaskine
  Opvaske-maskine

Rum

Køkken:
  Køleskab
  Ovn
  Mikroovn

Badeværelse:
  Badeværelser: 1

Underholdning

  Internet
  Radio
  Tyske TV kanaler

Udendørs

  Liggestole

Betingelser

På ankomstdagen kan nøglen hentes på vores kontor senest kl. 15. Ofte er husene tidligere klar til indflytning, kom gerne ind og spørg om jeres hus er klar. Afrejsetidspunktet er senest kl. 10 eller kl. 9, hvis der er booket slutrengøring.

Beliggenhed

Book huset
Ugekalender 2025
03
04
05
06
07
08
09
10
11
12
13
14
15
16
17
18
19
20
21
22
23
24
25
26
27
28
29
30
31
32
33
34
35
36
37
38
39
40
41
42
43
44
45
46
47
48
49
50
51
52
02

Varighed

Valgte periode: Uge
-
Pris: Book dette hus »
Kontakt  Ring mig op

Lignende huse

Mosevråvej 6
Mosevrå
Pris fra 5.427 DKK
Se mere
Solbærvangen 12
Jegum Ferieland
Pris fra 5.373 DKK
Se mere
Møllevangen 19
Jegum Ferieland
Pris fra 4.853 DKK
Se mere
Blomstervangen 39
Jegum Ferieland
Pris fra 4.913 DKK
Se mere