« Tilbage

Stråtækt sommerhus til 4 personer i Fanø Bad

Katalognr.: 71152

Dalen 78, Fanø Bad

På Dalen 78 finder I et idyllisk beliggende, stråtækt sommerhus. Beliggende på en kuperet naturgrund og ned til en lille sø, kan I nyde naturen ved feriehuset. Med sine 121 kvadratmeter er det charmerende sommerhus en ideel ramme for afslapning og hygge for den lille familie eller 2 par.

Feriestemning og moderne faciliteter

Man mærker feriestemningen straks, man træder ind ad døren til Dalen 78. De lyse gulve og hvidmalede, træbeklædte vægge og lofter skaber et lyst og venligt miljø, som byder velkommen. Med ild i pejsen, kan I slappe af i sofaen eller trække jer tilbage med en god bog på kølige aftener. I kan naturligvis også slappe af til en god film.

Feriehuset er udstyret med alle moderne bekvemmeligheder, der gør jeres ophold hyggeligt og bekvemt. Køkkenet er fuldt udstyret med blandt andet induktionskomfur og opvaskemaskine, så I kan hygge jer med at tilberede lækre hjemmelavede måltider. Den omkostnings- og energibesparende luft-til-luft varmepumpe sørger for behagelige temperaturer i feriehuset.

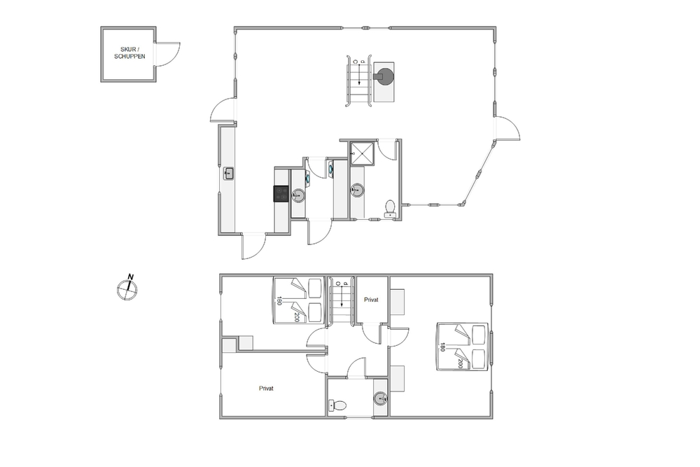
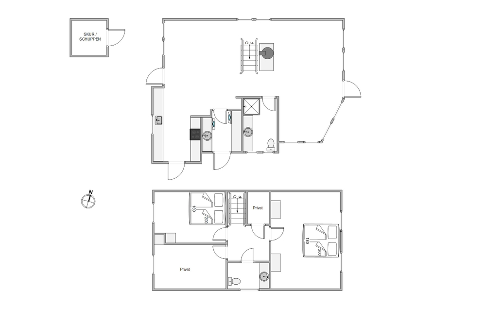
Der er både badeværelse og gæstetoilet med gulvvarme i feriehuset, hvilket gør logistikken nemmere når man er flere. I kan fordele sengepladserne i 3 indbydende soverum, 2 med dobbeltsenge og 1 værelse med 2 enkeltsenge, så I kan indrette jer, som det passer jer bedst.

Udendørs hygge på terrassen

Udendørslivet er noget helt særligt her på Fanø, og sommerhuset i Fanø Bad har både en åben og en afskærmet terrasse, som giver jer mulighed for at nyde udendørs livet i fulde drag. Terrassen er udstyret med komfortable havemøbler og en grill, så I kan tilberede lækre måltider udendørs og nyde dem under åben himmel. Med en godt 1500 kvadratmeter stor naturgrund er der plads til leg og afslapning.

Ideel beliggenhed tæt på Vesterhavet

Med kun 800 meter til Vesterhavet, I kan hurtigt tage en hurtig dukkert eller en afslappet gåtur langs stranden. Derudover er der kun 1100 meter til nærmeste indkøb, hvor I kan finde alt, hvad I behøver til jeres ophold. Den smukke beliggenhed gør det nemt at kombinere afslapning på terrassen med spændende udflugter i det naturskønne område.

Faciliteter

  4 Antal personer
   Husdyr ikke tilladt
  1100 m Afstand til indløb
  800 m Afstand til strand
Opvaske-maskine
Ikke-ryger

Øvrige faciliteter

Om huset

  Grundareal: 1537 m²
  Husareal: 121 m²
  Byggeår: 1990
  Renoveret: 2015
  Indkøb: 1100 m
  Hav: 800 m
  Personer: 4
  Soveværelser: 3
  Enkeltsenge: 2
  Dobbeltsenge: 2
  Brændeovn
  Opvaske-maskine

Rum

Køkken:
  Køleskab
  Ovn
  Mikroovn

Badeværelse:
  Badeværelser: 1
  Toiletter: 1

Underholdning

  Internet
  Tyske TV kanaler

Udendørs

  Liggestole
  Grill

Betingelser

På ankomstdagen kan nøglen hentes på vores kontor senest kl. 15. Ofte er husene tidligere klar til indflytning, kom gerne ind og spørg om jeres hus er klar. Afrejsetidspunktet er senest kl. 10 eller kl. 9, hvis der er booket slutrengøring.

Beliggenhed

Book huset
Ugekalender 2026
03
DKK
7.533
04
DKK
7.533
05
DKK
7.533
06
DKK
7.533
07
DKK
7.663
08
DKK
7.533
09
DKK
7.533
10
DKK
7.533
11
DKK
7.533
12
DKK
7.533
13
DKK
7.803
14
15
DKK
9.153
16
DKK
7.663
17
DKK
7.663
18
DKK
7.803
19
DKK
7.803
20
DKK
7.943
21
DKK
7.803
22
DKK
7.943
23
DKK
7.803
24
DKK
7.803
25
DKK
7.943
26
DKK
7.943
27
DKK
16.403
28
DKK
16.563
29
DKK
14.743
30
DKK
15.023
31
DKK
15.023
32
DKK
15.023
33
DKK
14.743
34
DKK
11.553
35
DKK
9.753
36
37
DKK
7.943
38
DKK
7.803
39
DKK
7.803
40
DKK
7.803
41
DKK
7.803
42
DKK
7.943
43
DKK
9.153
44
DKK
7.943
45
46
47
48
49
50
51
52
53
02
DKK
7.493

Varighed

Valgte periode: Uge
-
Pris: Book dette hus »
Kontakt  Ring mig op

Lignende huse

Paradisvej 54
Rindby
Pris fra 9.883 DKK
Se mere
Søndermarken 17
Sønderho
Pris fra 17.113 DKK
Se mere
Toppen 10
Rindby
Pris fra 9.003 DKK
Se mere
Skovsletten 6
Fanø Bad
Pris fra 12.393 DKK
Se mere