« Tilbage

Femstjernet feriehus med udespa og infrarød sauna i Blåvand

Katalognr.: 60389

Gl. Skolevej 2K, Blåvand

Vil I gerne nyde masser af afslapning på jeres næste ferie og samtidig bo tæt på både strand og by? Så er dette feriehus på Gl. Skolevej 2K i Blåvand et oplagt valg! Det femstjernede feriehus byder på masser af afslapning i udespaen og i den infrarøde sauna. Derudover er feriehuset beliggende kun 950 meter fra stranden og 500 meter fra den nærmeste indkøbsmulighed. I feriehuset er der plads til op til 6 personer og 1 hund.

Lækker terrasse med udespa

Et af sommerhusets højdepunkter finder I på terrassen. Her står udespaen nemlig klar til at forkæle jer med masser af afslapning på jeres ferie i Blåvand. Det er helt fantastisk at sidde i det varme, boblende vand under åben himmel ? især om aftenen under stjernehimmelen.

Udover udespaen har I også havemøbler og liggestole til rådighed på terrassen, hvori I kan sætte jer godt til rette på et godt spot i solen. Når I slapper af på terrassen, kan I også sagtens have jeres hund med ude. Terrassen er nemlig lukket, så jeres hund ikke smutter på opdagelse på egen hånd.

Efter en dejlig feriedag kan I så småt begynde at tænde op i grillen, som I også har til rådighed på terrassen. Steg nogle gode bøffer og nyd en lækker middag på terrassen i dejligt selskab. Markisen må ikke benyttes. 

Lys og hyggelig indretning ? badeværelse med infrarød sauna

Når I træder ind i sommerhuset på Gl. Skolevej 2K i Blåvand vil I straks blive mødt af den lyse og hyggelige indretning, der kommer til at danne rammen om jeres ferie. Her vil I helt sikkert straks føle jer hjemme!

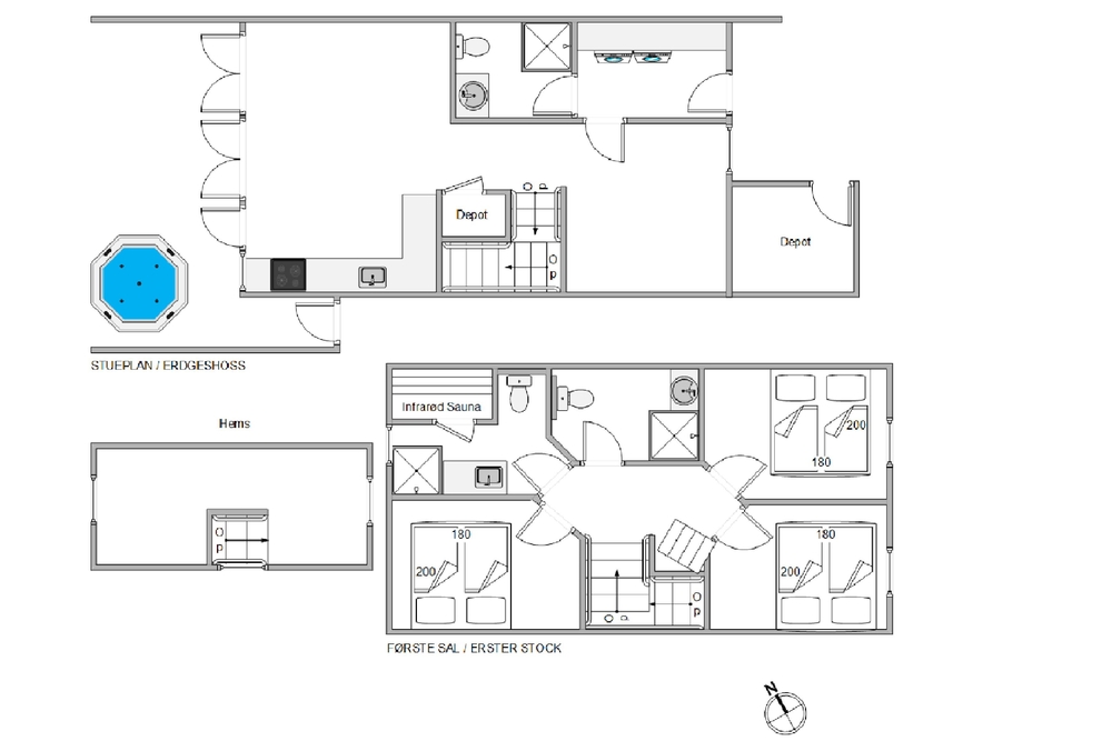
I det 133 kvadratmeter store sommerhus er der 3 gode soveværelser, der er indrettet med en dobbeltseng hver, hvor I kan få jeres skønhedssøvn på ferien. Udover de 3 soveværelser er der også en hems i sommerhuset, hvor der er ekstra sovepladser.

I sommerhuset har I desuden hele 3 badeværelser, der alle er udstyret med gulvvarme, så her er der hverken risiko for kø eller kolde fødder fra morgenstunden. På det ene af de 3 badeværelser finder I sommerhusets infrarøde sauna, der inviterer til afslappende stunder på ferien.

Til hyggelige feriestunder for hele familien kan I samles i sommerhusets stue, hvor I kan se en god film i tv?et. I stuen er der gulvvarme, og derudover har sommerhuset en varmepumpe, der sørger for et godt indeklima på jeres ferie. Mens I slapper af i stuen, står opvaskemaskinen, vaskemaskinen og tørretumbleren for det praktiske husarbejde.

God beliggenhed i Blåvand ? kun 950 meter fra stranden og Vesterhavet

Det femstjernede sommerhus på Gl. Skolevej 2K i Blåvand har en skøn beliggenhed, hvor I både bor tæt på stranden, Vesterhavet og byen. Fra sommerhuset har I blot 950 meter til stranden og Vesterhavet, og dermed kan I hurtigt nå frem, når I trænger til en frisk dukkert eller en skøn gåtur langs stranden.

Derudover har I kun 500 meter til jeres nærmeste indkøbsmulighed i Blåvand. Her har I både mulighed for at købe ind i byens supermarkeder og de forskellige specialbutikker. Vil I selv slippe for at lave mad, kan I slå et smut forbi byens skønne spisesteder.

Faciliteter

  6 Antal personer
  1 Husdyr tilladt
  200 m Afstand til indløb
  1000 m Afstand til strand
Opvaske-maskine
Ikke-ryger

Øvrige faciliteter

Om huset

  Grundareal: 200 m²
  Husareal: 133 m²
  Byggeår: 2019
  Indkøb: 200 m
  Hav: 1000 m
  Personer: 6
  Soveværelser: 3
  Dobbeltsenge: 3
  Børnestole: 1
  Børnesenge: 1
  Dyr
  Vaskemaskine
  Opvaske-maskine
  Tørretumbler

Rum

Køkken:
  Køleskab
  Ovn
  Mikroovn

Badeværelse:
  Badeværelser: 3

Underholdning

  Radio
  Tyske TV kanaler

Udendørs

  Liggestole
  Grill

Betingelser

På ankomstdagen kan nøglen hentes på vores kontor senest kl. 15. Ofte er husene tidligere klar til indflytning, kom gerne ind og spørg om jeres hus er klar. Afrejsetidspunktet er senest kl. 10 eller kl. 9, hvis der er booket slutrengøring.

Beliggenhed

Book huset
Ugekalender 2025
46
DKK
4.227
47
DKK
4.227
48
49
DKK
4.227
50
DKK
4.227
51
DKK
4.227
52
DKK
8.597

Varighed

Valgte periode: Uge
-
Pris: Book dette hus »
Kontakt  Ring mig op

Lignende huse

Skippervej 38a
Blåvand
Pris fra 13.457 DKK
Se mere
Sandtoftevej 35
Blåvand
Pris fra 14.287 DKK
Se mere
Karl Postsvej 9B
Blåvand
Pris fra 14.197 DKK
Se mere
Hestehaven 41
Blåvand
Pris fra 11.917 DKK
Se mere