« Tilbage

Hyggeligt feriehus til 6 personer med sauna og lækkert udeareal

Katalognr.: 50006

Gulspurvevej 4, Vejers

I Vejers Strands skønne ferieområde ligger dette hyggelige feriehus til 6 personer. Huset er rummeligt og velholdt, og I får blandt andet jeres egen sauna og et lækkert udendørsareal med en stor terrasse og masser af små hyggekroge. Helt ideelt til den næste familieferie.

Afslappende ferie med wellness og styr på det praktiske

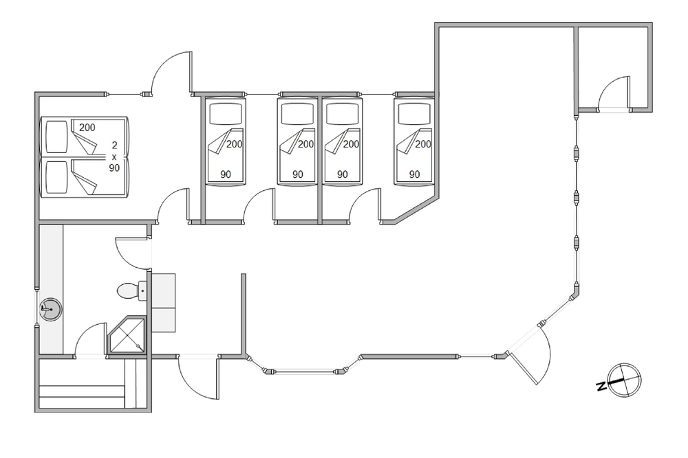
Det 105 kvadratmeter store feriehus på Gulspurvevej 4 er det perfekte valg til familien. Det velindrettede hus rummer god plads til 6 personer, og indretningen er enkel og hyggelig med varme træfarver og masser af lys fra de store vinduer og ovenlysvinduer.

Her er lagt op til en afslappende ferie med mulighed for lidt ekstra wellness. Foran den knitrende brændeovn kan I slappe af med en god bog eller et glas rødvin på de sene aftener, og har I brug at koble endnu mere fra, kan I tænde op i husets sauna og nyde feriefreden i varmen.

Der er sørget for det praktiske, og med en opvaskemaskine og en vaskemaskine bliver ferien let som en leg.

Skønt udeareal med stor terrasse og legeplads til børnene

Her får I ikke kun et herligt hus, men også et super skønt udendørsareal! En i alt 110 kvadratmeter stor terrasse løber rundt om huset, og både havemøbler, liggestole og grill er tilgængeligt til de varme sommerdage.

Der er masser af små hyggekroge, og beliggenheden er læfyldt og naturskøn. Og de små feriegæster er med garanti godt underholdt på den lille legeplads med både gyngestativ, sandkasse og legehus.

Vejers? flotte badestrand og charmerende bymidte er helt sikkert et besøg værd, og I finder underholdning for hele familien kun kort vej fra ferieadressen.

Faciliteter

  6 Antal personer
  1 Husdyr tilladt
  800 m Afstand til indløb
  1800 m Afstand til strand
Sauna
Opvaske-maskine
Ikke-ryger

Øvrige faciliteter

Om huset

  Grundareal: 1500 m²
  Husareal: 105 m²
  Byggeår: 2005
  Indkøb: 800 m
  Hav: 1800 m
  Personer: 6
  Soveværelser: 3
  Enkeltsenge: 4
  Dobbeltsenge: 1
  Dyr
  Brændeovn
  Vaskemaskine
  Opvaske-maskine
  Tørretumbler

Rum

Køkken:
  Køleskab
  Ovn
  Mikroovn

Badeværelse:
  Badeværelser: 1
  Sauna

Underholdning

  CD-afspiller
  DVD-afspiller
  Radio
  Tyske TV kanaler

Udendørs

  Liggestole
  Grill

Betingelser

På ankomstdagen kan nøglen hentes på vores kontor senest kl. 15. Ofte er husene tidligere klar til indflytning, kom gerne ind og spørg om jeres hus er klar. Afrejsetidspunktet er senest kl. 10 eller kl. 9, hvis der er booket slutrengøring.

Beliggenhed

Book huset
Ugekalender 2026
07
08
09
10
11
12
13
14
15
16
17
18
19
20
21
22
23
24
25
26
27
28
29
DKK
11.233
30
31
DKK
12.123
32
DKK
12.123
33
DKK
11.233
34
DKK
8.533
35
DKK
7.833
36
37
38
39
DKK
5.943
40
DKK
5.943
41
DKK
5.943
42
43
44
DKK
6.533
45
46
47
48
49
50
51
52
DKK
7.833
53
DKK
11.233

Varighed

Valgte periode: Uge
-
Pris: Book dette hus »
Kontakt  Ring mig op

Lignende huse

Peders Vej 3
Vejers
Pris fra 9.883 DKK
Se mere
Nordvej 37
Vejers
Pris fra 9.293 DKK
Se mere
Spurvevej 4
Vejers
Pris fra 9.673 DKK
Se mere
Kratvej 10
Vejers
Pris fra 7.933 DKK
Se mere