« Tilbage

Kvalitetshus tæt på strand og med hund tilladt

Katalognr.: E4905

Gyvelvej 12, Årgab

Fantastisk lækkert og velholdt sommerhus med førsteklasses beliggenhed kun et par minutters gang fra stranden og i gåafstand fra Hvide Sande. Huset er smagfuldt indrettet og den perfekte ramme om en herlig ferie.

Et flot kvalitetshus med god plads til hele familien

Ønsker man en ferie i et lækkert sommerhus og med god plads til alle og med Vesterhavet som nabo, så er dette hus i Årgab et rigtigt godt bud. Huset er bygget i 2009, og det har praktiske klinkegulve i opholdsrummene og trægulve i soveværelserne, som udover at være rengøringsvenlige tilmed er med gulvvarme. Der er energibesparende jordvarme i huset, som giver en behagelig varme til fornuftige priser.

Huset ligger tæt på stranden og Vesterhavet

Huset og området er et eldorado for familien med børn og hund. Vesterhavet duftes, høres og fornemmes tydeligt udenfor huset, stranden er perfekt til lange traveture og børn vil elske de spændende klitter. Har man cykler med hjemmefra er der et stort og godt stisystem omkring huset, som forbinder hele området mellem Bjerregård og Hvide Sande.

Huset er velegnet til ferie året rundt

Der er altid noget at give sig til i dette hus og i dette område. Huset er skønt i alle årets måneder, og området er særdeles charmerende hele året igennem. Fra de skønne sommerdage med blå himmel og til de barske efterårs- og vinterdage med blæst, rusk og regn, er Holmsland Klit altid unikt. Hvide Sande er dejligt tæt på og her finder du mange gode restauranter og gode indkøbsmuligheder.

Faciliteter

  7 Antal personer
  1 Husdyr tilladt
  2000 m Afstand til indløb
  150 m Afstand til strand
Sauna
Opvaske-maskine
Ikke-ryger

Øvrige faciliteter

Om huset

  Grundareal: 1400 m²
  Husareal: 120 m²
  Byggeår: 2009
  Renoveret: 2018
  Indkøb: 2000 m
  Hav: 150 m
  Personer: 7
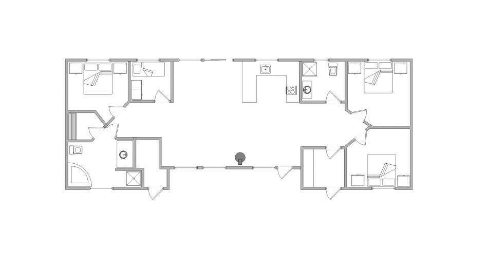
  Soveværelser: 4
  Enkeltsenge: 1
  Dobbeltsenge: 3
  Børnestole: 1
  Børnesenge: 1
  Dyr
  Brændeovn
  Vaskemaskine
  Opvaske-maskine
  Tørretumbler

Rum

Køkken:
  Køleskab
  Ovn

Badeværelse:
  Badeværelser: 2
  Sauna

Underholdning

  Internet
  CD-afspiller
  DVD-afspiller
  Radio
  Tyske TV kanaler

Udendørs

  Liggestole
  Grill

Betingelser

På ankomstdagen kan nøglen hentes på vores kontor senest kl. 15. Ofte er husene tidligere klar til indflytning, kom gerne ind og spørg om jeres hus er klar. Afrejsetidspunktet er senest kl. 10 eller kl. 9, hvis der er booket slutrengøring.

Beliggenhed

Book huset
Ugekalender 2026
06
DKK
6.663
07
08
09
DKK
6.663
10
11
12
13
14
15
16
17
18
19
20
21
22
23
24
25
26
27
DKK
11.133
28
DKK
14.783
29
30
31
32
33
34
DKK
13.193
35
36
37
38
39
40
41
42
43
44
45
DKK
6.663
46
DKK
6.663
47
DKK
6.663
48
49
50
51
52
DKK
11.133
53

Varighed

Valgte periode: Uge
-
Pris: Book dette hus »
Kontakt  Ring mig op

Lignende huse

Bjerregårdsvej 395
Bjerregård
Pris fra 17.037 DKK
Se mere
Skodbjergevej 26
Skodbjerge
Pris fra 9.013 DKK
Se mere
Bjerregårdsvej 464
Bjerregård
Pris fra 9.083 DKK
Se mere
Bjerregårdsvej 227
Bjerregård
Pris fra 14.523 DKK
Se mere