« Tilbage

Kvalitetshus i Søndervig med lækker udespa

Katalognr.: i6950

Hafavej 161, Søndervig

Beliggende på Hafavej 161 i Søndervig, med en moderne indretning og en lækker udendørs spa på terrassen finder I dette kvalitetshus. Velegnet til 2 familier, tæt på byen og Vesterhavet. I sommerhuset finder I mere end god plads til maksimalt otte personer, og I vil med sikkerhed føle jer godt til rette. Huset skaber masser af hjemlige rammer for enhver, og med internet i huset og to hunde tilladt, er der tænkt på jeres velvære og afslapning.

Sommerhuset, hvor alle kan slappe af og nyde ferien

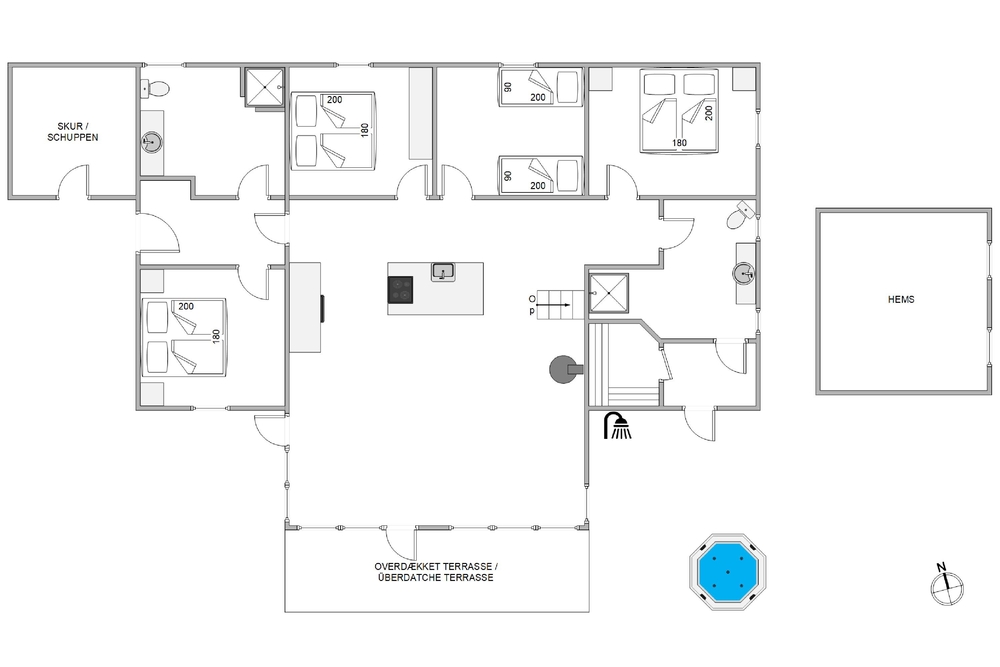
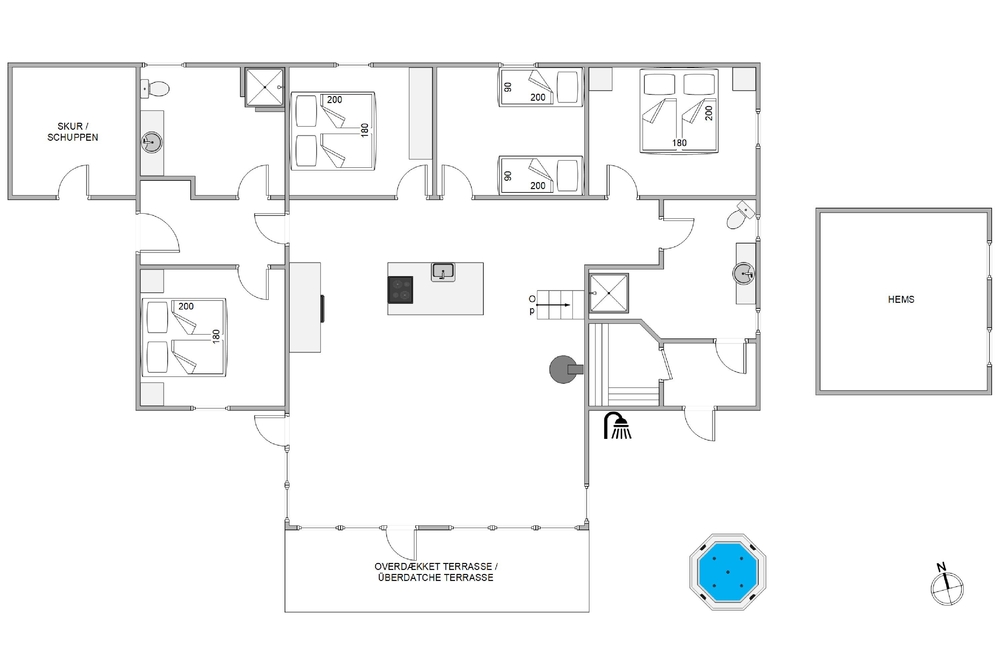
Et lækkert sommerhus i en flot og moderne arkitektur og med god plads til otte personer. Der er loft til kip i køkken og stue og store flotte vinduespartier, som gør huset særdeles indbydende. Huset rummer alle de faciliteter, man forventer i et nyere og spændende sommerhus, hvor både børn og voksne kan hygge sig sammen og separat. I sommerhuset finder fire gode og store soveværelser, der alle hver især er udstyret med fjernsyn.

Samlingspunktet for familien er helt klart det store køkken-alrum. Her er dejligt lyst og moderne, og masser af mulighed for at nyde noget kvalitetstid med hinanden. Hvis I også ønsker at skrue endnu mere op for hyggen og varmen, kan I gøre dette ved hjælp af brændeovnen. Tænd op i brændeovnen, sæt jer tilbage, og bare nyd den varme og hygge som den spreder.

I dette sommerhus er det desuden tilladt at medbringe 2 hunde, så her kan hele familien også samles. Huset er særdeles rengøringsvenligt, idet der er klinkegulve med gulvvarme rundt omkring i hele huset.

Hjemmewellness og skøn terrasse

I sommerhuset finder I to store badeværelser, der ligesom resten af sommerhuset har gulvvarme, så I ikke behøver at bekymre jer om kolde fusser om morgenener. For jeres velvære og så I kan nyde jeres ferie endnu mere, er huset udstyret med flere forskellige wellness muligheder. Der er en flot og stor udespa placeret på den sydøstlige terrasse, her er der rigelig plads til fire personer. Den er brugbar hele året rundt og en sådan terrasse finder man ikke ved mange huse. Der er også en lækker sauna, der sikrer at I for alvor kan blive varmet igennem og nyde noget afslapning.

Skøn plænegrund på Hafavej 161

Huset ligger på en skøn plænegrund, som er meget velegnet til leg for børnene eller en rask fodboldkamp mellem de to opstillede fodboldmål. Der er også gynge og en sandkasse til de helt små. De voksne kan nyde børnenes leg fra den skønne terrasse, som er delvist overdækket mod syd.

Området giver mulighed for mange skønne vandreture, Vesterhavet er kun 400 m fra huset, ligesom Søndervig centrum er inden for gåafstand. Sandskulpture og ligesom områdets 18 hullers golfbane ligger tæt på sommerhuset.

Faciliteter

  8 Antal personer
  1 Husdyr tilladt
  800 m Afstand til indløb
  400 m Afstand til strand
Sauna
Opvaske-maskine
Ikke-ryger

Øvrige faciliteter

Om huset

  Grundareal: 1200 m²
  Husareal: 120 m²
  Byggeår: 2008
  Indkøb: 800 m
  Hav: 400 m
  Personer: 8
  Soveværelser: 4
  Dobbeltsenge: 4
  Børnestole: 1
  Børnesenge: 1
  Dyr
  Brændeovn
  Vaskemaskine
  Opvaske-maskine
  Tørretumbler

Rum

Køkken:
  Køleskab
  Ovn
  Mikroovn

Badeværelse:
  Badeværelser: 2
  Sauna

Underholdning

  CD-afspiller
  Tyske TV kanaler

Udendørs

  Liggestole
  Grill

Betingelser

På ankomstdagen kan nøglen hentes på vores kontor senest kl. 15. Ofte er husene tidligere klar til indflytning, kom gerne ind og spørg om jeres hus er klar. Afrejsetidspunktet er senest kl. 10 eller kl. 9, hvis der er booket slutrengøring.

Beliggenhed

Book huset
Ugekalender 2025
46
47
48
49
DKK
5.887
50
51
52

Varighed

Valgte periode: Uge
-
Pris: Book dette hus »
Kontakt  Ring mig op

Lignende huse

Nordsøvej 270
Søndervig
Pris fra 12.397 DKK
Se mere
Krogen 21
Houvig
Pris fra 12.277 DKK
Se mere
Hvidbjergvej 2
Søndervig
Pris fra 12.357 DKK
Se mere
Frans Julius Vej 50
Søndervig
Pris fra 14.347 DKK
Se mere