« Tilbage

Spændende og lyst feriehus fyldt af aktiviteter

Katalognr.: 60559

Hans Thuesensvej 20, Blåvand

Er I på jagt efter et spændende aktivitetshus med et unikt opholdsrum i Blåvand ? så er Hans Thuesensvej 20 et godt bud! Et stort feriehus på 234 m2 til 10 personer, hvor I absolut ikke kommer til at kede jer. Feriehuset, der er renoveret i 2019, er indrettet i smuk personlig stil og i aktivitetsrummet kan I spille både dart, bordfodbold og billard. Ret unikt har den store plænegrund både en bålplads og et shelter, ligesom I kan slappe af i udespaen eller udesaunaen.

Direkte ved feriehuset er der mulighed for at oplade el-bilen. (type 2 stik)

Lyst og indbydende sommerhus med aktivitetsrum og udestue

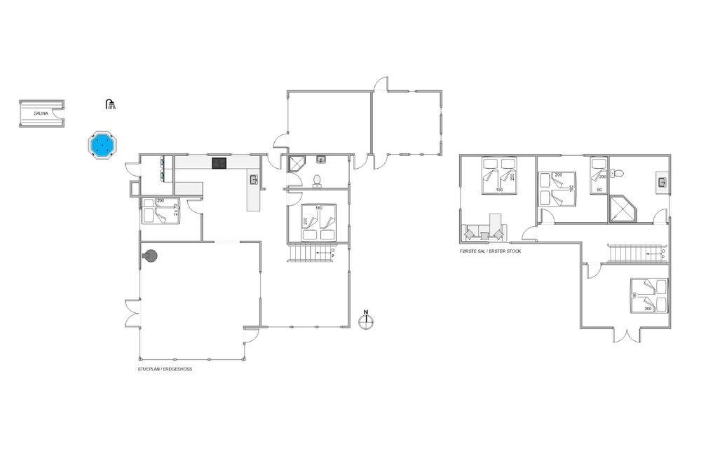
Et stort og rummeligt feriehus i to plan, hvor I straks mærker varmen og de hjemlige fornemmelser. Her er kræset omkring hyggen og takket være udestuen og de store vinduespartier, strømmer lyset ind. Feriehuset er fyldt med skønne kroge såsom udestuen, der forlænger sommerhalvåret. Aktivitetsrummet er udstyret med alt, hjertet begærer, for her findes alt fra poolbord, spillekonsol, dart og bordfodbold ? så det er bare med at finde feriens mester.

Derudover er det store åbne opholdsrum et helt fantastisk sted, hvor I vil komme til at tilbringe mange timer. Køkken, spiseplads og stue er i åben forbindelse, så I kan være sammen, selvom I har gang i hvert jeres. I det veludstyrede køkken med bl.a. 2 ovne kan I lave lækker mad, som I senere skal nyde omkring bordet. Efter maden klarer opvaskemaskinen oprydningen, så tiden kan bruges på hygge og samvær. Nyd aftenerne sammen med en quiz eller en god film, mens ilden knitrer i pejsen. På de kolde dage kan I også gøre brug af den energibesparende varmepumpe. Der er gulvvarme under klinkerne i hele underetagen undtagen i soveværelserne.

To af feriehusets fem soveværelser ligger i stueetagen sammen med et badeværelse med bruser og gulvvarme. Ovenpå findes de øvrige soveværelser og det andet badeværelse. Et værelse er med køjesenge med en bred underkøje, mens de andre fire har dobbeltsenge. To af soveværelserne har desuden eget TV. Fra førstesalens ene værelse kan man nyde altanen og udsigten udover den grønne have.

Stor have til både leg og afslapning i det fri

Feriehuset på Hans Thuesensvej 20 ligger på en stor 2214 m2 plænegrund, hvor I virkelig har mulighed for at nyde ferien i det fri. Her er noget for enhver, uanset om I er til solbadning, boldspil på plænen eller skønne grillaftner med sine nærmeste. Aktivitetsrummet gemmer på et utal af spil og legeredskaber, som I frit kan benytte, ligesom fodboldmålene står klar til en frisk dyst.

I haven er der også mulighed for at komme helt ned i gear. Her venter udespaen og udesaunaen blot på jer. Det er helt fantastisk at sidde under det varme boblende vand, mens stjernerne danser på himlen ? dejlig beroligende og et afbræk fra den travle hverdag. I sommermånederne kan I ovenikøbet tage en kølig afskyldning under udebruseren. Som noget ret særligt har I også jeres eget shelter i haven, ligesom bålpladsen sætter aftenstemning i højsædet.

På terrasserne er der naturligvis komfortable havemøbler, hvor I kan slappe af og nyde et godt måltid fra grillen, ligesom liggestolene inviterer til afslapning og måske en lille middagslur. Feriehusets redskabsrum er åbent låsbart, så I kan roligt sætte jeres cykler ind her.

Centralbeliggende og oplevelserne tæt på

Beliggenheden i den sydvestlige del af Blåvand er super. Det er roligt, tæt på stranden og alligevel centralt, kun 300 meter fra det brusende Vesterhav og cirka 300 meter til campingpladsens veludstyrede butik. Restauranter, butikker, bagerier og iscaféer samt talrige indkøbsmuligheder i Blåvands centrum ligger inden for gåafstand.

I nærområdet kan I tage på udflugt til fyrtårnet I Blåvandshuk, Tirpitz-museet eller tage børnene med i Blåvand Zoo. Lidt længere væk har vi LEGOLAND eller shoppingcenteret, Broen, i Esbjerg.

Faciliteter

  10 Antal personer
  1 Husdyr tilladt
  300 m Afstand til indløb
  300 m Afstand til strand
Opvaske-maskine
Ikke-ryger

Øvrige faciliteter

Om huset

  Grundareal: 2214 m²
  Husareal: 234 m²
  Byggeår: 2015
  Indkøb: 300 m
  Hav: 300 m
  Personer: 10
  Soveværelser: 5
  Dobbeltsenge: 4
  Køjesenge: 1
  Dyr
  Brændeovn
  Vaskemaskine
  Opvaske-maskine
  Tørretumbler

Rum

Køkken:
  Køleskab
  Ovn
  Mikroovn

Badeværelse:
  Badeværelser: 2

Underholdning

  Tyske TV kanaler

Udendørs

  Liggestole
  Grill

Betingelser

På ankomstdagen kan nøglen hentes på vores kontor senest kl. 15. Ofte er husene tidligere klar til indflytning, kom gerne ind og spørg om jeres hus er klar. Afrejsetidspunktet er senest kl. 10 eller kl. 9, hvis der er booket slutrengøring.

Beliggenhed

Book huset
Ugekalender 2025
46
DKK
9.637
47
48
DKK
9.637
49
DKK
9.637
50
DKK
9.637
51
DKK
9.637
52

Varighed

Valgte periode: Uge
-
Pris: Book dette hus »
Kontakt  Ring mig op

Lignende huse

Fyrvej 9
Blåvand
Pris fra 26.097 DKK
Se mere
Skippervej 38a
Blåvand
Pris fra 13.457 DKK
Se mere
Søren Gades Mark 22A
Blåvand
Pris fra 13.853 DKK
Se mere
Vesterballevej 34A
Ho
Pris fra 12.087 DKK
Se mere