« Tilbage

Skønt feriehus med swimmingpool, spabad og sauna i Houstrup

Katalognr.: 30518

Hedevang 8, Houstrup

På Hedevang 8 i Houstrup står dette sommerhus klar til jeres næste ferie! Sommerhuset rummer plads til op til 8 personer, der kan nyde en ferie, hvor der både er mulighed for mange sjove timer i swimmingpoolen og afslappende stunder i spabad og sauna. I sommerhuset er op til 2 hunde også hjerteligt velkomne!

Swimmingpool, spabad og sauna

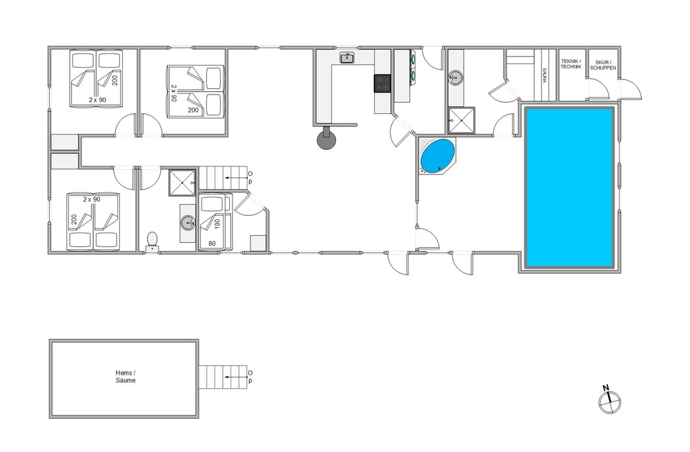
I sommerhuset på Hedevang 8 er der noget for enhver smag! Sommerhusets swimmingpool vil uden tvivl være et stort hit blandt feriens vandhunde, der i timevis kan lege og bade i den 17 kvadratmeter store swimmingpool.

Til de af jer, der hellere vil slappe af, er der selvfølgelig også mulighed for det; feriehuset byder nemlig på både et spabad og en sauna. Om I foretrækker at sidde i spabadets boblende, varme vand eller i saunaens varme, når I virkelig skal slappe af, så har I altså mulighed for det her.

4 soveværelser og 2 badeværelser

Til feriens 8 gæster er der 4 gode soveværelser, som I kan søge mod, når dagen er omme, så I kan tanke ny energi til de kommende feriedage i Houstrup. Efter en god nats søvn skal I ikke bekymre jer om kø til badeværelset ? her er hele 2 badeværelser, så ingen skal stå i kø. Begge badeværelser har desuden gulvvarme, så I også slipper for at fryse fødderne.

Sommerhusets køkken ligger i åben forbindelse med stue og spiseplads, hvilket gør, at I virkelig kan få lov til at nyde hinandens selskab. Brændeovnen i alrummet sørger for at fuldende den hyggelige feriestemning med sin knitren og varme. Fra alrummet er det muligt at kravle op på en hems ? et sikkert hit blandt feriens yngste gæster.

Jeres ferietid skal naturligvis ikke bruges på en masse praktisk husarbejde, så her er der både opvaskemaskine, vaskemaskine og tørretumbler, der hjælper jer med det.

Nyd solen på terrassen

Fra sommerhuset kan I træde ud på en afskærmet terrasse, hvor I kan nyde de solrige dage af jeres ferie. Her har I både havemøbler, liggestole og en grill til rådighed, så I kan få mest muligt ud af de solrige dage på den åbne terrasse.

Til børnene er der en skøn legeplads blot 200m fra sommerhuset.

Ferie i Houstrup

Når I holder ferie i Houstrup, har I flere skønne oplevelser i vente. Et af de steder, som I naturligvis skal besøge på jeres ferie, er Vesterhavet. Fra sommerhuset har I cirka 4,1 kilometer til de smukke sandstrande og blå bølger.

Af andre oplevelser kan også Blåbjerg Klitplantage nævnes. Her kan I opleve den smukke vestjyske natur på tæt hold. Når I bevæger jer gennem plantagen, kan I enten gøre det til fods eller på cykel.

Faciliteter

  8 Antal personer
  1 Husdyr tilladt
  2900 m Afstand til indløb
  4100 m Afstand til strand
  17 m Pool
Sauna
Opvaske-maskine
Ikke-ryger

Øvrige faciliteter

Om huset

  Grundareal: 1600 m²
  Husareal: 160 m²
  Byggeår: 1994
  Renoveret: 2018
  Indkøb: 2900 m
  Hav: 4100 m
  Personer: 8
  Soveværelser: 4
  Dobbeltsenge: 3
  Køjesenge: 1
  Børnestole: 1
  Dyr
  Brændeovn
  Svømmepøl
  Vaskemaskine
  Opvaske-maskine
  Tørretumbler

Rum

Køkken:
  Køleskab
  Ovn
  Mikroovn

Badeværelse:
  Badeværelser: 2
  Sauna

Underholdning

  Internet
  Tyske TV kanaler

Udendørs

  Liggestole
  Grill

Betingelser

På ankomstdagen kan nøglen hentes på vores kontor senest kl. 15. Ofte er husene tidligere klar til indflytning, kom gerne ind og spørg om jeres hus er klar. Afrejsetidspunktet er senest kl. 10 eller kl. 9, hvis der er booket slutrengøring.

Beliggenhed

Book huset
Ugekalender 2025
52

Varighed

Valgte periode: Uge
-
Pris: Book dette hus »
Kontakt  Ring mig op

Lignende huse

Houstrupvej 120 A+B
Houstrup
Pris fra 9.663 DKK
Se mere
Houstrupvej 164
Houstrup
Pris fra 7.903 DKK
Se mere
Skovvang 43
Houstrup
Pris fra 6.553 DKK
Se mere
Ndr. Skovvej 24
Houstrup
Pris fra 6.363 DKK
Se mere