« Tilbage

Feriehus med skøn beliggenhed og udsigt over klitterne

Katalognr.: i6359

Holdvej 89, Søndervig

Dette hyggelige feriehus ligger på Holdvej 89 i Søndervig, og med en placering kun 200 meter fra havet og blot 1500 meter til nærmeste indkøbsmulighed, er sommerhuset optimalt placeret for en afslappende og bekvem ferie. Her venter en unik oplevelse for alle sanser, med panoramiske udsigter og en rig naturoplevelse lige uden for døren.

Hyggeligt feriehus, hvor du kan tilbringe kvalitetstid med familien

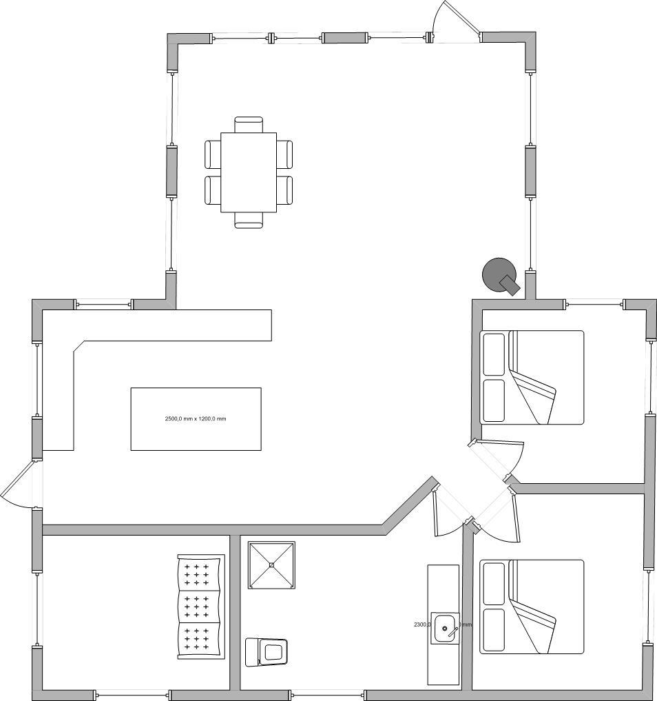
Med en rummelig størrelse på 103m2 tilbyder sommerhuset plads til 6 personer og har alt, hvad I behøver for en afslappende ferie. Indenfor råder huset over 3 komfortable soverum, som alle er indrettet med henblik på at skabe rolige rammer for nattesøvnen. Sommerhuset er udstyret med moderne faciliteter som opvaskemaskine og vaskemaskine, der sikrer jer de bedste rammer for en bekvem ferie. Sommerhusets luft-til-luft varmepumpe sikrer et behageligt indeklima året rundt.

Badeværelset er udstyret med gulvvarme for en ekstra behagelig opvarmning, så I kan starte dagen på den bedst mulige måde. Brændeovnen i opholdsrummet skaber en hyggelig og intim atmosfære, hvor I kan tilbringe aftenerne med afslapning i varme og komfort.

Feriehuset er hyggeligt indrettet og det er helt perfekt til en dejlig ferie med familien. I hjertet af sommerhuset har I køkkenet, spiseafdelingen og stuen i ét åbent rum. Fordi at der er lyst og højt til loftet, fremstår det rummeligt og indbydende, så I får lyst til at tilbringe mange timer med familien hér. Lad børnene hjælpe til med madlavningen eller saml familien omkring sjove brætspil eller planlægning af feriens udflugter.

Naturskønne udearealer på Holdvej 89 med panoramaudsigt over klitterne

Sommerhuset byder på en klitgrund på hele 2159m2. Her er der rige muligheder for at nyde de lange sommeraftener på husets åbne og afskærmede terrasser. Med havemøbler og en grill til rådighed kan I indtage afslappende måltider under åben himmel. Sandkassen på grunden er perfekt til de mindste gæster, der kan slippe fantasien løs og bygge slotte af sand.

Med en panoramaudsigt over de smukke omgivelser får I her rig mulighed for at trække vejret dybt ind og nyde naturens skønhed. Feriehuset ligger kun 200 meter fra stranden. Her kan I hele året rundt nyde lange gåture langs vandet, der giver ro i både sjæl og krop, og herfra kan I nyde en smuk udsigt over klitterne. På klitten ved feriehuset finder I en bænk med havblik, hvor du kan beundre de idylliske solnedgange.

Faciliteter

  6 Antal personer
   Husdyr ikke tilladt
  1500 m Afstand til indløb
  200 m Afstand til strand
Opvaske-maskine
Ikke-ryger

Øvrige faciliteter

Om huset

  Grundareal: 2159 m²
  Husareal: 103 m²
  Byggeår: 1998
  Indkøb: 1500 m
  Hav: 200 m
  Havudsigt
  Personer: 6
  Soveværelser: 3
  Dobbeltsenge: 2
  Sovesofaer: 1
  Brændeovn
  Vaskemaskine
  Opvaske-maskine

Rum

Køkken:
  Køleskab
  Ovn
  Mikroovn

Badeværelse:
  Badeværelser: 1

Underholdning

  Internet
  CD-afspiller
  Radio
  Tyske TV kanaler

Udendørs

  Liggestole
  Grill

Betingelser

På ankomstdagen kan nøglen hentes på vores kontor senest kl. 15. Ofte er husene tidligere klar til indflytning, kom gerne ind og spørg om jeres hus er klar. Afrejsetidspunktet er senest kl. 10 eller kl. 9, hvis der er booket slutrengøring.

Beliggenhed

Book huset
Ugekalender 2026
07
DKK
4.753
08
DKK
4.133
09
DKK
4.133
10
DKK
4.133
11
12
DKK
4.133
13
14
15
16
DKK
4.753
17
DKK
4.753
18
19
20
21
22
DKK
6.193
23
DKK
5.373
24
DKK
5.373
25
26
27
28
29
30
31
32
33
DKK
11.373
34
35
36
DKK
6.193
37
DKK
6.193
38
DKK
5.373
39
DKK
5.373
40
DKK
5.373
41
DKK
5.373
42
43
44
DKK
6.193
45
DKK
4.133
46
DKK
4.133
47
DKK
4.133
48
DKK
4.133
49
DKK
4.133
50
DKK
4.133
51
DKK
4.133
52
DKK
8.353
53
DKK
11.373

Varighed

Valgte periode: Uge
-
Pris: Book dette hus »
Kontakt  Ring mig op

Lignende huse

Troldedalen 36
Houvig
Pris fra 12.193 DKK
Se mere
Hafavej 26
Søndervig
Pris fra 9.883 DKK
Se mere
Jens Jensens Vej 64
Søndervig
Pris fra 12.303 DKK
Se mere
Klitdalen 7
Houvig
Pris fra 8.493 DKK
Se mere