« Tilbage

Stråtægt idyl med solterrasse og skøn udestue

Katalognr.: ii1234

Holmsborgvej 35, Søndervig

Her kan ferien ikke blive mere romantisk og smuk. På Holmsborgvej 35 i Søndervig står dette stråtægte feriehus klar til, at op til seks personer kan holde en dejlig ferie i de smukkeste rammer. Med en beliggendehed iblandt naturskønne områder, men samtidigt ikke langt væk fra feriebyen Søndervig, kan I her nyde en afslappende ferie, uden at være alt for langt væk fra massevis af aktiviteter og gode indkøbsmuligheder. Ankommer I med el-bil, har I mulighed for at lade direkte ved feriehuset. I skal blot huske at medbringe eget ladekabel.

Drømmeferie med nostalgi på Holmsborgvej 35

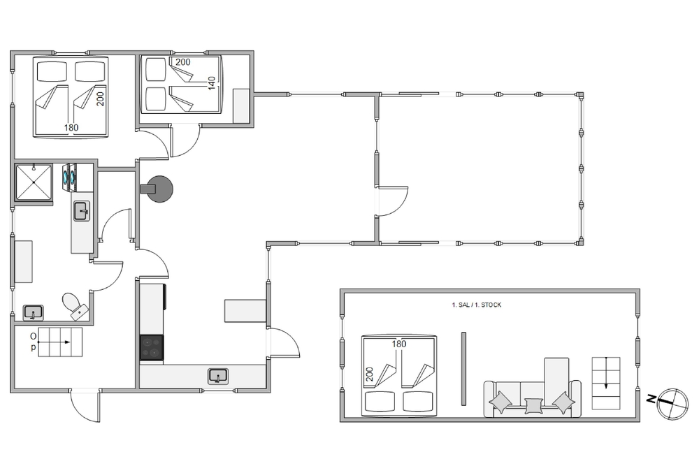
Med 129m2 har I god plads i dette bindingsværkshus. Huset er smukt indrettet med en fin blanding af romantisk nostalgi og moderne med hvidmalede lofter og vægge og lyse møbler. En smuk indbygget kamin afrunder billedet og skaber en dejlig varm stemning. Foruden den herlige udestue med stengulv og udsigt til klitterne.

Køkkenet er moderne og velindrettet og der er også ekstra køle- og fryseplads i skuret. Køkkenet har naturligvis også med opvaskemaskine, så I straks efter maden kan hygge sammen foran det store fladskærms-tv. Dejligt er det, især i den koldere årstid, at der er gulvvarme i husets store lyse badeværelse. Sommerhuset har 2 soverum samt en stor åben hems med 2 ekstra sovepladser. 

Holmsborgvej 35 har rigtig god plads til sine 6 gæster. I stueetagen er der 2 soverum og på 1. sal har I et ekstra soverum i form af en åben hems i forlængelse med en ekstra hyggestue, det giver mulighed for lidt ekstra privatliv.   

Dejlig terrasse med læ og udsyn samt skøn udestue 

Rund om feriehuset har I en skøn grund med masser af plads og blandt andet et stort separat redskabsrum. Helt fantastisk er husets syd-vest-terrasse. Da terrassen er omgivet af glasvægge, der åbner for et fint udsyn og lukker sol og lys ind, har I her altid dejlig læ for vinden, der af og til godt kan bide lidt herude ved Vesterhavet. I den skønne udestue finder I også en terrassevarmer, der hjælper jer med at holde varmen i de kolde årstider.

Fra husets opholdsstue er der direkte udgang til den skønne nyetablerede udestue. Her er virkelig dømt hyggestemning med brændeovn og udsigt lige ud til klitterne. Her kan I tilbringe mange hyggelige feriestunder sammen mens I nyder flammerne i brændeovnen og klitlandskabet udenfor. 

Strand, klitter og feriebyliv

Søndervig er en skøn livlig ferieby direkte ved Vestkysten og for enden af Ringkøbing fjord ? her er aldrig langt til vandet og overalt vil I mærke det specielle lys, denne beliggenhed giver. Her er den perfekte kombination af strand, natur og kultur og der venter jer mange spændende og dejlige oplevelser.

Faciliteter

  6 Antal personer
   Husdyr ikke tilladt
  1800 m Afstand til indløb
  700 m Afstand til strand
Opvaske-maskine
Ikke-ryger

Øvrige faciliteter

Om huset

  Grundareal: 2000 m²
  Husareal: 129 m²
  Byggeår: 1969
  Indkøb: 1800 m
  Hav: 700 m
  Personer: 6
  Soveværelser: 3
  Dobbeltsenge: 3
  Sovesofaer: 1
  Brændeovn
  Vaskemaskine
  Opvaske-maskine
  Tørretumbler

Rum

Køkken:
  Køleskab
  Ovn
  Mikroovn

Badeværelse:
  Badeværelser: 1

Underholdning

  Internet
  Radio
  Tyske TV kanaler

Udendørs

  Liggestole
  Grill

Betingelser

På ankomstdagen kan nøglen hentes på vores kontor senest kl. 15. Ofte er husene tidligere klar til indflytning, kom gerne ind og spørg om jeres hus er klar. Afrejsetidspunktet er senest kl. 10 eller kl. 9, hvis der er booket slutrengøring.

Beliggenhed

Book huset
Ugekalender 2026
07
DKK
4.593
08
DKK
4.043
09
DKK
4.043
10
DKK
4.043
11
DKK
4.043
12
13
DKK
5.143
14
15
16
DKK
4.593
17
DKK
4.593
18
DKK
5.143
19
DKK
5.143
20
DKK
5.913
21
22
23
24
25
26
27
DKK
8.213
28
29
DKK
11.383
30
31
32
33
DKK
11.383
34
DKK
9.733
35
DKK
8.213
36
DKK
5.913
37
38
39
40
DKK
5.143
41
42
43
DKK
6.673
44
DKK
5.913
45
DKK
4.043
46
DKK
4.043
47
DKK
4.043
48
DKK
4.043
49
DKK
4.043
50
DKK
4.043
51
DKK
4.043
52
53

Varighed

Valgte periode: Uge
-
Pris: Book dette hus »
Kontakt  Ring mig op

Lignende huse

Troldedalen 36
Houvig
Pris fra 12.193 DKK
Se mere
Jens Jensens Vej 64
Søndervig
Pris fra 12.303 DKK
Se mere
Lodbergsvej 293
Søndervig
Pris fra 11.443 DKK
Se mere
Klitdalen 7
Houvig
Pris fra 8.493 DKK
Se mere