« Tilbage

272 m2 stort pool feriehus med fantastisk beliggenhed i Blåvand

Katalognr.: 60430

Ingridsvej 15, Blåvand

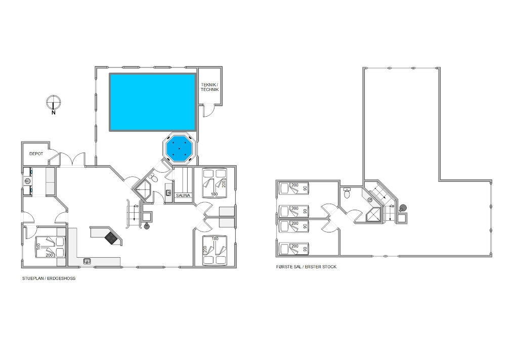
Er I flere familier, der gerne vil på ferie sammen? Så er sommerhuset på Ingridsvej 15 i Blåvand et oplagt valg! I sommerhuset er der plads til op til 10 personer, og her er der altså noget for enhver! Sommerhuset byder nemlig på en 18 kvadratmeter swimmingpool, samt et spa og en sauna. Desuden har feriehuset en skøn beliggenhed med 400 meter til stranden og 800 meter til nærmeste indkøbsmulighed.

Noget for enhver smag; swimmingpool, spa og sauna

I sommerhuset på Ingridsvej 15 i Blåvand er der noget for enhver smag, uanset om I foretrækker at være aktive eller at slappe af. Sommerhuset byder nemlig på et poolrum, hvor der er en 18 kvadratmeter stor swimmingpool, som uden tvivl vil blive et stort hit blandt feriens vandhunde.

I poolrummet er der også en spa til de af jer, der hellere vil slappe af. I spaen kan I nyde en afslappende stund i det varme, boblende vand, mens I ser til, at vandhundene hygger sig i swimmingpoolen.

Sommerhuset byder desuden på en skøn sauna, hvor I kan slappe af i den dejlige varme. Det er også helt fantastisk med en tur i saunaen efter en frisk gåtur i området, eller efter I har været en tur i det nærliggende Vesterhav.

Hyggelig indretning med 2 brændeovne

I sommerhuset vil I opleve en hyggelig indretning, hvor I hurtigt vil føle jer hjemme. Her er der lagt op til mange skønne feriestunder for hele ferieflokken, som I blandt andet kan tilbringe i alrummet i stueetagen.

I kan også tilbringe hyggelige feriestunder på sommerhusets førstesal, hvor der venter jer en stor vinkelstue, der har en smuk udsigt over sommerhusetområdet samt en flot udsigt mod Blåvand Fyr. Her kan I også nyde solnedgangen i fyrtårnets skær om aftenen.

I vinkelstuen på førstesalen står der nye, moderne sofagrupper og tv med udvidet kanalpakke i begge ender, så her er der altså plads til, at alle kan blive underholdt.

Sommerhuset har hele 2 brændeovne, der sørger for, at feriestemningen bliver fuldendt. Derudover har I gulvvarme i både alrummet og på sommerhusets 2 badeværelser, så ingen kommer til at fryse tæerne på ferien.

Åben terrasse, legetårn, gynger og trampolin

På jeres ferie i sommerhuset har I også god mulighed for at komme ud at nyde de solrige feriedage. Sommerhuset byder nemlig på en åben terrasse med nye havemøbler og liggestole samt masser af bænke rundt om feriehuset, hvor I kan slappe af.

Derudover står der også en grill klar til jer, så I kan nyde de lune ferieaftener på terrassen med lækre grillmiddage.

Der er selvfølgelig også tænkt på feriens yngste gæster. Til børnene er der et stort, lækkert sandområde med legetårn og gynger samt en trampolin bag feriehuset, hvor de kan tilbringe mange timer med leg.

Kort afstand til strand og centrum

Feriehuset på Ingridsvej 15 har en skøn beliggenhed i Blåvand, hvorfra I hverken har langt til stranden eller centrum af den hyggelige ferieby. Til stranden og Vesterhavet er der blot 400 meter, og I vil derfor hurtigt kunne nå frem til fods til de smukke sandstrande og blå bølger.

I har heller ikke langt til centrum af feriebyen Blåvand, hvor I både finder gode indkøbsmuligheder, butikker, skønne spisesteder og meget mere.

Faciliteter

  10 Antal personer
   Husdyr ikke tilladt
  800 m Afstand til indløb
  400 m Afstand til strand
  18 m Pool
Sauna
Opvaske-maskine
Ikke-ryger

Øvrige faciliteter

Om huset

  Grundareal: 2527 m²
  Husareal: 272 m²
  Byggeår: 2000
  Indkøb: 800 m
  Hav: 400 m
  Personer: 10
  Soveværelser: 5
  Enkeltsenge: 2
  Dobbeltsenge: 3
  Brændeovn
  Svømmepøl
  Vaskemaskine
  Opvaske-maskine
  Tørretumbler

Rum

Køkken:
  Køleskab
  Ovn
  Mikroovn

Badeværelse:
  Badeværelser: 2
  Sauna

Underholdning

  Tyske TV kanaler

Udendørs

  Liggestole
  Grill

Betingelser

På ankomstdagen kan nøglen hentes på vores kontor senest kl. 15. Ofte er husene tidligere klar til indflytning, kom gerne ind og spørg om jeres hus er klar. Afrejsetidspunktet er senest kl. 10 eller kl. 9, hvis der er booket slutrengøring.

Beliggenhed

Book huset
Ugekalender 2025
51
52

Varighed

Valgte periode: Uge
-
Pris: Book dette hus »
Kontakt  Ring mig op

Lignende huse

Fyrvej 9
Blåvand
Pris fra 26.097 DKK
Se mere
Sønder-Vasevej 18
Blåvand
Pris fra 12.363 DKK
Se mere
Skippervej 38a
Blåvand
Pris fra 13.457 DKK
Se mere
Solsiden 20A
Blåvand
Pris fra 16.713 DKK
Se mere