« Tilbage

Hyggeligt sommerhus med pejs tæt på havet

Katalognr.: i6019

Jakob Bondes Vej 81, Søndervig

På en skøn naturgrund tæt på havet ligger dette skønne feriehus med plads til 5 personer klar til jeres drømmeferie ved Vestkysten. Her er det perfekte sted for familien, to vennepar eller dig og din partner at komme ned i gear og tilbringe en dejlig tid sammen.

Lyst og dejligt sommerhus på Jakob Bondes Vej 81 med pejs

Dette smukt indrettede sommerhus i Søndervig med indbygget pejs er både velegnet til en familieferie og en romantisk ferie for to. Huset ligger næsten helt i enden af Jakob Bondes Vej og dermed kun et stenkast fra havet og den dejlige strand, hvor I kan tilbringe mange dejlige timer sammen med lange gåture ved vandkanten. Hjemme i huset kan I slutte dagen af med at slappe af i den lyse men hyggelige stue, fyre op i den indbyggede pejs og tage et spil kort eller nyde et godt glas vin, mens varmen buldrer derud af. Hvad mere kan man ønske sig?

Hyggelig og personlig indretning

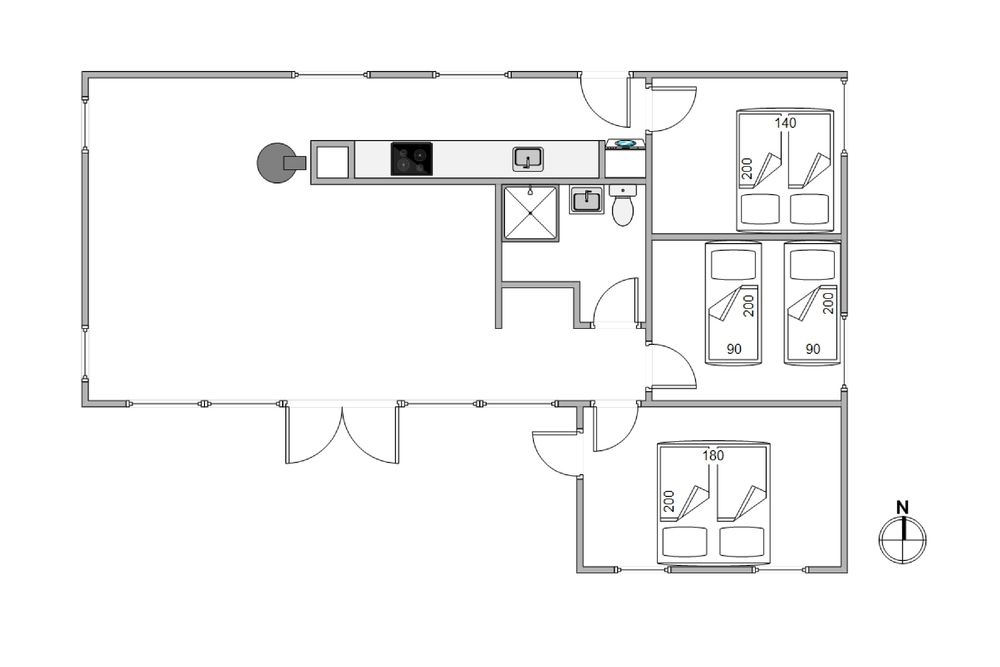
Husets hvidmalede vægge og spær og smagfulde indretning, kombineret med det varme klinkegulv, giver en stemning, så I, som gæster, hurtigt vil føle jer godt tilpas. Huset er dermed udstyret med et splinternyt køkken, hvor i sammen kan lave mad. Stuen er, på grund af det store vinduesparti, meget lys og venlig. Udsigten til klitterne gør, at man også indenfor føler, at man er tæt på naturen. Store dobbeltsenge i 2 af husets soverum og en 140 cm bred seng i det 3. giver garanteret plads til en god nattesøvn efter en dag med masser af frisk havluft.

Skønne læterrasser 

Så I til enhver tid kan nyde husets ugenerte beliggenhed midt i den skønne natur, er der flere terrasser rundt om huset. Når der rigtigt skal slappes af, er den 70m2 store sydvendte solterrasse et hit. Her er god plads til solvognene, og I ligger dejligt i læ af klitten med den fortryllende duft af hav, lyng og marehalm i næsen. Når dagen går på hæld, kan I tænde op i grillen og nyde lidt godt mad, imens solen går ned bag klitterne og de første stjerne titter frem.

Nyd omgivelserne og naturen i Søndervig

Har du taget cyklen med hjemmefra, så er det oplagt at cykle igennem klitterne og området på naturstien, som fører fra Søndervig helt ned til Nymindegab. Fra huset kommer I hurtig til havet og stranden, som er en af Danmarks bedste strande, hvor I kan tage en dejlig lang gåtur med hunden.

Vil I gerne opleve noget, så kan I tage en dyst i Padeltennis ved Lalandia. Her kan I også besøge det store bade- og legeland, hvor barn og barnlige sjæle for alvor kan slå sig løs. Hvide Sande, en populær ferieby syd for Søndervig, er også et besøg værd. Hvide Sande har flere gode restauranter og shoppingmuligheder, og ønsker I mere action, finder I det også i Hvide Sande bl.a. hos ?Kabelpark? hvor I kan teste jeres evner på vandski eller wakeboard.

Faciliteter

  5 Antal personer
  1 Husdyr tilladt
  2000 m Afstand til indløb
  300 m Afstand til strand
Opvaske-maskine
Ikke-ryger

Øvrige faciliteter

Om huset

  Grundareal: 2001 m²
  Husareal: 82 m²
  Byggeår: 1978
  Renoveret: 2006
  Indkøb: 2000 m
  Hav: 300 m
  Personer: 5
  Soveværelser: 3
  Enkeltsenge: 1
  Dobbeltsenge: 2
  Dyr
  Brændeovn
  Vaskemaskine
  Opvaske-maskine

Rum

Køkken:
  Køleskab
  Ovn
  Mikroovn

Badeværelse:
  Badeværelser: 1

Underholdning

  Radio
  Tyske TV kanaler

Udendørs

  Liggestole

Betingelser

På ankomstdagen kan nøglen hentes på vores kontor senest kl. 15. Ofte er husene tidligere klar til indflytning, kom gerne ind og spørg om jeres hus er klar. Afrejsetidspunktet er senest kl. 10 eller kl. 9, hvis der er booket slutrengøring.

Beliggenhed

Book huset
Ugekalender 2026
09
DKK
4.313
10
DKK
4.313
11
DKK
4.313
12
13
DKK
4.743
14
15
16
17
DKK
4.533
18
DKK
4.743
19
DKK
4.743
20
21
DKK
4.743
22
23
24
25
26
27
28
29
30
31
32
33
34
DKK
7.953
35
36
37
38
39
40
DKK
4.743
41
42
DKK
5.093
43
DKK
6.003
44
DKK
5.093
45
DKK
4.313
46
DKK
4.313
47
DKK
4.313
48
DKK
4.313
49
DKK
4.313
50
DKK
4.313
51
DKK
4.313
52
DKK
6.843
53
DKK
9.533

Varighed

Valgte periode: Uge
-
Pris: Book dette hus »
Kontakt  Ring mig op

Lignende huse

Wolle Friks Vej 12A
Søndervig
Pris fra 8.603 DKK
Se mere
Hafavej 26
Søndervig
Pris fra 9.883 DKK
Se mere
Holmsland Klitvej 201A
Klegod
Pris fra 10.213 DKK
Se mere
Houvig Klitvej 55
Houvig
Pris fra 9.633 DKK
Se mere