« Tilbage

Charmerende og lyst feriehus i Houstrup

Katalognr.: 30598

Jeppesvej 88, Houstrup

På Jeppesvej 88 venter dette skønne sommerhus på 103 m2, som blev bygget i 2006 og renoveret i 2020. Her kan op til 6 personer og 2 husdyr finde deres egen lille oase midt i det naturskønne Houstrup. Lokationen og atmosfæren skaber den perfekte ramme for en afstressende ferie.

Åben planløsning og charmerende indretning

Sommerhuset er lyst og indbydende, og her er virkelig tænkt på detaljerne. Sofaen er rummelig og komfortabel med plads til hele familien, mens et stort vinduesparti i stuen lader naturligt lys strømme ind og en brændeovn skaber en varme og hygge. Derudover er der en hyggelig hems, der giver ekstra charme og plads til afslapning eller leg.

Køkkenet er komplet med en opvaskemaskine, der gør opvasken nem og bekvem. Den åbne planløsning kombinerer køkken, stue og spisestue i ét, hvilket gør det nemt at lade samtalen flyde fra madlavningen i køkkenet til spisebordet, hvor resten af familien kan være i gang med dagens brætspil.

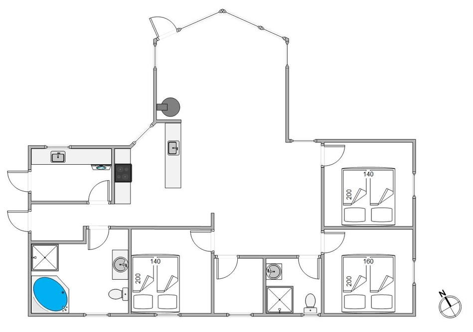
De tre soveværelser byder på god nattesøvn; det ene soveværelse har en dobbeltseng, mens de to andre er udstyret med trekvartsenge. Der er to badeværelser, begge udstyret med gulvvarme, hvoraf det ene også har en tømmespa til to personer. Derudover er der vaskemaskine og tørretumbler, hvilket gør det nemt at holde styr på vasketøjet under jeres ophold.

Afslappende udendørsliv på den afskærmede terrasse

Sommerhuset byder på en afskærmet og delvist overdækket terrasse, der giver mulighed for at nyde udendørslivet i fulde drag, uanset vejret. Fra stuen kan I træde direkte ud på terrassen og lade den friske luft og den smukke natur strømme ind.

Den rummelige 1140 m2 plænegrund indbyder til leg og afslapning i det fri. Solrige dage kan tilbringes på solvognene under en parasol, mens aftenerne kan nydes med grillmad og hyggelige stunder omkring havemøblerne under åben himmel. Her kan I nyde de lange sommeraftener med et glas vin eller en god bog.

For jeres komfort er der en carport til bilen og et praktisk redskabsskur, hvor I kan opbevare cykler eller andet udstyr, så I nemt kan tage på opdagelse i de omkringliggende naturskønne områder.

Jeppevej 88 ? perfekt beliggenhed for strand- og naturelskere

Sommerhusets beliggenhed i Houstrup er perfekt for dem, der ønsker at opleve både natur og bekvemmeligheder. I befinder jer kun 3500 meter fra havet, hvor en dejlig dag ved stranden venter. Her kan I nyde solen, sandet og den friske havluft.

Derudover finder I indkøbsmuligheder kun 3400 meter fra sommerhuset, hvilket gør det let at få fat i de fornødenheder, I har brug for under jeres ophold.

Houstrup byder desuden på smukke skove og naturskønne områder, der er ideelle til cykelture, vandreture eller blot en afslappet gåtur. Som gæster i dette sommerhus har I mulighed for både at trække jer tilbage i private, rolige omgivelser samt at deltage i spændende udendørs aktiviteter og opleve områdets mange naturskønne perler.

Faciliteter

  6 Antal personer
  1 Husdyr tilladt
  3400 m Afstand til indløb
  3500 m Afstand til strand
Opvaske-maskine
Ikke-ryger

Øvrige faciliteter

Om huset

  Grundareal: 1140 m²
  Husareal: 103 m²
  Byggeår: 2006
  Renoveret: 2020
  Indkøb: 3400 m
  Hav: 3500 m
  Personer: 6
  Soveværelser: 3
  Dobbeltsenge: 3
  Børnestole: 1
  Dyr
  Brændeovn
  Vaskemaskine
  Opvaske-maskine
  Tørretumbler

Rum

Køkken:
  Køleskab
  Ovn
  Mikroovn

Badeværelse:
  Badeværelser: 2

Underholdning

  Tyske TV kanaler

Udendørs

  Liggestole
  Grill

Betingelser

På ankomstdagen kan nøglen hentes på vores kontor senest kl. 15. Ofte er husene tidligere klar til indflytning, kom gerne ind og spørg om jeres hus er klar. Afrejsetidspunktet er senest kl. 10 eller kl. 9, hvis der er booket slutrengøring.

Beliggenhed

Book huset
Ugekalender 2025
43
44
45
46
47
48
49
50
51
52

Varighed

Valgte periode: Uge
-
Pris: Book dette hus »
Kontakt  Ring mig op

Lignende huse

Gravensbjergvej 2 A
Houstrup
Pris fra 5.913 DKK
Se mere
Houstrupvej 164
Houstrup
Pris fra 7.837 DKK
Se mere
Brudbjergvej 5
Houstrup
Pris fra 8.787 DKK
Se mere
Fyrrekrogen 17
Houstrup
Pris fra 5.017 DKK
Se mere