« Tilbage

Rummeligt sommerhus i Houvig med anneks

Katalognr.: JW1314

Klægdalen 24, Houvig

Drømmer I om at holde ferie nær Vesterhavet, og vil I gerne have familiens firbenede med på ferie? Så er huset beliggende på Klægdalen 24 i Houvig ideelt til jer. I det sommerhus med sauna og anneks er der plads til 8 personer. Og så er der ovenikøbet kun 300 meter til vandet. Perfekte omgivelser for alle vandhunde ? både for dem med 2 fødder og 4 poter.

Rummeligt sommerhus med hyggelig indretning og dejlig sauna

Det dejlige sommerhus i Houvig byder sine gæster velkommen på bedste manér. Indretningen er lys og hyggelig, og I vil helt sikkert straks føle jer hjemme. I stuen kan I gøre jer det behageligt i de bløde møbler, smække benene op og nyde udsigten gennem vinduerne eller læne jer tilbage og læse en god bog. Selvfølgelig med den knitrende pejs i baggrunden. Stue og spisekrog ligger i åben forbindelse med køkkenet, der er veludstyret med blandt andet køleskab med 15 liters fryser, mikrobølgeovn og opvaskemaskine.
 
Trænger I til at forsøde feriedagene med lidt ekstra afslapning, er sommerhuset også garant for hjælp i denne henseende. Huset råder nemlig over en dejlig sauna, hvor I kan læne jer tilbage og nyde den velgørende varme. Et besøg saunaen er ekstra skattet efter en kølig dag ved Vesterhavet.

Anneks med badeværelse ? ideelt for 2 familier

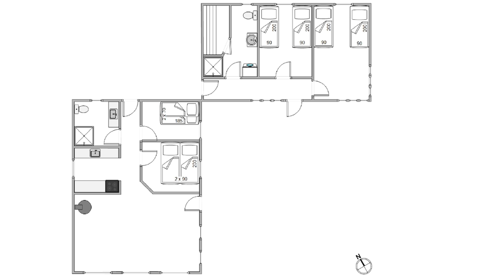
Sommerhuset råder over 8 sengepladser, der er fordelt mellem hovedhus og anneks. I det 60m2 store hovedhus er der to værelser med henholdsvis dobbeltseng og køjeseng, mens der i det 37m2 store anneks er 2 værelser ? begge indrettet med hver 2 enkeltsenge. I annekset er der også et badeværelse. Det gør sommerhuset ideelt, hvis I er 2 familier, der ønsker at holde ferie sammen.

Kun 300 meter til Vesterhavet fra Klægdalen 24

Når ferien skal afholdes, skal hele familien med. I dette skønne sommerhus er der plads til i alt 2 hunde. Området omkring sommerhuset i Houvig er kendt for sine gode stisystemer, hvilket giver mulighed for nogle gode vandreture. Den korte afstand til Vesterhavet er også værd at udnytte i forbindelse med de daglige gåture.

Noget af det bedste ved sommerhuset på Klægdalen 12 er nemlig dets beliggenhed. Huset ligger for enden af en stille vej kun 300 meter fra Vesterhavet og de store, brede sandstrande. Uanset hvilken tid på året, I gæster i huset, er Vesterhavet en attraktion. Og store, brusende bølger i frostvejr er en lige så skøn oplevelse som en svømmetur i vandet på en lun sommerdag.

Faciliteter

  8 Antal personer
  1 Husdyr tilladt
  5800 m Afstand til indløb
  300 m Afstand til strand
Sauna
Opvaske-maskine
Ikke-ryger

Øvrige faciliteter

Om huset

  Grundareal: 2524 m²
  Husareal: 97 m²
  Byggeår: 2000
  Renoveret: 2004
  Indkøb: 5800 m
  Hav: 300 m
  Personer: 8
  Soveværelser: 4
  Enkeltsenge: 4
  Dobbeltsenge: 1
  Køjesenge: 1
  Børnestole: 1
  Børnesenge: 1
  Dyr
  Brændeovn
  Vaskemaskine
  Opvaske-maskine

Rum

Køkken:
  Køleskab
  Ovn
  Mikroovn

Badeværelse:
  Badeværelser: 2
  Sauna

Underholdning

  Internet
  CD-afspiller
  DVD-afspiller
  Radio

Udendørs

  Liggestole
  Grill

Betingelser

På ankomstdagen kan nøglen hentes på vores kontor senest kl. 15. Ofte er husene tidligere klar til indflytning, kom gerne ind og spørg om jeres hus er klar. Afrejsetidspunktet er senest kl. 10 eller kl. 9, hvis der er booket slutrengøring.

Beliggenhed

Book huset
Ugekalender 2026
07
08
09
10
11
12
13
14
15
16
17
18
19
20
21
22
23
24
25
26
27
28
29
30
31
32
33
34
35
36
37
38
39
40
41
42
43
44
45
46
47
48
49
50
51
52
53

Varighed

Valgte periode: Uge
-
Pris: Book dette hus »
Kontakt  Ring mig op

Lignende huse

Lodbergsvej 38K
Søndervig
Pris fra 3.773 DKK
Se mere
Marehalmen 52
Søndervig
Pris fra 4.273 DKK
Se mere
Troldedalen 37
Houvig
Pris fra 5.123 DKK
Se mere
Harbo Stages Vej 3
Søndervig
Pris fra 3.643 DKK
Se mere