« Tilbage

Lille, hyggeligt sommerhus i Houvig tæt ved Vesterhavet

Katalognr.: JW1319

Lærkedalen 23, Houvig

Trænger I til at stikke af på ferie og nyde tosomheden i skønne rammer nær ved Vesterhavet? Så er Lærkedalen 23 i Houvig helt bestemt noget for jer. Her kan I trække stikket og nyde hinandens samvær i det skønne 2-personers hus, der emmer af sommerhuscharme. Og med kun 400 meter til vandet, har I rig mulighed for gåture med hinanden i hånden.

Sommerhus til 2 personer med en indbydende indretning på Lærkedalen 23

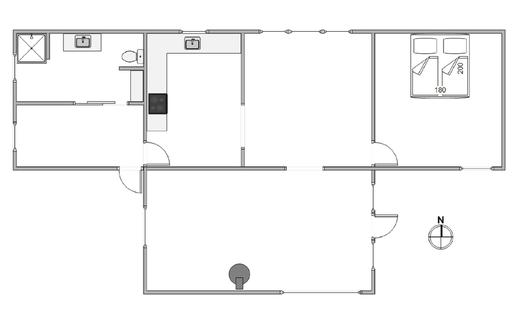
Det skønne sommerhus i Houvig er måske nok kun for 2 personer. Men det er ikke ensbetydende med, at I kommer til at mangle plads. For de store vinduespartier og loftet til kip bidrager sammen med den gode udnyttelse af kvadratmeterne til at gøre huset mere rummeligt. Alt fremstår lyst og velholdt. Og møbleringen og indretningen er smagfuld og i god kvalitet. Her bliver der virkelig kræset for gæsterne.
 
Husets hjerte er uden tvivl den hyggelige stue, hvorfra der er direkte udgang til den syd-østvendte solterrasse. Fra pladsen i sofaen kan I nyde udsigten ud over terrassen og den lyngbeklædte grund. Eller I kan blot læne jer tilbage og nyde varmen fra den knitrende brændeovn efter en lang dag ved Vesterhavet.
 
Huset er indrettet med et mindre, praktisk køkken og en hyggelig spisestue med kurvemøbler. I køkkenet finder I blandt andet mikroovn og et køleskab med 15 liters frysekapacitet. I det skønne soveværelse er det godt med plads, en dejlig dobbeltseng og indretningen i rummet er lys og indbydende. Derudover er der et flot og lyst badeværelse med bruseniche og flisegulv.

Sommerhus tæt på Vesterhavet

Når I holder ferie på Lærkedalen 23 i Houvig, befinder I jer kun 400 meter fra det skønne Vesterhav. Sætter I jer i solen på terrassen, kan I derfor ikke alene nyde synet af lyngen, græsserne og hybenbuskene på naturgrunden ? I kan også fornemme Vesterhavets brusende bølger i baggrunden. Sommerhuset ligger direkte op ad en klit, hvorfra I har den flotteste havudsigt.
 
Tager I cyklerne med på ferie, er der gode stier, som kan benyttes til en cykeltur mod Søndervig. Er I mere til lange og varierede traveture, er naturen og landskabet omkring sommerhuset også ideelt. Her finder I et kuperet terræn med gode stisystemer, der er værd at udforske.

Faciliteter

  2 Antal personer
  1 Husdyr tilladt
  2350 m Afstand til indløb
  400 m Afstand til strand
Ikke-ryger

Øvrige faciliteter

Om huset

  Grundareal: 1220 m²
  Husareal: 55 m²
  Byggeår: 1978
  Renoveret: 2009
  Indkøb: 2350 m
  Hav: 400 m
  Personer: 2
  Soveværelser: 1
  Dobbeltsenge: 1
  Dyr
  Brændeovn

Rum

Køkken:
  Køleskab
  Ovn
  Mikroovn

Badeværelse:
  Badeværelser: 1

Underholdning

  Internet
  Radio

Udendørs

  Liggestole
  Grill

Betingelser

På ankomstdagen kan nøglen hentes på vores kontor senest kl. 15. Ofte er husene tidligere klar til indflytning, kom gerne ind og spørg om jeres hus er klar. Afrejsetidspunktet er senest kl. 10 eller kl. 9, hvis der er booket slutrengøring.

Beliggenhed

Book huset
Ugekalender 2025
50
51
52

Varighed

Valgte periode: Uge
-
Pris: Book dette hus »
Kontakt  Ring mig op

Lignende huse

Krogen 37
Houvig
Pris fra 4.117 DKK
Se mere
Opstrupsvej 32
Klegod
Pris fra 5.367 DKK
Se mere
Fladsbjergvej 164
Klegod
Pris fra 4.987 DKK
Se mere
Sortebærdalen 5
Houvig
Pris fra 4.517 DKK
Se mere