« Tilbage

Lækkert familievenligt sommerhus med udendørs spa

Katalognr.: i6491

Lodbergsvej 70, Søndervig

Dette fantastiske 8 personers feriehus udlejes inkl. slutrengøring. Lodbjergsvej 70, Søndervig er et nybygget hus med fantastiske rammer for en god ferie til hele familien.

Moderne funktionalitet og hjemlig hygge

Huset er opført i moderne stil, lyst og venligt med store vinduespartier, lyse vægge og loft til kip. I det store køkken-alrum er der god plads til alle, og med køkkenets moderne interiør som fx induktionskogeplade, mikrobølgeovn og opvaskemaskine er det en ren fornøjelse sammen at trylle lækre måltider. 

Her er tænkt på det hele. Troldtek-lofter garanterer en fantastisk akustik, genvex-anlæg giver et frisk indeklima, og med gulvvarme i samtlige rum har I garanteret en behagelig ensartet opvarmning i de kolde måneder.

Når feriedagen går på hæld, og der rigtigt skal hygges og slappes af, kan I tænde for gasbrændeovnen og lade ilden danse og fylde rummet med en varm og hyggelig atmosfære.

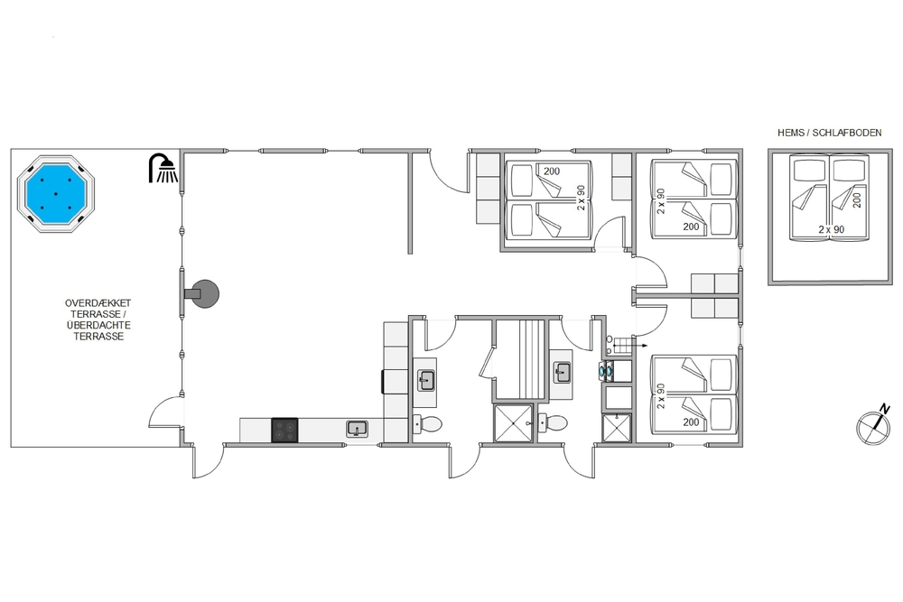
Gode soverum, 2 badeværelser og sauna

Lodbergsvej 70 er praktisk indrettet med en værelsesafdeling, som giver mulighed for at trække sig. Sengene er 180cm dobbeltsenge (2x90cm), som kan rykkes fra hinanden, hvis man ønsker det. Der er også tænkt på de små i form af barneseng, pusleplads og højstol.

Begge badeværelser er topmoderne, hvoraf det ene er med sauna. På badeværelset findes også vaskemaskine, tørretumbler og pusleplads. Desuden er feriehuset godt isoleret, hvilket også hjælper med til at holde forbruget nede.

Overdækket terrasse med udendørs spa 

Her er et hus med fornemme faciliteter inde såvel som ude. At kunne afslutte en kold vinterdag med at tænde op i spaen på den overdækkede terrasse og siddende i det varme vand, nyde roen imens stjernerne titter frem på himlen er et absolut hit. Lige ved siden af spaen, finder I udebruseren, som kan skylle det værste sand af kroppen, efter en god tur på stranden. OBS. Udebruseren er kun åben fra april-november.

Med det overdækkede areal og en stor syd-øst-vest terrasse med lægivende volde er alt vejr grillvejr på Lodbergsvej 70, her er masser af mulighed for at opholde sig udendørs, og naturligvis finder I her gode havemøbler og bekvemme solvogne.

I Gåafstand til Søndervig fra Lodbergsvej 70

Sommerhusets fantastiske beliggenhed i Søndervig gør, at det er i gåafstand til butikker, spisesteder, strand mv. I Søndervig findes der underholdning til alle aldre. Det er altid rart, at lade bilen stå hjemme, og gå på udforskning. Afstanden til det brusende Vesterhav er også kun på 300 meter, så der er ikke noget der sætter en stopper for en lang og dejlig gåtur, på den endeløse hvide sandstrand.

 

Faciliteter

  8 Antal personer
   Husdyr ikke tilladt
  800 m Afstand til indløb
  300 m Afstand til strand
Sauna
Opvaske-maskine
Ikke-ryger

Øvrige faciliteter

Om huset

  Grundareal: 1000 m²
  Husareal: 125 m²
  Byggeår: 2018
  Indkøb: 800 m
  Hav: 300 m
  Personer: 8
  Soveværelser: 3
  Enkeltsenge: 2
  Dobbeltsenge: 3
  Børnestole: 1
  Børnesenge: 1
  Vaskemaskine
  Opvaske-maskine
  Tørretumbler

Rum

Køkken:
  Køleskab
  Ovn
  Mikroovn

Badeværelse:
  Badeværelser: 2
  Sauna

Underholdning

  Internet
  Radio
  Tyske TV kanaler

Udendørs

  Liggestole

Betingelser

På ankomstdagen kan nøglen hentes på vores kontor senest kl. 15. Ofte er husene tidligere klar til indflytning, kom gerne ind og spørg om jeres hus er klar. Afrejsetidspunktet er senest kl. 10 eller kl. 9, hvis der er booket slutrengøring.

Beliggenhed

Book huset
Ugekalender 2026
09
DKK
7.423
10
DKK
7.423
11
12
13
DKK
8.813
14
15
16
17
18
19
DKK
8.813
20
21
DKK
8.813
22
23
24
DKK
8.813
25
26
27
28
29
30
DKK
16.673
31
32
33
34
35
DKK
11.993
36
37
38
DKK
8.813
39
DKK
8.813
40
DKK
8.813
41
42
43
DKK
9.553
44
DKK
9.183
45
DKK
7.423
46
47
48
49
50
51
52
DKK
11.993
53
DKK
15.493

Varighed

Valgte periode: Uge
-
Pris: Book dette hus »
Kontakt  Ring mig op

Lignende huse

Nordsøvej 388
Søndervig
Pris fra 14.393 DKK
Se mere
Nordsøvej 36
Søndervig
Pris fra 14.483 DKK
Se mere
Frans Julius Vej 50
Søndervig
Pris fra 14.423 DKK
Se mere
Holmsland Klitvej 74A
Klegod
Pris fra 19.963 DKK
Se mere