« Tilbage

Husbåd i Mamrelund i høj kvalitet og med skøn udsigt

Katalognr.: F4042

Mamrelund 37, Hvide Sande

Flot og moderne husbåd, der giver en unik mulighed for at holde en afslappende ferie på vandet. Båden har en fantastisk beliggenhed i Mamrelund, hvorfra du har en smuk udsigt over fjorden, havnen og det centrale Hvide Sande, og samtidig har du kort afstand til både strand, indkøb og restauranter.

Hold din næste ferie på denne flotte husbåd i Mamrelund, Hvide Sande

Husbåden er en skøn feriebolig placeret midt i en helt unik feriedestination, hvor du har både den smukke natur og Hvide Sandes autentiske havnemiljø helt tæt på.

Husbåden ligger på Ringkøbing Fjord, hvor de små bølgeskvulp sætter prikken over i?et på den afslappende feriestemning med solbadning på terrassen og grillhygge om aftenen.

Høj kvalitet og stilfuld indretning

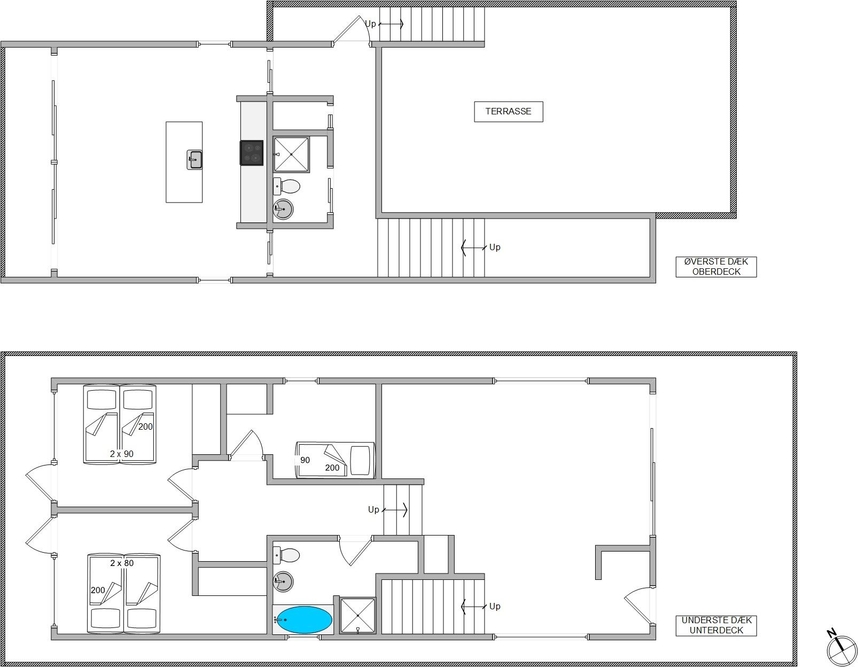
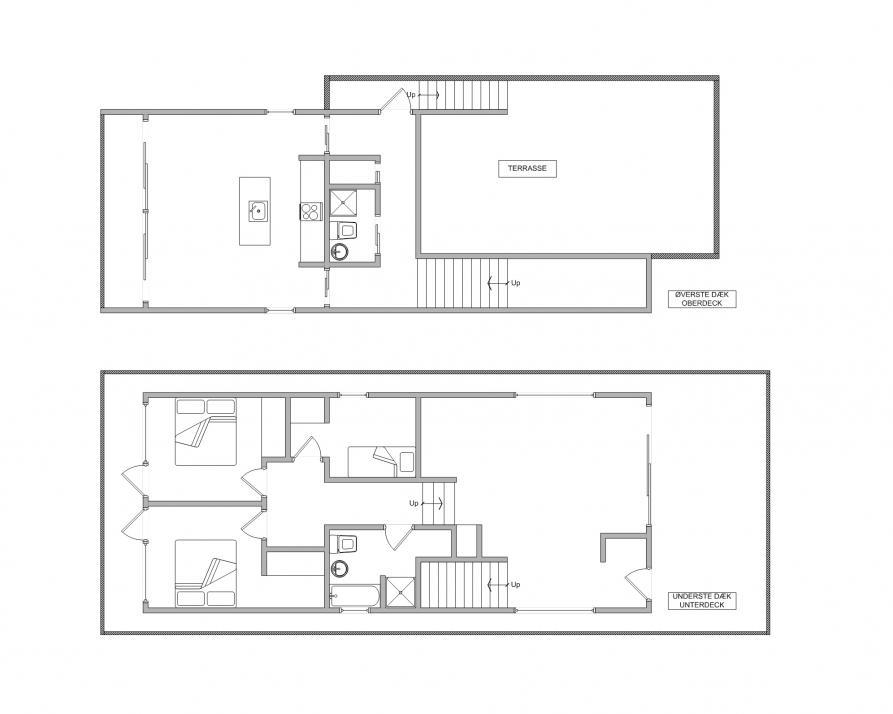
Arkitekturen er flot, enkel og maritim, møbleringen er flot og stilren, og ingen steder er der gået på kompromis med kvaliteten. Husbådens 140 m2 er fordelt på to plan, og praktisk indrettet med et badeværelse på hver etage.

Derudover er der et dejligt køkken, hvor I kan tilberede lækre måltider, når I ikke skal grille eller besøge Hvide Sandes lækre restauranter.

Skøn beliggenhed og smuk udsigt

Husbåden har også terrasser på begge plan. Nederst er der en mindre terrasse og øverst er der en noget større, som også er delvist afskærmet. Og her kan I nyde en smuk udsigt over fjorden og Hvide Sande havn, ? og måske nyde en grillmiddag, tilberedt på bådens gasgrill.

Og med den centrale beliggenhed i Hvide Sande, kan I nemt komme ud og handle eller en tur til stranden. Beliggenheden er ligeledes attraktiv for lystfiskere, da slusen, hvor der især er en god sildefangst, ligger overfor.

Der kan ikke parkeres direkte ved husbåden, der er ca. 100 meter fra parkeringspladsen til husbåden.

Google Photo F4042
Google Maps F4042

Faciliteter

  5 Antal personer
   Husdyr ikke tilladt
  200 m Afstand til indløb
  500 m Afstand til strand
Opvaske-maskine
Ikke-ryger

Øvrige faciliteter

Om huset

  Husareal: 140 m²
  Byggeår: 2014
  Indkøb: 200 m
  Hav: 500 m
  Havudsigt
  Personer: 5
  Soveværelser: 3
  Enkeltsenge: 1
  Dobbeltsenge: 2
  Vaskemaskine
  Opvaske-maskine
  Tørretumbler

Rum

Køkken:
  Køleskab
  Ovn
  Mikroovn

Badeværelse:
  Badeværelser: 2

Underholdning

  CD-afspiller
  DVD-afspiller
  Tyske TV kanaler

Udendørs

  Liggestole

Betingelser

På ankomstdagen kan nøglen hentes på vores kontor senest kl. 15. Ofte er husene tidligere klar til indflytning, kom gerne ind og spørg om jeres hus er klar. Afrejsetidspunktet er senest kl. 10 eller kl. 9, hvis der er booket slutrengøring.

Beliggenhed

Book huset
Ugekalender 2026
07
DKK
8.933
08
DKK
7.103
09
DKK
7.103
10
DKK
7.103
11
DKK
7.103
12
13
14
15
16
DKK
7.103
17
DKK
7.103
18
19
20
21
22
23
24
25
26
27
28
29
30
31
DKK
16.113
32
33
DKK
15.343
34
35
36
37
38
39
40
41
DKK
8.933
42
43
44
45
DKK
7.103
46
47
DKK
7.103
48
DKK
7.103
49
DKK
7.103
50
DKK
7.103
51
DKK
7.103
52
DKK
12.443
53
DKK
15.343

Varighed

Valgte periode: Uge
-
Pris: Book dette hus »
Kontakt  Ring mig op

Lignende huse

Bjerregårdsvej 227
Bjerregård
Pris fra 14.523 DKK
Se mere
Bjerregårdsvej 403
Bjerregård
Pris fra 17.003 DKK
Se mere
Bjerregårdsvej 395
Bjerregård
Pris fra 12.589 DKK
Se mere
Tingodden 35
Årgab
Pris fra 17.893 DKK
Se mere