« Tilbage

Charmerende feriehus kun 250 meter fra havet

Katalognr.: i6528

Sand Holms Vej 88, Søndervig

Drømmer I om en dejlig ferie ved vesterhavet, så læs nærmere her! Her får I et velholdt og charmerende feriehus på en fredfyldt naturgrund tæt på den skønne ferieby Søndervig. Fra stuen og terrassen har man en skøn udsigt til klitlandskabet. Feriehuset er perfekt for den mindre familie eller venneparret, som ønsker at være tæt på både by og hav. Kommer I med el-bil er der også mulighed for at lade bilen op ved huset via ladekablet til OK standeren, der sidder ved indgangspartiet. 

Charmerende sommerhus med brændeovn på Sand Holms Vej 88

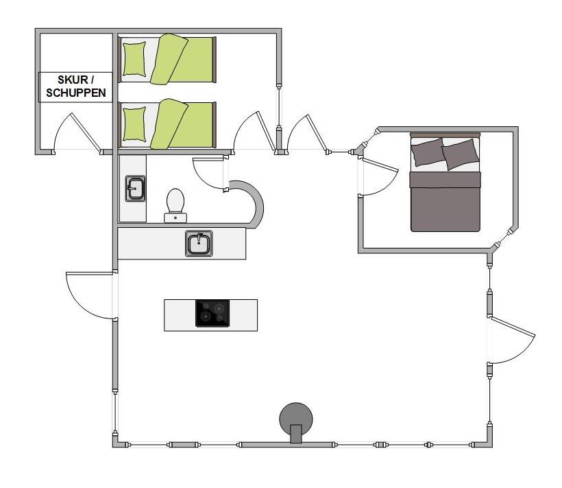
Feriehuset på Sand Holms Vej 88 er hyggeligt og venligt indrettet, og det ligger på en skøn naturgrund med kun få minutters gang til Vesterhavet. Somerhuset fordeler sig på 60 m2 og rummer fin plads til 4 personer, trods den mindre størrelse. Sommerhuset på Sand Holms Vej 88 fordeler sig på 2 soveværelser, hvoraf det ene har dobbeltseng og det andet 2 enkeltsenge. Derudover har huset et godt velindrettet badeværelse med vaskemaskine og gulvvarme. Opholdsstuen og køkkenet er i direkte forbindelse så alle kan følge med i madlavning og ferieplanlægningen. Her i stuen finder I også husets brændeovn, hvor I rigtigt kan slappe af foran de knitrende flammer med benene oppe. 

Delvis lukket terrasse og smuk udsigt

Somerhuset er omgivet af en delvist lukket træterasse, som går næsten hele vejen rundt om huset, hvilket er perfekt hvis I rejser med hund eller små børn. Her er god mulighed for at nyde solens stråler mens I kigger ud i rosenbuskene og sommerhusområdet. Der er både havemøbler og solsenge til fri afbenyttelse. Der er selvfølgelig også en grill til rådighed, så I kan grille et dejligt måltid mad her på terrassen. 

Fred og ro tæt på den skønne ferieby Søndervig

Der er ikke mange feriehuse, hvor I kan slappe af i fred og ro midt i den smukke og storslåede natur og samtidig være tæt på den hyggelige ferieby Søndervig. I mange af årets måneder er der masser af liv og puls, samt et godt udvalg af butikker, restauranter, caféer og masser af aktiviteter. Både Hvide Sande og Ringkøbing, som ligger i køreafstand er bestemt et besøg værd.

Faciliteter

  4 Antal personer
  1 Husdyr tilladt
  750 m Afstand til indløb
  250 m Afstand til strand
Opvaske-maskine
Ikke-ryger

Øvrige faciliteter

Om huset

  Grundareal: 1200 m²
  Husareal: 60 m²
  Byggeår: 1997
  Renoveret: 2009
  Indkøb: 750 m
  Hav: 250 m
  Personer: 4
  Soveværelser: 2
  Enkeltsenge: 2
  Dobbeltsenge: 1
  Dyr
  Brændeovn
  Vaskemaskine
  Opvaske-maskine

Rum

Køkken:
  Køleskab
  Ovn
  Mikroovn

Badeværelse:
  Badeværelser: 1

Underholdning

  Internet
  Tyske TV kanaler

Udendørs

  Liggestole
  Grill

Betingelser

På ankomstdagen kan nøglen hentes på vores kontor senest kl. 15. Ofte er husene tidligere klar til indflytning, kom gerne ind og spørg om jeres hus er klar. Afrejsetidspunktet er senest kl. 10 eller kl. 9, hvis der er booket slutrengøring.

Beliggenhed

Book huset
Ugekalender 2025
46
47
DKK
3.427
48
DKK
3.427
49
DKK
3.427
50
DKK
3.427
51
DKK
3.927
52
DKK
6.937

Varighed

Valgte periode: Uge
-
Pris: Book dette hus »
Kontakt  Ring mig op

Lignende huse

Søtangevej 1 Nr. 7
Holmsland
Pris fra 16.497 DKK
Se mere
Lodbergsvej 293
Søndervig
Pris fra 11.207 DKK
Se mere
Nordsøvej 270
Søndervig
Pris fra 12.397 DKK
Se mere
Krogen 21
Houvig
Pris fra 12.277 DKK
Se mere