« Tilbage

Moderne poolhus tæt på stranden med luksus-udendørsfaciliteter

Katalognr.: 60478

Sønder-Vasevej 2B, Blåvand

Det moderne poolhus på Sønder-Vasevej 2B i Blåvand emmer af luksus. Sommerhuset er 250 m2 stort og er bygget i 2021, og her finder I mange gode faciliteter såsom et stort aktivitetsrum, pool, spa og udendørssauna. Der er plads til 12 personer (de 2 sofaer på den ene hems er sovesofaer), og sommerhuset egner sig derfor godt til en ferie med flere familier eller en stor vennegruppe. Det dejlige sommerhus ligger blot et stenkast fra indkøbsmuligheder og den vestjyske sandstrand, hvor I kan få en masse timer til at gå.

Der er også en ladestation til jeres el-bil ved ferieboligen (CEE-stik), og bemærk, at forbrug af strøm og vand er inkluderet i prisen.

Pool og aktivitetsrum på Sønder-Vasevej 2B

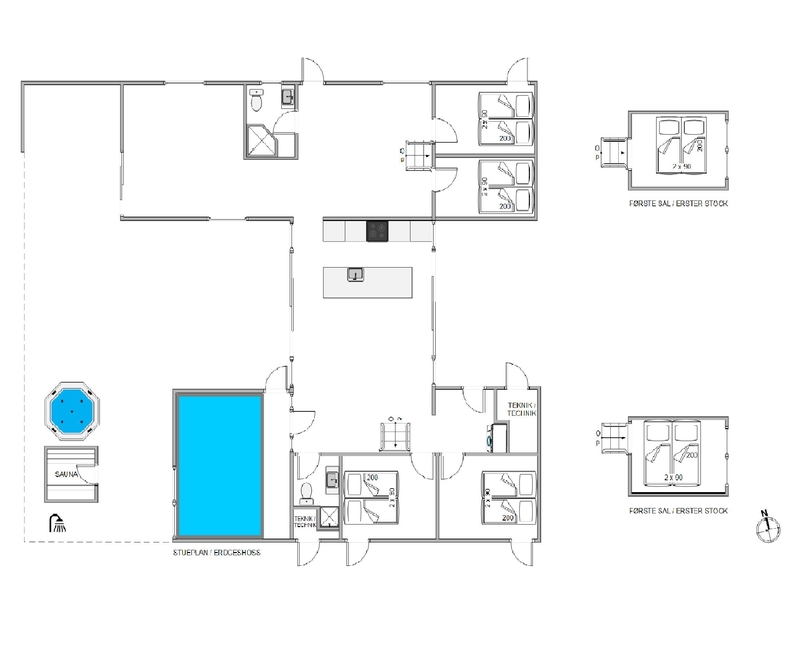
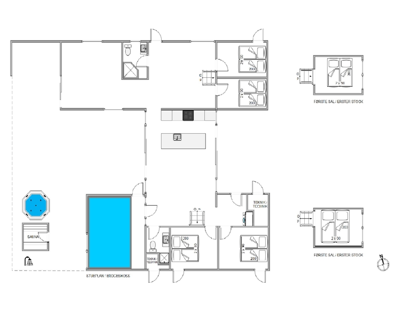
Sommerhuset på Sønder-Vasevej 2B byder på alt det udstyr, som I har brug for på en ferie og mere til. I det store opholdsrum er der højt til loftet, og de flotte kvalitetsmøbler indbyder til afslapning og fælles hygge. Ved siden af opholdsrummet ligger det store aktivitetsrum, hvor I kan afholde små turneringer i både billard og bordtennis.

I det lyse og rummelige køkken med kogeø og moderne udstyr kan I være sammen om madlavningen og bagefter nyde den gode mad ved det store spisebord. I kan også nyde udsigten til den vajende marehalm gennem de store vinduespartier i køkkenet, hvor der desuden er udgang til den dejlige terrasse.

Sommerhusets to badeværelser er moderne og elegant indrettet og har naturligvis gulvvarme. Sovepladserne er placeret på to forskellige sider af huset, så I kan dele dem godt op ? f.eks. hvis I holder ferie med 2 familier. I alt er der 4 soveværelser med komfortable dobbeltsenge og 2 hemse med i alt 4 sovepladser. Alle soveværelser er smukt indrettet med lyse paneler og skabe og er udstyret med eget fjernsyn.

Et af de helt store plusser ved sommerhuset er den moderne pool, som både indbyder til afslapning og til timevis af sjov og plask i det blå vand, og med den udendørs spa og sauna, er der alle muligheder for at få wellness som en del af ferien.

Hele sommerhuset opvarmes desuden med en varmepumpe, som driver gulvvarmen på en energibesparende måde, og I behøver ikke bekymre jer om forbruget af el eller vand, da dette er inkluderet i prisen.

Sommerhus med både 6 personers udespa og udendørssauna

Fra opholdsstuen har I adgang til den rummelige, overdækkede terrasse, hvor I kan sidde i læ for Vestenvinden og på de kølige dag få varmen fra strålevarmerne. Fra køkkenet er der adgang til den åbne og delvis afskærmede terrasse, hvor I kan nyde en dejlig middag kreeret af feriens grillmester.  Skulle I have lyst til en middagslur, eller er vejret til solbadning, er der naturligvis solvogne og parasol til jeres rådighed.

Feriehuset er beliggende på en stor og smuk naturgrund med både trampolin og volleyballbane. Når aftenen falder på, kan I tænde bål på bålpladsen og grille pølser eller skumfiduser, og for fritidsenthusiasten kan natten tilbringes i den flotte shelter.  

Gæster i dette feriehus må elske luksus og wellness, og her kan I jo nyde både en dejlig varm udesauna og en boblende spa til en stille morgenstund eller den smukke solnedgang. Fra 1. april til 31. oktober er der også en udebruser, hvor I kan få et forfriskende skyl eventuelt efter en tur i det brusende Vesterhav.

Blot 300 meter til stranden og andre nærliggende aktiviteter

Kun 300 meter adskiller jer fra Vesterhavet og de brusende bølger. Her kan I dyrke alle former for vandsport, bygge sandslotte, samle skaller og måske være heldige at finde rav. Den flotte rene sandstrand lokker også til en tur i bølgerne eller også en god lang gåtur langs vandet. 

Den livlige handelsgade med de mange butikker, caféer og restauranter ligger i gåafstand fra feriehuset, og der befinder sig også kulturelle aktiviteter i nærheden. I kan for eksempel besøge Blåvandshuk Fyr og nyde den smukke udsigt, tage en tur til Blåvand Zoo eller høre om de spændende historier fra krigen i Tirpitz Museum, ligesom alle naturoplevelser langs Vestkysten er indenfor køreafstand.

Faciliteter

  12 Antal personer
  1 Husdyr tilladt
  500 m Afstand til indløb
  300 m Afstand til strand
  20 m Pool
Opvaske-maskine
Ikke-ryger

Øvrige faciliteter

Om huset

  Grundareal: 1781 m²
  Husareal: 250 m²
  Byggeår: 2021
  Indkøb: 500 m
  Hav: 300 m
  Personer: 12
  Soveværelser: 4
  Dobbeltsenge: 4
  Børnestole: 1
  Dyr
  Svømmepøl
  Vaskemaskine
  Opvaske-maskine
  Tørretumbler

Rum

Køkken:
  Køleskab
  Ovn
  Mikroovn

Badeværelse:
  Badeværelser: 2

Underholdning

  Tyske TV kanaler

Udendørs

  Liggestole

Betingelser

På ankomstdagen kan nøglen hentes på vores kontor senest kl. 15. Ofte er husene tidligere klar til indflytning, kom gerne ind og spørg om jeres hus er klar. Afrejsetidspunktet er senest kl. 10 eller kl. 9, hvis der er booket slutrengøring.

Beliggenhed

Book huset
Ugekalender 2026
07
08
09
DKK
21.153
10
11
12
13
14
15
16
17
18
19
DKK
24.463
20
21
22
23
DKK
26.183
24
DKK
26.183
25
DKK
26.183
26
27
28
29
30
DKK
44.293
31
DKK
44.293
32
DKK
44.293
33
DKK
42.313
34
35
36
37
38
39
DKK
24.463
40
DKK
24.463
41
42
43
44
DKK
36.753
45
46
DKK
21.153
47
DKK
21.153
48
DKK
21.153
49
DKK
21.153
50
DKK
21.153
51
DKK
21.153
52
DKK
34.523
53
DKK
44.293

Varighed

Valgte periode: Uge
-
Pris: Book dette hus »
Kontakt  Ring mig op

Lignende huse

Nordkrogen 12
Blåvand
Pris fra 16.618 DKK
Se mere
Skallingevej 7B
Ho
Pris fra 21.883 DKK
Se mere
Skippervej 24
Blåvand
Pris fra 22.103 DKK
Se mere
Peter Malersvej 39
Blåvand
Pris fra 15.783 DKK
Se mere