« Tilbage

Hyggeligt poolhus til 6 personer med sauna og spa renoveret i 2020

Katalognr.: 30535

Søndervang 27, Houstrup

I det skønne sommerhus i Houstrup er der plads til hele familien med 6 sovepladser. Sommerhuset er løbende renoveret, senest i 2025, og er udstyret med både pool, spa og sauna. Derfor står ferien utvivlsomt på leg i poolen og afslapning i feriehusets spabad og sauna. Når solen skinner, er det oplagt at bevæge sig ud på en af poolhusets dejlige terrasser, hvoraf den ene er afskærmet og overdækket. Her kan I nyde den friske luft eller sole jer på en af feriehusets liggestole.

Indbydende, renoveret sommerhus med pool, spa og sauna

Der er ingen tvivl om, at ferien kommer til at foregå i ægte ?sommerhus-stemning?, da indretningen inviterer til masser af hygge og samvær med familien. Sommerhuset er senest renoveret i 2020 og fremstår rigtig indbydende med lyse naturmaterialer og fine detaljer, som tilfører omgivelserne ekstra ?varme?. Feriehusets skønne kombinerede stue- og spiseafdeling bliver samlingspunktet, når der skal hygges foran brændeovnen efter en dag i den friske vestenvind og i feriehusets pool.

Sommerhuset er udstyret med en fantastisk pool, hvor der både kan svømmes og leges. Her kommer børn og voksne til at have utallige timer af sjov og hygge. Når energien er opbrugt efter en tur i poolen, står den på afslapning i feriehusets spabad og sauna, hvor I har mulighed for at læne jer tilbage og nyde ferien.

Her behøver I desuden ikke at bekymre jer om høje forbrugsomkostninger, eftersom sommerhuset varmes op af en luft-til-luft-varmepumpe, og poolen varmes op af en luft-til-vand-varmepumpe.

Feriehus med flere terrasser og en dejlig have i private omgivelser

Poolhuset er beliggende på en 1.366 kvadratmeter stor grund, som danner base for en fantastisk have. Sommerhusets have er omkranset af træer, hvilket sørger for feriens privatliv. Der er en stor græsplæne og et gyngestativ, så børnene kan brænde krudt af i den skønne vestjyske natur.

Når I skal nyde en kop morgenkaffe eller et glas vin, er en af feriehusets to dejlige terrasser oplagt. Den vestvendte terrasse er overdækket samt afskærmet, så det er nemt at holde øje med børnene, samtidig med at I slapper af på sommerhusets liggestole. Den anden terrasse giver jer mulighed for at fange solens stråler tidligere på dagen, da den er vendt mod nordøst.

Nyd ferien i Houstrup i naturskønne omgivelser

Sommerhuset i Houstrup med adresse på Søndervang 27 giver jer mulighed for at nyde den fantastiske vestjyske natur. Når I holder ferie i Houstrup, er Vesterhavet og de brede strande kun få kilometer væk. Derudover kan I tage jer en skøn gåtur i Blåbjerg Klitplantage.

I Nr. Nebel finder I det nærmeste større supermarked til de store indkøb. Her har I også mulighed for at handle i flere forskellige specialbutikker. Hvis I vil opleve de vestjyske fiskekuttere, ligger havnebyen Hvide Sande kun en halv time væk i bil. I Hvide Sande finder I også hyggelige restauranter og caféer.

INGEN UDLEJNING TIL UNGDOMSGRUPPER

Faciliteter

  6 Antal personer
   Husdyr ikke tilladt
  2500 m Afstand til indløb
  4000 m Afstand til strand
  21 m Pool
Sauna
Opvaske-maskine
Ikke-ryger

Øvrige faciliteter

Om huset

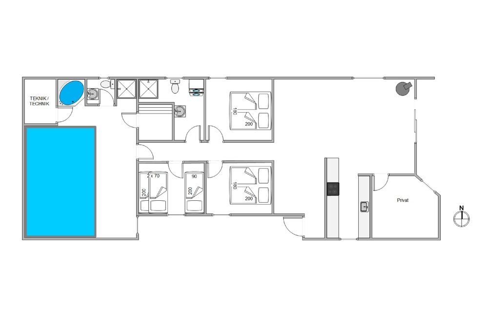
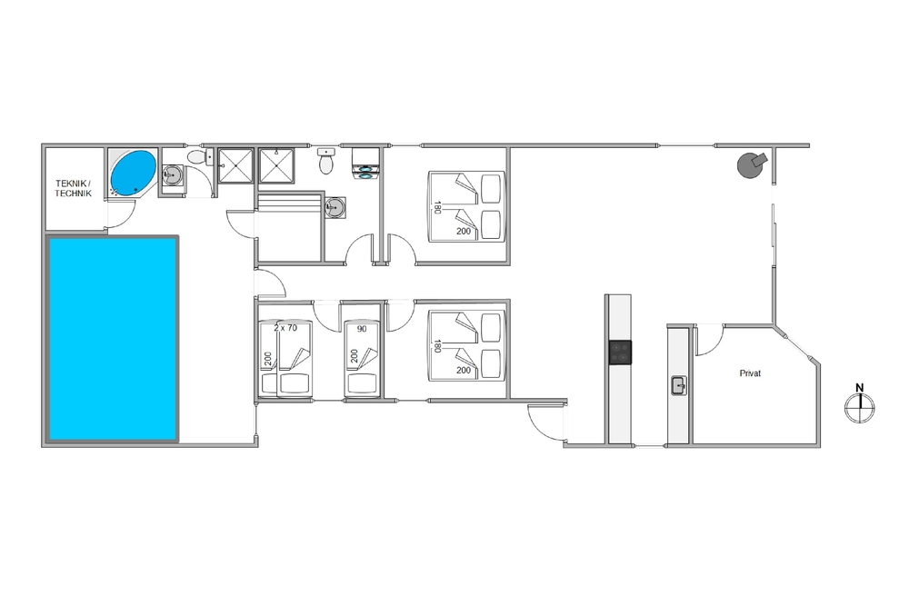
  Grundareal: 1366 m²
  Husareal: 137 m²
  Byggeår: 1992
  Renoveret: 2020
  Indkøb: 2500 m
  Hav: 4000 m
  Personer: 6
  Soveværelser: 3
  Enkeltsenge: 1
  Dobbeltsenge: 2
  Køjesenge: 1
  Børnestole: 1
  Børnesenge: 1
  Brændeovn
  Svømmepøl
  Vaskemaskine
  Opvaske-maskine
  Tørretumbler

Rum

Køkken:
  Køleskab
  Ovn
  Mikroovn

Badeværelse:
  Badeværelser: 1
  Toiletter: 1
  Sauna

Underholdning

  Internet
  Radio
  Tyske TV kanaler

Udendørs

  Liggestole
  Grill

Betingelser

På ankomstdagen kan nøglen hentes på vores kontor senest kl. 15. Ofte er husene tidligere klar til indflytning, kom gerne ind og spørg om jeres hus er klar. Afrejsetidspunktet er senest kl. 10 eller kl. 9, hvis der er booket slutrengøring.

Beliggenhed

Book huset
Ugekalender 2026
07
08
09
DKK
6.813
10
DKK
6.813
11
DKK
6.813
12
13
14
15
16
DKK
8.073
17
DKK
8.073
18
DKK
7.773
19
DKK
7.773
20
21
DKK
7.773
22
DKK
7.773
23
DKK
7.773
24
DKK
7.773
25
DKK
7.773
26
DKK
7.773
27
DKK
10.223
28
29
DKK
14.173
30
31
32
DKK
15.123
33
DKK
14.173
34
DKK
12.373
35
DKK
11.703
36
37
38
DKK
8.073
39
DKK
8.073
40
DKK
8.073
41
42
43
44
DKK
9.073
45
DKK
6.813
46
DKK
6.813
47
DKK
6.813
48
49
50
51
52
DKK
11.703
53

Varighed

Valgte periode: Uge
-
Pris: Book dette hus »
Kontakt  Ring mig op

Lignende huse

Houstrupvej 120 A+B
Houstrup
Pris fra 9.663 DKK
Se mere
Houstrupvej 164
Houstrup
Pris fra 7.903 DKK
Se mere
Guldvangen 14
Houstrup
Pris fra 5.833 DKK
Se mere
Ndr. Skovvej 24
Houstrup
Pris fra 6.363 DKK
Se mere