« Tilbage

Hyggeligt sommerhus med brændeovn til 6 personer i Blåvand

Katalognr.: 60402

Svinget 25, Blåvand

Er I på udkig efter et sommerhus til jeres næste familieferie ved Vesterhavet? Så tag et kig på dette hyggelige sommerhus i Blåvand. Det hyggelige sommerhus med brændeovn på Svinget 25 i Blåvand rummer plads til op til 6 personer ? og her er jeres hund også hjerteligt velkommen til at komme med på ferie.

Hyggelig indretning med brændeovn

I sommerhuset på Svinget 25 i Blåvand er der ingen tvivl om, at I vil føle jer hjemme på jeres ferie. Sommerhuset rummer nemlig en hyggelig indretning, hvor I straks føler jer tilpas, når I ankommer.

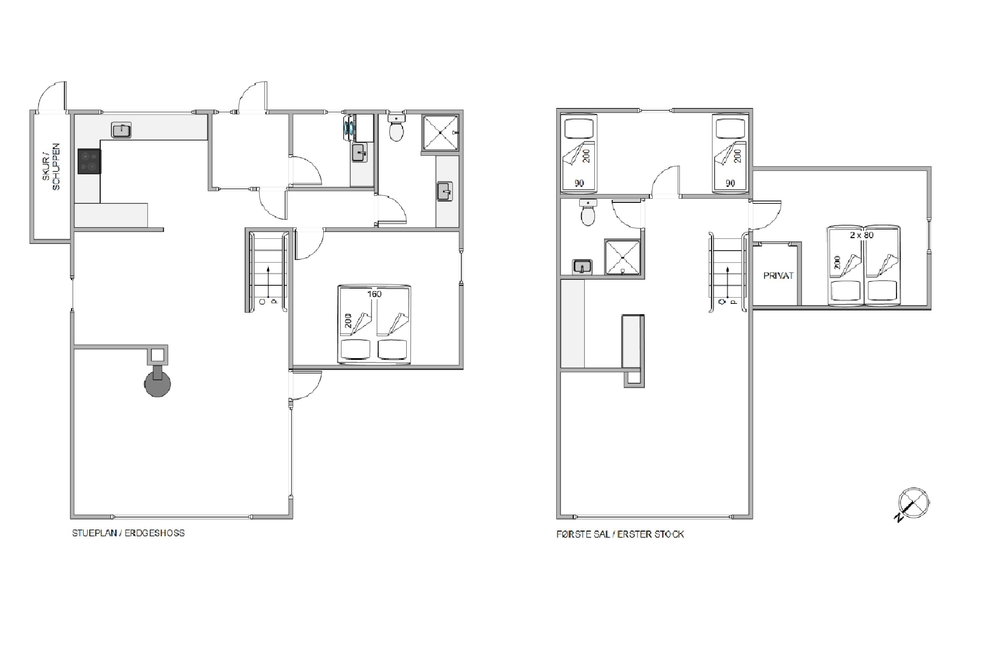
Det 143 kvadratmeter store sommerhus byder på 3 gode soveværelser, som I kan søge mod, når det er tid til at gå til køjs. Efter en god nats søvn skal I selvfølgelig ikke stå i kø til toilettet ? her er der nemlig 2 badeværelser.

I opholdsrummet kan I samles til hyggelige feriestunder med hele familien, og imens sørger brændeovnen for at fuldende feriestemningen med sin knitren og varme. Udover brændeovnen er der også en varmepumpe i feriehuset, der sørger for et godt indeklima på energivenlig vis.

Lukket terrasse til de solrige dage

Fra sommerhuset kan I træde ud på terrassen, der er lukket ? dermed vil I også kunne have jeres hund med ude på terrassen. På terrassen kan I nyde de solrige feriedage, og her står der havemøbler og liggestole klar til jer, så I kan sætte jer godt til rette på en god plads i solens stråler.

Når dagen så småt går på hæld, er det tid til at gøre klar til aftensmaden. På terrassen har I en gasgrill, som I kan tilberede aftensmaden på ? måske middagen står på nogle lækre bøffer, som I kan nyde med et godt glas vin til?

Ferie i Blåvand

Når I holder ferie i Blåvand, har I mange skønne ferieoplevelser i vente ? både for store og små. I Blåvand kan I blandt andet besøge Blåvandshuk fyr, der er Danmarks vestligste punkt. Når I har besteget fyrets 170 trappetrin, kan I opleve en helt fantastisk udsigt.

På en ferie i Blåvand skal I selvfølgelig også besøge Vesterhavet. Fra jeres ferieadresse på Svinget 25 har I 1,5 kilometer til de smukke sandstrande og brusende bølger.

I Blåvand er der flere supermarkeder og specialbutikker, I kan besøge, når I skal klare jeres ferieindkøb ? den nærmeste indkøbsmulighed ligger blot 900 meter fra feriehuset. Desuden er der også flere skønne spisesteder i byen, I kan besøge.

Faciliteter

  6 Antal personer
  1 Husdyr tilladt
  900 m Afstand til indløb
  1500 m Afstand til strand
Opvaske-maskine
Ikke-ryger

Øvrige faciliteter

Om huset

  Grundareal: 1960 m²
  Husareal: 143 m²
  Byggeår: 1987
  Indkøb: 900 m
  Hav: 1500 m
  Personer: 6
  Soveværelser: 3
  Enkeltsenge: 2
  Dobbeltsenge: 2
  Sovesofaer: 1
  Dyr
  Brændeovn
  Vaskemaskine
  Opvaske-maskine
  Tørretumbler

Rum

Køkken:
  Køleskab
  Ovn
  Mikroovn

Badeværelse:
  Badeværelser: 2

Underholdning

  DVD-afspiller
  Tyske TV kanaler

Udendørs

  Liggestole

Betingelser

På ankomstdagen kan nøglen hentes på vores kontor senest kl. 15. Ofte er husene tidligere klar til indflytning, kom gerne ind og spørg om jeres hus er klar. Afrejsetidspunktet er senest kl. 10 eller kl. 9, hvis der er booket slutrengøring.

Beliggenhed

Book huset
Ugekalender 2025
46
DKK
5.157
47
48
DKK
5.157
49
DKK
5.157
50
DKK
5.157
51
DKK
5.157
52
DKK
8.647

Varighed

Valgte periode: Uge
-
Pris: Book dette hus »
Kontakt  Ring mig op

Lignende huse

Skippervej 38a
Blåvand
Pris fra 13.457 DKK
Se mere
Karl Postsvej 9B
Blåvand
Pris fra 14.197 DKK
Se mere
Sandtoftevej 35
Blåvand
Pris fra 14.287 DKK
Se mere
Klitvej 9
Blåvand
Pris fra 10.707 DKK
Se mere