« Tilbage

Moderne sommerhus i Henne med havudsigt tæt på havet

Katalognr.: 40801

Fasanvej 10, Henne Strand

På Fasanvej 10 i Henne Strand står dette fantastiske to-etagers luksussommerhus og venter på jer. Her får I hele den luksuriøse feriepakke: Lækker og moderne indretning, sauna og spabad, 250 meter til stranden og havudsigt fra terrassen. Bedre bliver det ikke!

Luksussommerhus med egen wellnessoase ? sauna og spa

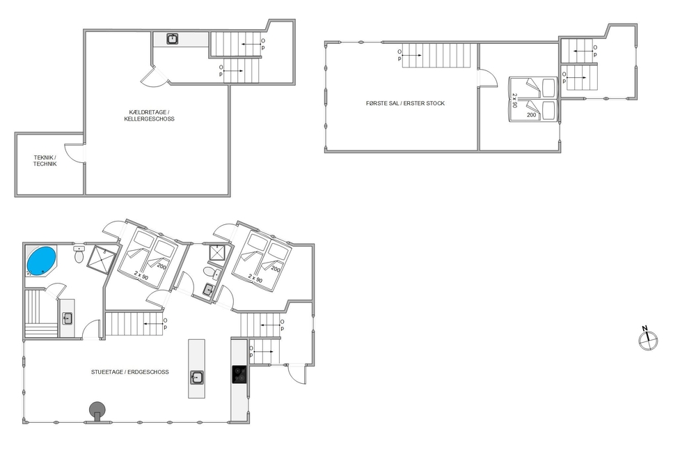
To etager og 160 m² ægte luksus, det er hvad, der venter jer her. Det moderne feriehus er spækket med lækre highlights, og den stilfulde og gennemførte indretning karakteriserer huset fra ende til anden. Her er kvalitet og stil absolutte nøgleord.

De lyse vægge, gulve og lofter og store vinduespartier sørger for en god og afslappende ferieatmosfære, og gaspejsen i den store spisestue spreder masser af hyggelig stemning på de kolde feriedage.

På første sal finder I en hyggelig stue med biopejs, og på den store sofa er der plads til alle ? og gennem vinduesfronterne kan I se helt til havet. På det ene af to badeværelser har I også jeres helt egen wellnessoase med sauna og spabad. Hvad mere har man brug for?

Havudsigt, lækker terrasse og fantastisk beliggenhed

Fra første sal har I udgang til en hyggelig møbleret balkon, hvorfra I kan nyde havudsigten sammen med en friskbrygget kop kaffe eller en kold drink på en varm sommerdag. Fra nederste etage kommer I ud på den store terrasse, der næsten omgiver huset. Her er der lagt op til masser af hyggelige grillaftener og afslappende dage i liggestolene.

Beliggenheden er i særklasse, og ligesom I kan se havet fra huset, kan I høre de brusende bølger kalde fra terrassen. Med kun 250 meter til stranden bliver der helt sikkert tid til en strandudflugt eller to i løbet af ferien.

Henne Strand er kendetegnet ved sin summende ferieatmosfære og sine hyggelige forretninger og caféer, og fra feriehjemmet til byen er der kun små 300 meter, en lille sti fører over husets grund over til Musvågevej. Her kan der shoppes, spises lækker frokost og købes massevis af softice.

 

Faciliteter

  6 Antal personer
  1 Husdyr tilladt
  300 m Afstand til indløb
  250 m Afstand til strand
Sauna
Opvaske-maskine
Ikke-ryger

Øvrige faciliteter

Om huset

  Grundareal: 1093 m²
  Husareal: 160 m²
  Byggeår: 2012
  Indkøb: 300 m
  Hav: 250 m
  Havudsigt
  Personer: 6
  Soveværelser: 3
  Dobbeltsenge: 3
  Børnestole: 1
  Børnesenge: 1
  Dyr
  Vaskemaskine
  Opvaske-maskine
  Tørretumbler

Rum

Køkken:
  Køleskab
  Ovn
  Mikroovn

Badeværelse:
  Badeværelser: 2
  Sauna

Underholdning

  Internet
  CD-afspiller
  DVD-afspiller
  Radio
  Tyske TV kanaler

Udendørs

  Liggestole
  Grill

Betingelser

På ankomstdagen kan nøglen hentes på vores kontor senest kl. 15. Ofte er husene tidligere klar til indflytning, kom gerne ind og spørg om jeres hus er klar. Afrejsetidspunktet er senest kl. 10 eller kl. 9, hvis der er booket slutrengøring.

Beliggenhed

Book huset
Ugekalender 2026
03
DKK
10.933
04
DKK
10.933
05
DKK
10.933
06
DKK
10.933
07
08
DKK
10.933
09
DKK
10.933
10
DKK
10.933
11
DKK
10.933
12
DKK
10.933
13
14
DKK
14.893
15
DKK
14.893
16
DKK
10.933
17
DKK
10.933
18
DKK
10.933
19
DKK
10.933
20
21
22
23
24
DKK
10.933
25
26
27
28
29
30
DKK
19.563
31
DKK
19.563
32
33
34
35
DKK
14.893
36
DKK
12.893
37
38
DKK
10.933
39
DKK
10.933
40
DKK
10.933
41
DKK
10.933
42
DKK
12.893
43
DKK
14.893
44
DKK
12.893
45
46
47
48
49
50
51
52
DKK
14.893
53
DKK
18.153
02
DKK
10.743

Varighed

Valgte periode: Uge
-
Pris: Book dette hus »
Kontakt  Ring mig op

Lignende huse

Drosselvej 2
Henne Strand
Pris fra 21.153 DKK
Se mere
Klitvej 23
Henne Strand
Pris fra 16.153 DKK
Se mere
Slåenvej 2
Henne Strand
Pris fra 12.743 DKK
Se mere
Klitrosevej 3
Henne Strand
Pris fra 19.723 DKK
Se mere