« Tilbage

Moderne sommerhus med pool, sauna, udespa og aktivitetsrum

Katalognr.: G5292

Fyrmarken 247, Nr. Lyngvig

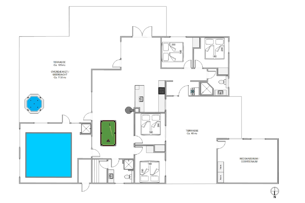
På Fyrmarken 247 i Nr. Lyngvig står dette moderne sommerhus klar til at byde op til 8 personer inden for til en ferie, der kommer til at være fyldt med afslapning og underholdning. I sommerhuset kan I tilbringe underholdende timer i pool og aktivitetsrum samt afslappende stunder i sauna og udespa. Sommerhuset ligger kun 700 meter fra Vesterhavet, og I er desuden hjerteligt velkomne til at have op til 2 hunde med på ferien. Sommerhuset har også ladestik til el-bil, så I har mulighed for at lade el-bilen op.

Underholdende timer i pool og aktivitetsrum

Når I holder ferie i sommerhuset på Fyrmarken 247 i Nr. Lyngvig, vil der være noget for enhver. Til de af jer, der elsker at være aktive, er der flere gode muligheder for aktiviteter, I kan lave i løbet af ferien i sommerhuset.

I kan blandt andet tilbringe mange sjove timer i sommerhusets 24 kvadratmeter store pool, hvor I kan svømme og bade i timevis. Derudover er der også et aktivitetsrum i feriehuset, hvor I kan spille billard, og her kan I også arrangere en aften med turnering for at finde ud af, hvem der er den bedste til billard.

Afslappende stunder i sauna og udespa

Til de af jer, der hellere vil nyde nogle afslappende stunder i løbet af ferien, er der selvfølgelig også noget. Til jer er der en skøn sauna i feriehuset, hvor I kan sætte jer til rette i den dejlige varme og komme helt ned i gear.

Derudover står der også en lækker udespa klar til jer på terrassen, hvor I kan slappe af i det boblende vand under åben himmel ? især om aftenen under stjernehimmelen er det noget helt særligt at sidde i udespaen.

Moderne indretning

Sommerhuset er bygget i 2022, og når I træder indenfor, vil I straks blive mødt af den moderne indretning. I det 185 kvadratmeter store sommerhus udgør alrummet jeres samlingspunkt, hvor I kan samle hele ferieflokken til hyggelige stunder med film, mad og spil, mens brændeovnen knitrer i baggrunden.

Når I har brugt al jeres energi for dagen, kan I bevæge jer mod sommerhusets 4 gode soveværelser. På hvert soveværelse venter jer en dobbeltseng, hvor I kan blive tanket op med ny energi til de næste feriedage. Med hele 2 badeværelser i feriehuset slipper I for kø fra morgenstunden.

Sommerhusets alrum, soveværelser og badeværelser er alle udstyret med gulvvarme, der holder jeres fødder varme. Derudover er feriehuset udstyret med en varmepumpe, der sørger for et godt indeklima til jer på ferien.

Lækker terrasse og kun 700 meter til stranden

På sommerhusets lækre terrasse kan I tilbringe de solrige feriedage, hvor I kan læne jer tilbage i havemøbler og liggestole på en god plads i solen. På terrassen står gasgrillen også klar til, at I kan tilberede lækre grillmiddage på de lune ferieaftener.

Sommerhuset på Fyrmarken 247 ligger kun 700 meter fra Vesterhavet, og I vil derfor kunne gå til de smukke sandstrande og blå bølger på kort tid. Uanset årstid, vind og vejr er en tur til Vesterhavet det hele værd.

Faciliteter

  8 Antal personer
  1 Husdyr tilladt
  5000 m Afstand til indløb
  700 m Afstand til strand
  24 m Pool
Sauna
Opvaske-maskine
Ikke-ryger

Øvrige faciliteter

Om huset

  Grundareal: 1450 m²
  Husareal: 185 m²
  Byggeår: 2022
  Indkøb: 5000 m
  Hav: 700 m
  Personer: 8
  Soveværelser: 4
  Dobbeltsenge: 4
  Dyr
  Brændeovn
  Svømmepøl
  Vaskemaskine
  Opvaske-maskine
  Tørretumbler

Rum

Køkken:
  Køleskab
  Ovn
  Mikroovn

Badeværelse:
  Badeværelser: 2
  Sauna

Underholdning

  Tyske TV kanaler

Udendørs

  Liggestole

Betingelser

På ankomstdagen kan nøglen hentes på vores kontor senest kl. 15. Ofte er husene tidligere klar til indflytning, kom gerne ind og spørg om jeres hus er klar. Afrejsetidspunktet er senest kl. 10 eller kl. 9, hvis der er booket slutrengøring.

Beliggenhed

Book huset
Ugekalender 2026
07
08
09
10
11
12
13
14
15
16
17
18
19
DKK
16.103
20
21
22
23
24
25
26
DKK
18.123
27
DKK
20.153
28
DKK
29.443
29
30
31
32
33
34
35
DKK
26.543
36
37
38
39
DKK
16.103
40
DKK
16.103
41
DKK
16.103
42
DKK
26.543
43
44
45
DKK
12.593
46
DKK
12.593
47
48
49
50
51
52
DKK
26.543
53
DKK
32.343

Varighed

Valgte periode: Uge
-
Pris: Book dette hus »
Kontakt  Ring mig op

Lignende huse

Sønder Klitvej 30
Årgab
Pris fra 33.453 DKK
Se mere
Bjerregårdsvej 377
Bjerregård
Pris fra 20.493 DKK
Se mere
Fyrmarken 247
Nr. Lyngvig
Pris fra 12.593 DKK
Se mere
Bjerregårdsvej 227
Bjerregård
Pris fra 14.523 DKK
Se mere