« Tilbage

Fredeligt beliggende hus med garage og hund tilladt

Katalognr.: K6956

Irisvej 13, Lodbjerg Hede

Dette charmerende sommerhus på Irisvej 13 ligger på en fredelig grund. Her kan I tilbringe ferien med hele familien og jeres firbenede ven. Sommerhuset inviterer jer med sin velplejede grund og et aktivitetsrum med bordtennisbord til mange timers sjov. Om aftenen sørger brændeovnen for den typiske sommerhusstemning.

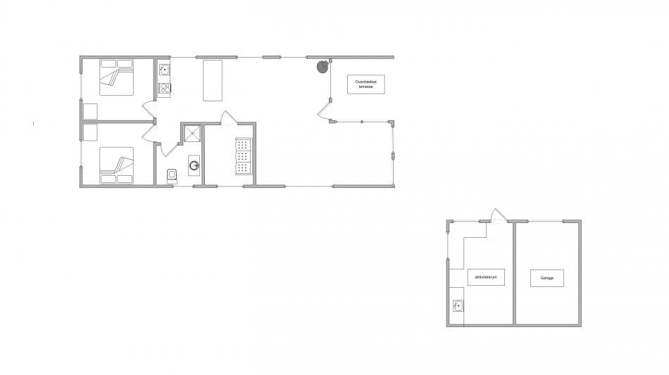
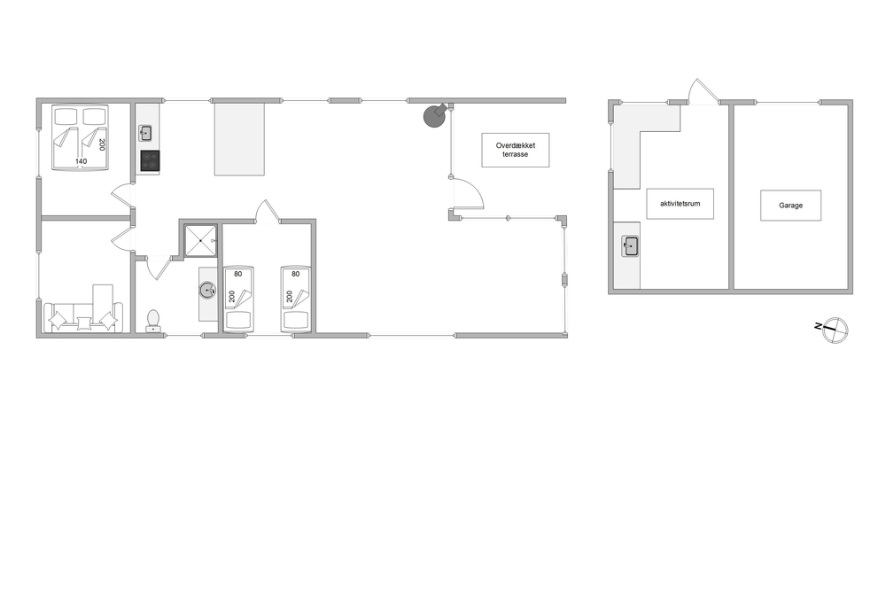
Sommerhus på Irisvej 13 med åbent alrum og 3 soveværelser

Hjertet i sommerhuset på Irisvej 13 er den store stue med integreret køkken og spiseplads. Det åbne koncept giver mulighed for at tilbringe tid med hele familien, selvom én måske laver mad og resten hygger sig sammen. I kan dog også lave mad sammen, hvilket også er muligt på grund af det åbne rumkoncept.

Fra det rummelige opholdsrum er der adgang til tre soveværelser og 1 badeværelse med alt nødvendigt udstyr. Soveværelserne er indrettet med forskellige behov for øje: 1 med dobbeltseng, 1 med 2 enkeltsenge og 1 med en praktisk sovesofa ? ideelt til børn eller ekstra gæster.

Sommerhus med aktivitetsrum og plads til hygge

Efter en dag fyldt med oplevelser ved Vesterhavet kan I slappe af i det åbne og hyggelige opholdsrum. Tænd op i brændeovnen og nyd den varme, knitrende stemning, mens I samles til en god film eller et spil kort ? den klassiske sommerhusstemning er garanteret.

I sommerhusets garage er der tænkt praktisk og sjovt. Den er delt op i to funktionelle områder: I den ene del er der plads til parkering af bil og cykler, og i den anden finder I et aktivitetsrum med bordtennisbord, hvor I kan udfordre hinanden i underholdende kampe hele ferien igennem.

Her finder I også vaskemaskine, tørretumbler og et ekstra køle-fryseskab ? perfekte faciliteter til en komfortabel og afslappende ferie for hele familien.

Fredfyldt beliggende sommerhus med stor terrasse

Dette sommerhus ligger for enden af en blind vej, og den velplejede græsplæne er omgivet af træer. Her kan I læne jer tilbage og nyde jeres ferie. Den rummelige terrasse er højdepunktet udenfor. Her vil alle finde deres plads, og de tilhørende havemøbler indbyder til udstrakt solbadning. For dem, der foretrækker de skyggefulde steder, byder terrassen også på et overdækket område, som endda er afskærmet, så I kan nyde den friske luft selv i blæsende vejr.

Den velplejede græsplæne vil være et højdepunkt for dine børn og dit firbenede familiemedlem. Her kan dine børn og din hund boltre sig, spille bold og udforske ejendommen. Efter en begivenhedsrig dag på den danske vestkyst kan I slutte dagen af med en hyggelig grillaften om aftenen.

Sommerhus tæt på Vesterhavet og indkøb ? perfekt beliggenhed til jeres ferie

Sommerhuset ligger kun 1.700 meter fra Vesterhavet, hvor I kan nyde lange gåture i det bløde sand eller tage en forfriskende dukkert ? uanset årstiden. Den korte afstand til havet gør det nemt at få naturoplevelser ind i ferien hver dag.

Udover de naturskønne omgivelser byder området også på gode praktiske forhold. Der er kun 2.000 meter til nærmeste supermarked, som har et bredt udvalg af dagligvarer ? så I hurtigt og nemt kan handle ind til både morgenmad og grillmiddage.

 

Faciliteter

  6 Antal personer
  1 Husdyr tilladt
  2000 m Afstand til indløb
  1700 m Afstand til strand
Opvaske-maskine
Ikke-ryger

Øvrige faciliteter

Om huset

  Grundareal: 2300 m²
  Husareal: 70 m²
  Byggeår: 1984
  Renoveret: 2013
  Indkøb: 2000 m
  Hav: 1700 m
  Personer: 6
  Soveværelser: 3
  Enkeltsenge: 2
  Dobbeltsenge: 1
  Sovesofaer: 1
  Dyr
  Brændeovn
  Vaskemaskine
  Opvaske-maskine
  Tørretumbler

Rum

Køkken:
  Køleskab
  Ovn
  Mikroovn

Badeværelse:
  Badeværelser: 1

Underholdning

  CD-afspiller
  DVD-afspiller
  Radio
  Tyske TV kanaler

Udendørs

  Liggestole
  Grill

Betingelser

På ankomstdagen kan nøglen hentes på vores kontor senest kl. 15. Ofte er husene tidligere klar til indflytning, kom gerne ind og spørg om jeres hus er klar. Afrejsetidspunktet er senest kl. 10 eller kl. 9, hvis der er booket slutrengøring.

Beliggenhed

Book huset
Ugekalender 2025
43
44
45
46
47
48
49
50
51
52

Varighed

Valgte periode: Uge
-
Pris: Book dette hus »
Kontakt  Ring mig op

Lignende huse

Krogen 3
Houvig
Pris fra 6.957 DKK
Se mere
Søndervig Landevej 9
Holmsland
Pris fra 6.787 DKK
Se mere
Havklitvej 80
Klegod
Pris fra 5.007 DKK
Se mere
Nordsøvej 94
Søndervig
Pris fra 4.167 DKK
Se mere