« Tilbage

Feriehus med skøn beliggenhed nær stranden i Søndervig

Katalognr.: i0040 (Gl. husnr.: 003)

Nordsøvej 94, Søndervig

Søger I et dejligt feriehus, der har gennemgået renovering, så det overalt fremstår flot, lyst og moderne, kunne feriehuset på Nordsøvej 94 være et godt bud på det. Sommerhuset i Søndervig ligger på en dejlig naturgrund, hvor jeres hund med garanti vil nyde at boltre sig og få brændt krudt af. Feriehuset råder over plads til 6 personer, hvilket er ideelt for familien der ønsker at bo tæt på Søndervig. 

Hvis I ankommer i en elbil, er det muligt at oplade elbilen direkte ved feriehuset.

Flot, renoveret feriehus med en dejlig sauna

I dette hyggelige feriehus kan I rigtig koble fra og slappe af og nyde en dejlig ferie med familien eller vennerne. Sommerhuset er blevet renoveret, så det overalt fremstår lyst og moderne, og det flotte, åbne køkken indbyder til hyggelige stunder, hvor familien kan være samlet omkring madlavningen samt planlægning af ugens oplevelser.

Feriehusets køkkenalrum er helt perfekt til at skabe nogle mindreværdige ferieminder. Her er der dejligt lyst, og dette skyldtes især de dejligste ovenlysvinduer, der skaber et fantastisk indemiljø med et dejligt lysindfald. I kan også med fordel tænde op for husets brændeovn, som altid er garant for at skabe en hyggelig og varm atmosfære. 

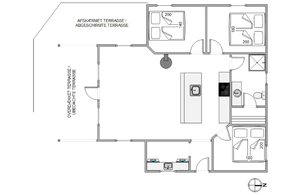
Feriehuset råder over 6 sovepladser fordelt på 3 soverum, der hver især er udstyret med en dobbeltseng. Her kan I efter en god lang dag igen lade batterierne op. Derudover er der et rigtigt flot og rummeligt badeværelse, hvorfra I har adgang til saunaen, som især på de køligere dage indbyder til afslapning, varme og velvære for krop og sjæl.

Skøn beliggenhed på Nordsøvej 94 tæt på stranden og turistbyen Søndervig

Når I træder uden for feriehuset på Nordsøvej 94, møder I mod syd en god, delvis overdækket terrasse, så I har mulighed for at læne jer tilbage i feriehusets havemøbler og liggestole og nyde det omkringliggende område og den friske havluft samtidig med, at den tilhørende grill sørger for et lækkert aftensmåltid.

Feriehuset har en dejlig beliggenhed i Søndervig, hvor I bor tæt på den hyggelige bade- og turistbys centrum. Søndervig centrum, der tilbyder butikker, spisesteder og aktiviteter er kun en rask gåtur fra sommerhuset. Søndervig er populært og flittig besøgt af feriegæster fra både nær og fjern, da der her og i fiskeribyen Hvide Sande, findes spændende butikker, forskellige spisesteder samt sjove aktiviteter for familiemedlemmer i alle aldre.

Sommerhuset er derfor ideelt til jer der ønsker at holde ferie tæt på havet, stranden og Søndervig.

 

Faciliteter

  6 Antal personer
  1 Husdyr tilladt
  600 m Afstand til indløb
  350 m Afstand til strand
Sauna
Opvaske-maskine
Ikke-ryger

Øvrige faciliteter

Om huset

  Grundareal: 1078 m²
  Husareal: 105 m²
  Byggeår: 2011
  Indkøb: 600 m
  Hav: 350 m
  Personer: 6
  Soveværelser: 3
  Dobbeltsenge: 3
  Dyr
  Brændeovn
  Vaskemaskine
  Opvaske-maskine
  Tørretumbler

Rum

Køkken:
  Køleskab
  Ovn
  Mikroovn

Badeværelse:
  Badeværelser: 1
  Sauna

Underholdning

  Internet
  CD-afspiller
  DVD-afspiller
  Radio
  Tyske TV kanaler

Udendørs

  Liggestole
  Grill

Betingelser

På ankomstdagen kan nøglen hentes på vores kontor senest kl. 15. Ofte er husene tidligere klar til indflytning, kom gerne ind og spørg om jeres hus er klar. Afrejsetidspunktet er senest kl. 10 eller kl. 9, hvis der er booket slutrengøring.

Beliggenhed

Book huset
Ugekalender 2025
43
44
DKK
6.457
45
46
47
48
DKK
4.167
49
DKK
4.167
50
51
DKK
4.167
52
DKK
7.457

Varighed

Valgte periode: Uge
-
Pris: Book dette hus »
Kontakt  Ring mig op

Lignende huse

Hjelmevej 155
Søndervig
Pris fra 7.767 DKK
Se mere
Krogen 21
Houvig
Pris fra 12.277 DKK
Se mere
Holmsland Klitvej 201F
Klegod
Pris fra 11.717 DKK
Se mere
Søtangevej 1 Nr. 7
Holmsland
Pris fra 16.497 DKK
Se mere