« Tilbage

Idyllisk, fantastisk beliggende sommerhus med brændeovn

Katalognr.: 60205

Kallesmærskvej 16, Blåvand

Det bliver ikke smukkere! Beliggende lige ud til den fantastisk smukke hede er sommerhuset på Kallemærskvej 16 i Blåvand det optimale valg til parrene eller familien, der elsker den vestjyske natur. Med masser af hyggefaktorer er rammerne er sat til en rigtig lækker sommerhusferie: Indenfor med den klassiske brændeovn og godt interiør og udenfor med skønne terrasseforhold og en naturgrund, der bare fortsætter i det uendelige. Samtidigt har du her muligheden for at gøre brug af de mange aktiviteter, den livlige ferieby Blåvands tilbyder.

Super hyggeligt feriehus til familien på 4

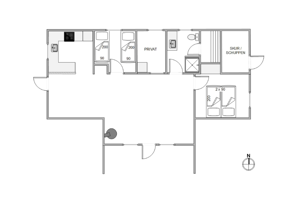
Kom ind og slap af i et dejligt sommerhus med god plads til familien på 4 eller venneparrene, der vil dele et par feriedage sammen i Blåvand. Feriehuset er praktisk og hyggeligt indrettet med 2 soverum med god skabsplads, i det ene soverum er der 2 enkeltsenge og det andet har en dobbeltseng. 

Det store åbne køkken med opvaskemaskine og stuen med brændeovn er perfekte til familiehygge enten ved spisebordet eller i den store bekvemme hjørnesofa, hvor der er plads til hele flokken.

Det hele bliver opvarmet af en energibesparende luft-til-luft varmepumpe.

Skøn overdækket terrasse med udsigt til lynghede og fyrretræer

Gemt af vejen fra omverdenen er sommerhuset på Kallemærskvej 16 jeres helt private ferieparadies. Huset dukker sig og ligger dejligt i læ af lyngbeklædte klitter og knudrede fyrretræer. En del af den store træterrasse foran huset er overdækket, så du både kan finde læ for regn eller en varm middagssol. Tag en kande saft og en god bog med ned i ?haven?, og nyd naturen, duften af lyng og chancen for at møde Kallemærkshedes kongedyr ? de smukke, stolte krondyr.

Blåvand ? skønne hvide strande og gode spisesteder

Sommerhuset ligger kun en kilometer fra Blåvands centrum, hvor der er gode muligheder for at shoppe og masser af spisesteder hele året. Hele familien vil elske en tur i Blåvand Zoo, Tirpitz museum eller en rask tur op i fyrtårnet ved Danmarks vestligste punkt Blåvandshuk.

Blåvand er kendt for sine fantastiske, meget familievenlige badestrande. Her er masser af plads til leg, drageflyvning, sandslottebyggeri, gåture og ravjagter.

Faciliteter

  4 Antal personer
   Husdyr ikke tilladt
  700 m Afstand til indløb
  1900 m Afstand til strand
Opvaske-maskine
Ikke-ryger

Øvrige faciliteter

Om huset

  Grundareal: 2962 m²
  Husareal: 78 m²
  Byggeår: 1987
  Indkøb: 700 m
  Hav: 1900 m
  Personer: 4
  Soveværelser: 2
  Enkeltsenge: 2
  Dobbeltsenge: 1
  Børnestole: 1
  Brændeovn
  Vaskemaskine
  Opvaske-maskine

Rum

Køkken:
  Køleskab
  Ovn
  Mikroovn

Badeværelse:
  Badeværelser: 1

Underholdning

  Internet
  Radio
  Tyske TV kanaler

Udendørs

Betingelser

På ankomstdagen kan nøglen hentes på vores kontor senest kl. 15. Ofte er husene tidligere klar til indflytning, kom gerne ind og spørg om jeres hus er klar. Afrejsetidspunktet er senest kl. 10 eller kl. 9, hvis der er booket slutrengøring.

Beliggenhed

Book huset
Ugekalender 2025
46
47
48
49
50
51
52

Varighed

Valgte periode: Uge
-
Pris: Book dette hus »
Kontakt  Ring mig op

Lignende huse

Hedetoftvej 74A
Blåvand
Pris fra 4.257 DKK
Se mere
Hedetoftvej 78
Blåvand
Pris fra 4.157 DKK
Se mere
Midtbyvej 9
Blåvand
Pris fra 5.157 DKK
Se mere
Gl. Skolevej 2K
Blåvand
Pris fra 4.227 DKK
Se mere