« Tilbage

Lyst og rummeligt feriehus med sauna, udespa og aktivitetsrum

Katalognr.: JJ1148

Klitdalen 15A, Houvig

Skal jeres næste ferie foregå ved Vesterhavet? Så tag et kig på dette lækre feriehus på Klitdalen 15A. Det femstjernede feriehus, der er nybygget i 2022, byder op til 8 personer inden for til en ferie, hvor I hverken kommer til at mangle afslapning eller underholdning. Afslapningen finder sted i den lækre sauna og den skønne udespa, og underholdningen foregår i aktivitetsrummet, hvor I både kan spille billard og bordtennis. En ekstra bonus ved dette feriehus er, at det kun ligger 550 meter fra stranden og Vesterhavet. Er I kørende i el-bil, kan I lade bilen op i ved feriehusets el-stik.

Feriehus med moderne indretning på Klitdalen 15A

Klitdalen 15A er opført i 2022, og I vil straks blive mødt af en moderne indretning, når I træder indenfor. I vil I få glæde af et amerikaner køl/frys i køkkenet.  

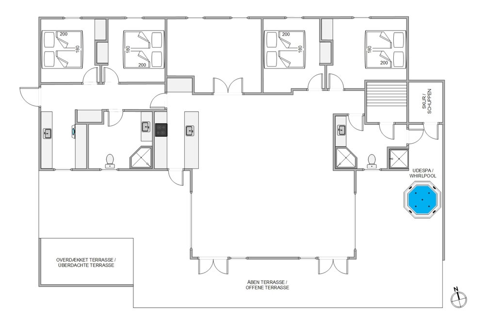
Det 175 kvadratmeter store feriehus er indrettet med 4 gode soveværelser ? på 3 af soveværelserne er der dobbeltseng, mens det fjerde soveværelse er indrettet med 2 enkeltsenge. Om morgenen skal I ikke bekymre jer om at stå i kø til badeværelset, for der er hele 2 badeværelser i feriehuset ? og begge er endda udstyret med gulvvarme.

feriehusets alrum vil utvivlsomt blive jeres store samlingspunkt på ferien. I alrummet kan I både samles om madlavningen, planlægningen af de kommende feriedage, gode film i tv?et og meget mere.

I dette feriehus skal I heller ikke bruge en masse tid på det praktiske husarbejde, for her står både opvaskemaskinen, vaskemaskinen og tørretumbleren klar til at hjælpe med det. Feriehuset bliver desuden opvarmet af en energivenlig varmepumpe, så I altid har et godt indeklima på ferien.

Afslapning i højsæde i sauna og udespa

Når I holder ferie, skal der selvfølgelig være afslapning på programmet, så I kan komme helt ned i gear. I feriehuset på Klitdalen 15A er afslapningen i højsædet, og her er der rig mulighed for, at I kan få slappet fuldstændig af.

På terrassen kan I nyde en dejlig, afslappende stund i den skønne udespa, hvor I virkelig kan slappe af i det varme, boblende vand, der forkæler kroppen. Inden I sætter jer i udespaen, kan I skylle jer under udebruseren på terrassen. Et skyl under udebruseren er også oplagt efter en tur ved stranden, så I kan få skyllet sandet af tæerne. I kan benytte jer af udebruseren i perioden arpil til november. 

Et andet sted, I virkelig kan slappe af i feriehuset, er på det ene af badeværelserne. Her kan I nemlig træde ind i en lækker sauna, hvor I kan sætte jer godt til rette og nyde en rolig og afslappende stund i varmen.

Underholdende timer i aktivitetsrummet med billard og bordtennis

Når der skal være mere action og underholdning på programmet, så er det feriehusets aktivitetsrum, I skal søge mod. Her kan I både spille billard og bordtennis, og der er garanti for, at I kommer til at tilbringe mange underholdende timer sammen i aktivitetsrummet ? måske I skal arrangere en spilaften med turnering?

Skøn beliggenhed kun 550 meter fra stranden

Feriehuset ligger på en 1.500 kvadratmeter stor grund, og her er der et virkelig skønt udeområde for både store og små. De voksne kan finde sig godt til rette på terrassen, hvor der står både havemøbler, liggestole og en kuglegrill klar til jer, mens børnene kan lege i haven, hvor der er sandkasse og gyngestativ til dem.

Desuden er feriehuset beliggende kun 550 meter fra stranden og Vesterhavet, som I kan nå til på kort tid til fods. Om I trænger til en frisk gåtur, en dukkert i havet eller vil se en smuk solnedgang, så er Vesterhavet et oplagt sted at besøge.

Fra feriehuset har I også kun 700 meter til jeres nærmeste indkøbsmulighed, så I vil hurtigt kunne få købt de sidste ting til grillmiddagen, hvis I skulle mangle noget.

Faciliteter

  8 Antal personer
   Husdyr ikke tilladt
  700 m Afstand til indløb
  550 m Afstand til strand
Sauna
Opvaske-maskine
Ikke-ryger

Øvrige faciliteter

Om huset

  Grundareal: 1500 m²
  Husareal: 175 m²
  Byggeår: 2022
  Indkøb: 700 m
  Hav: 550 m
  Personer: 8
  Soveværelser: 4
  Enkeltsenge: 2
  Dobbeltsenge: 3
  Vaskemaskine
  Opvaske-maskine
  Tørretumbler

Rum

Køkken:
  Køleskab
  Ovn

Badeværelse:
  Badeværelser: 2
  Sauna

Underholdning

  Tyske TV kanaler

Udendørs

  Liggestole
  Grill

Betingelser

På ankomstdagen kan nøglen hentes på vores kontor senest kl. 15. Ofte er husene tidligere klar til indflytning, kom gerne ind og spørg om jeres hus er klar. Afrejsetidspunktet er senest kl. 10 eller kl. 9, hvis der er booket slutrengøring.

Beliggenhed

Book huset
Ugekalender 2026
03
DKK
8.743
04
DKK
8.743
05
DKK
8.743
06
DKK
8.743
07
DKK
9.723
08
09
10
11
12
DKK
8.743
13
14
15
16
DKK
9.723
17
DKK
9.723
18
19
DKK
10.703
20
21
22
DKK
12.053
23
24
25
26
27
DKK
15.603
28
29
30
31
DKK
22.843
32
DKK
22.843
33
DKK
21.253
34
DKK
18.313
35
DKK
15.603
36
37
38
39
DKK
10.703
40
41
DKK
10.703
42
43
44
DKK
12.053
45
46
47
48
49
50
51
52
DKK
15.603
53
DKK
21.253

Varighed

Valgte periode: Uge
-
Pris: Book dette hus »
Kontakt  Ring mig op

Lignende huse

Holmsland Klitvej 74A
Klegod
Pris fra 19.963 DKK
Se mere
Frans Julius Vej 50
Søndervig
Pris fra 14.423 DKK
Se mere
Søtangevej 1 Nr. 7
Holmsland
Pris fra 16.723 DKK
Se mere
Harbo Stages Vej 21
Søndervig
Pris fra 14.473 DKK
Se mere