« Tilbage

Hyggeligt sommerhus med sauna kun 200 meter fra stranden

Katalognr.: 60392

Klitvej 7, Blåvand

Velkommen til dette skønne feriehus i Blåvand, beliggende på den idylliske Klitvej 7. Dette hus blev totalrenoveret i 2022 og tilbyder nu komfort, luksus og en enestående oplevelse ved den smukke, danske vestkyst. Med en rummelig beboelsesflade på 190m2 og en pragtfuld naturgrund på 2504m2 er det den ideelle oase for familie, venner og endda din hund. Her kan I føle dig hjemme og nyde alle de faciliteter, dette 5-stjernede hus har at byde på.

Høj komfort og de bedste faciliteter

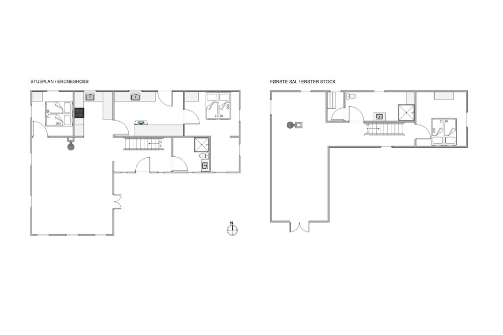
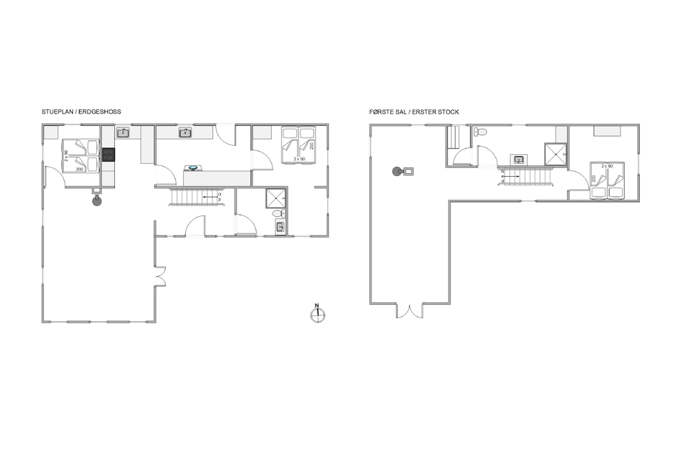
Feriehuset i Blåvand har plads til op til otte personer med tre hyggelige soveværelser, der hver er udstyret med en komfortabel dobbeltseng og dertil en sovesofa på 1. sal. Forestil jer hyggelige aftener foran den knitrende brændeovn, der skaber en varm og hyggelig atmosfære. Derudover byder huset på moderne bekvemmeligheder som opvaskemaskine, vaskemaskine og tørretumbler, der gør hverdagen nemmere. Opholdet bliver også forbedret af gulvvarme på badeværelset og en effektiv luft-vand-varmepumpe, der sikrer en behagelig temperatur året rundt.

Afslapning og leg

Efter en lang gåtur på stranden, der ligger blot 200 meter fra huset, kan I slappe af i den nyrenoverede sauna med glasdør. Nyd den friske havbrise på den åbne terrasse på toppen af klitten, som du nemt kan tilgå via de nye trapper eller på den store terrasse ved huset.

Fitnessentusiaster vil glæde sig over et lille fitnessstativ, mens der er masser af sjov for børn og barnlige sjæle med trampolin og legetårn med rutsjebane. Til dem, der ankommer i elbil, er der en ladestander til rådighed.

Panoramaudsigt, der tager pusten fra dig

Et af højdepunkterne ved dette feriehus er den flotte panoramaudsigt fra første sal. Med store altandøre og et skønt lysindfald fra de moderne rytterlys, skabes en indbydende og afslappende atmosfære til hyggelige stunder. Med butikker kun 1800 meter fra huset, har I alt, hvad I behøver i nærheden.

Feriehuset i Blåvand har alt, hvad I kunne ønske jer, og mere til. Det er det perfekte sted for en pause fyldt med afslapning, sjov og samspil med naturen. Her er noget for enhver smag, uanset om I er til shopping, historie eller fysiske aktiviteter.

Faciliteter

  8 Antal personer
  1 Husdyr tilladt
  1800 m Afstand til indløb
  200 m Afstand til strand
Sauna
Opvaske-maskine
Ikke-ryger

Øvrige faciliteter

Om huset

  Grundareal: 2504 m²
  Husareal: 190 m²
  Byggeår: 1938
  Renoveret: 2022
  Indkøb: 1800 m
  Hav: 200 m
  Personer: 8
  Soveværelser: 3
  Dobbeltsenge: 3
  Sovesofaer: 2
  Dyr
  Brændeovn
  Vaskemaskine
  Opvaske-maskine
  Tørretumbler

Rum

Køkken:
  Køleskab
  Ovn
  Mikroovn

Badeværelse:
  Badeværelser: 2
  Sauna

Underholdning

  Radio
  Tyske TV kanaler

Udendørs

  Liggestole

Betingelser

På ankomstdagen kan nøglen hentes på vores kontor senest kl. 15. Ofte er husene tidligere klar til indflytning, kom gerne ind og spørg om jeres hus er klar. Afrejsetidspunktet er senest kl. 10 eller kl. 9, hvis der er booket slutrengøring.

Beliggenhed

Book huset
Ugekalender 2025
03
04
05
06
07
08
09
10
11
12
13
14
15
16
17
18
19
20
21
22
23
24
25
26
27
28
29
30
31
32
33
34
35
36
37
38
39
40
41
42
43
44
45
46
47
48
49
50
51
52
01
02

Varighed

Valgte periode: Uge
-
Pris: Book dette hus »
Kontakt  Ring mig op

Lignende huse

Fyrvej 9
Blåvand
Pris fra 26.173 DKK
Se mere
Sønder-Vasevej 2B
Blåvand
Pris fra 20.813 DKK
Se mere
Skallingevej 7B
Ho
Pris fra 19.263 DKK
Se mere
Pouls Bjerge 6
Blåvand
Pris fra 15.623 DKK
Se mere