« Tilbage

Autentisk sommerhus med udsigt til Vesterhavet

Katalognr.: i6313

Lodbergsvej 199, Søndervig

Leder I efter et hyggeligt og charmerende sommerhus beliggende midt i den skønne ferieby ? Søndervig, så kunne det skønne sommerhus på 146 m2 på Lodbergsvej 199 være et rigtig godt bud. Sommerhuset råder over plads til familien på 6 personer eller gode venner, der ønsker at holde ferie sammen i ægte feriestemning.

Personlig, nydelig og hyggelig indretning ? Ægte sommerhusstemning

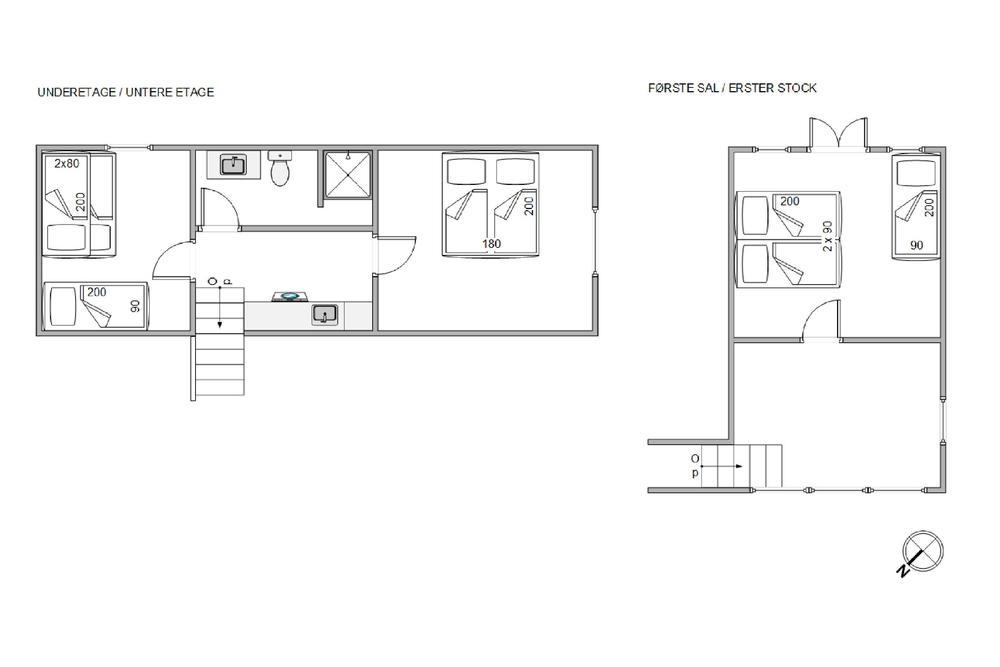
I det skønne sommerhus på Lodbergsvej 199 vil I med det samme komme til at føle jer velkommen. Sommerhuset er fordelt på 3 etager. Når I træder ind i sommerhuset, lander I i stueetagen, hvor I bliver mødt af et stort og dejligt opholdsrum. Derudover finder I den meget charmerende og smagfuldt indrettet stue, hvor der er kredset for at gøre det rigtig hyggeligt for jer som gæster.

I samme plan finder I det åbne samtalekøkken i romantisk stil med koge-ø og spiseplads i den ene ende af lokalet. Under morgenmaden, middagen og lignende kan I nyde den skønne udsigt over den omkringliggende natur. Der er altså rig mulighed for, at I rigtig kan nyde hinandens selskab i disse skønne rammer. I stueetagen finder I også et lille toilet.

I stuen finder I en luft til luft varmepumpe. Der er ingen radiatorer eller gulvvarme. På badeværelset i stueetagen er det en god idé at medbringe et par ?futter? især om vinteren, da der ikke er gulvvarme.

Nyd en fanstastisk udsigt over Vesterhavet fra 1. sal på Lodbergsvej 199

Når I begiver jer op på første sal er der ydermere et lille opholdsrum med fjernsyn, hvor I herfra også kan nyde den fantastiske havudsigt imens i hygger jer med et glas vin eller lignende i sofaen. Heroppe finder I også et soverum med dobbeltseng. Desuden finder i el-radiatorer, der hjælper til, at I kan opnå en behagelig temperatur.

Kælderen til sommerhuset råder over et badeværelse og 2 soverum, hvor det ene råder over en køjeseng og en enkeltseng, og det andet soverum er udstyret med en dobbeltseng. Alle værelser i kælderen er udstyret med el-radiatorer. Desuden behøver I ikke bekymre jer om de praktiske gøremål, da sommerhuset har en kombimaskine med vaskemaskine og tørretumbler til rådighed, der klarer dette for jer.

Udeareal med skønt terrasseområde og ?udehytte?

Til sommerhuset på Lodbergsvej 199 er der et skønt terrasseområde, hvor I på de lune sommerdage rigtigt kan sidde og nyde de skønne solnedgange med et glas koldt at drikke. Ydermere har I mulighed for at søge læ i den lille udehytte, hvor I vil kunne tage et spil, nyde et glas varmt eller koldt og hygge jer, alt imens det brusende Vesterhav ligger lige i baggrunden.

Inden for få minutter bliver I præsenteret for masser af feriestemning i Søndervig, hvor I har mulighed for at shoppe og spise på restaurant eller café.

Faciliteter

  6 Antal personer
   Husdyr ikke tilladt
  450 m Afstand til indløb
  150 m Afstand til strand
Opvaske-maskine
Ikke-ryger

Øvrige faciliteter

Om huset

  Grundareal: 884 m²
  Husareal: 146 m²
  Byggeår: 1930
  Renoveret: 2020
  Indkøb: 450 m
  Hav: 150 m
  Personer: 6
  Soveværelser: 3
  Enkeltsenge: 1
  Dobbeltsenge: 2
  Køjesenge: 1
  Vaskemaskine
  Opvaske-maskine
  Tørretumbler

Rum

Køkken:
  Køleskab
  Ovn

Badeværelse:
  Badeværelser: 2

Underholdning

  Internet

Udendørs

  Liggestole
  Grill

Betingelser

På ankomstdagen kan nøglen hentes på vores kontor senest kl. 15. Ofte er husene tidligere klar til indflytning, kom gerne ind og spørg om jeres hus er klar. Afrejsetidspunktet er senest kl. 10 eller kl. 9, hvis der er booket slutrengøring.

Beliggenhed

Book huset
Ugekalender 2026
07
DKK
7.703
08
09
10
11
12
13
DKK
8.503
14
15
16
DKK
7.703
17
18
19
20
21
22
23
24
25
26
27
DKK
12.933
28
DKK
16.733
29
30
31
32
DKK
18.313
33
34
35
36
37
38
39
40
41
42
43
DKK
10.723
44
DKK
9.603
45
DKK
5.413
46
DKK
5.413
47
48
49
50
51
52
DKK
12.933
53
DKK
17.523

Varighed

Valgte periode: Uge
-
Pris: Book dette hus »
Kontakt  Ring mig op

Lignende huse

Kræ Degns Vej 63
Klegod
Pris fra 12.943 DKK
Se mere
Holmsland Klitvej 74A
Klegod
Pris fra 19.963 DKK
Se mere
Frans Julius Vej 50
Søndervig
Pris fra 14.423 DKK
Se mere
Lodbergsvej 155
Søndervig
Pris fra 13.583 DKK
Se mere