« Tilbage

Totalrenoveret feriehus med stor terrasse og ugeneret beliggenhed

Katalognr.: i6616

Nordsøvej 458, Søndervig

På en naturskøn plet i det populære Søndervig ligger dette flotte, totalrenoverede (2018) feriehus med plads til 4 personer (og hund). Indretningen er både lys og moderne, en god kombination mellem det stilfulde look og den klassiske sommerhushygge. På den store terrasse finder alle feriegæster hurtigt en plads i solen, og beliggenheden er ganske ugeneret ? tæt på både hav og by.

Stilfuld og hyggelig indretning på én og samme tid her på Nordsøvej 458

Det flotte feriehus på Nordsøvej 458 har i 2018 gennemgået en totalrenovering, og den lækre og moderne stil skinner klart igennem i indretningen, samtidig med, at den klassiske sommerhushygge er bevaret. De lyse farver skaber en imødekommende atmosfære, mens de skarpe kontraster sætten prikken over i?et i de stilfulde omgivelser. I stuen står brændeovnen klar til at sprede ekstra varme og feriestemning, og gennem store vinduespartier har I udsigt til den smukke natur, I er omgivet af.

Det dejlige køkkenalrum i huset, er helt perfekt til at nyde en dejlig ferie. Her er god plads til jer alle, og I ville alle kunne finde lige netop jeres yndlingsspot i nogle af de lækre og komfortable møbler. Her er samtidig også flere store vinduespartier, hvilket altid er hyggeligt, da vinduerne lukker en masse god lys ind og gør, at I kan nyde den omkringliggende natur fra sofaen af. 

Feriehuset har både opvaskemaskine, vaskemaskine og en god stabil internetforbindelse til fri afbenyttelse. Der er vandbåren gulvvarme i hele huset, som mindsker strømomkostningerne. Derudover er der Chromecast i stuen.

Stor, lækker terrasse og gåafstand til hav og by

Rundt om huset går en lækker, stor terrasse, hvor I rigtig kan brede jer ud og nyde de solrige dage. Den naturskønne beliggenhed er helt ugeneret, og I har udsigt til det lyngklædte klitlandskab hele vejen rundt.

I kommer til at bo i gåafstand til både stranden og byen, og der er ingen tvivl om, at ferien kommer til at byde på masser af underholdning for alle aldre. Kun 350 meter skiller jer fra det brusende Vesterhav, som året rundt byder på imponerende naturoplevelser, og Søndervigs hyggelige bymidte kan ligeledes nås på gåben.

Her er I garanteret en fantastisk ferie midt i den flotte natur.

Faciliteter

  4 Antal personer
  1 Husdyr tilladt
  800 m Afstand til indløb
  350 m Afstand til strand
Opvaske-maskine
Ikke-ryger

Øvrige faciliteter

Om huset

  Grundareal: 1208 m²
  Husareal: 72 m²
  Byggeår: 1980
  Renoveret: 2018
  Indkøb: 800 m
  Hav: 350 m
  Personer: 4
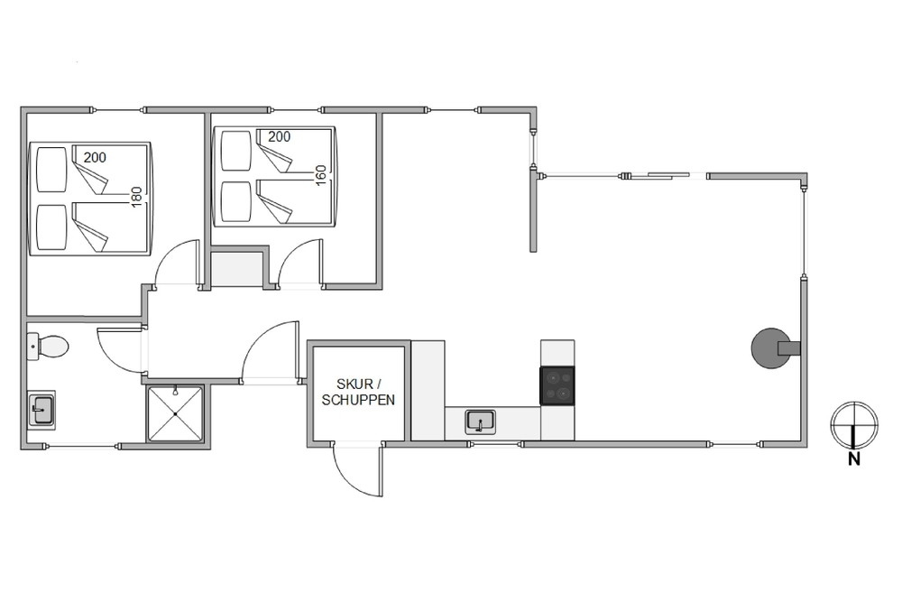
  Soveværelser: 2
  Enkeltsenge: 2
  Dobbeltsenge: 1
  Dyr
  Brændeovn
  Vaskemaskine
  Opvaske-maskine

Rum

Køkken:
  Køleskab
  Ovn
  Mikroovn

Badeværelse:
  Badeværelser: 1

Underholdning

  CD-afspiller
  Radio
  Tyske TV kanaler

Udendørs

  Liggestole
  Grill

Betingelser

På ankomstdagen kan nøglen hentes på vores kontor senest kl. 15. Ofte er husene tidligere klar til indflytning, kom gerne ind og spørg om jeres hus er klar. Afrejsetidspunktet er senest kl. 10 eller kl. 9, hvis der er booket slutrengøring.

Beliggenhed

Book huset
Ugekalender 2025
51
52

Varighed

Valgte periode: Uge
-
Pris: Book dette hus »
Kontakt  Ring mig op

Lignende huse

Fladsbjergvej 65
Klegod
Pris fra 9.137 DKK
Se mere
Hafavej 26
Søndervig
Pris fra 9.557 DKK
Se mere
Wolle Friks Vej 12A
Søndervig
Pris fra 8.227 DKK
Se mere
Klitdalen 45
Houvig
Pris fra 8.217 DKK
Se mere