« Tilbage

Unikt aktivitetshus med sauna, spabad og havudsigt på Fanø

Katalognr.: 72111

Paradisvej 62, Rindby

På Paradisvej 62 på Fanø blot 450m fra stranden ligger dette spændende og lækre feriehus, som byder op til 8 personer velkommen til en uforglemmelig ferie på i alt 280 flot indrettede kvadratmeter med dertilhørende fantastisk udsigt over Fanøs fortryllende natur. Med sine 4 soveværelser og 2 badeværelser tilbyder feriehuset god plads til fx 2 familier eller 4 vennepar ? og jeres firbenede familiemedlem er også hjerteligt velkommen! Huset byder desuden på både spabad, sauna, udespa samt lademulighed til elbil.

Charmerende stråtækt sommerhus med komfort og havudsigt

Foruden den helt specielle byggestil og highlights som fx sauna, spabad,  varmepumpe, brændeovn mm. kan man ikke blive andet end forelsket i den fantastiske udsigt over Fanøs klitlandskab og Vesterhavet, som kan nydes på de mange skønne terrasser, altaner og hyggekroge.

Fra jeres ferieadresse på Paradisvej 62 kan I starte morgengåturen på en af de anlagte stier i nærheden af feriehuset og spadsere gennem klit- og hedelandskabet til stranden og Vesterhavet, som Fanø er kendt og elsket for.

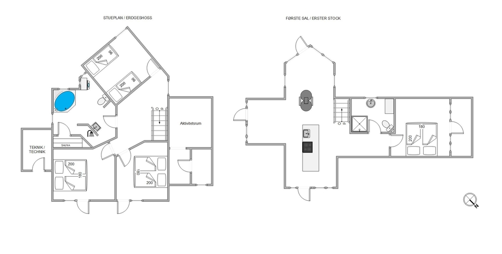
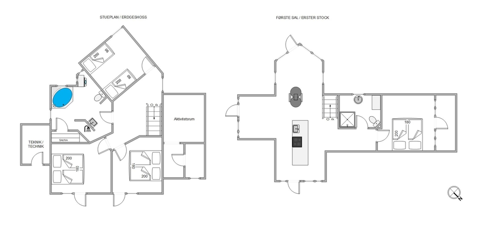
De 4 soveværelser fordeler sig med 3 værelser i stueetagen og 1 på førstesalen, og der er ligeledes et badeværelse på hver etage, sauna og spabad i stueetagen. Dobbeltsengene måler 160×200 cm og alle soveværelser har egen udgang til terrasse/altan.

Køkken og stue med brændeovn er placeret på førstesalen, hvorfra der ligeledes er udgang til de skønneste altaner, hvor du kan byde hver eneste feriedag velkommen med en kop friskbrygget morgenkaffe, mens solen står op og bader klitlandskabet og Vesterhavet i lys.

Feriehuset er udstyret med luft-til-vand varmepumpe, som sørger for gulvvarme i hele huset. Dette er både energiebesparende, som sørger for lune fødder i vinterhalvåret.

Aktivitetsrum samt motionsrum

Udover de mange highlight på velnæs fronten har I også her et motionsrum til rådighed, samt aktivitetsrummet, der er udstyret med både billard, bordtennis og bordfodbold.

Her har I alle muligheder for at afholde en lille familieturnering indenfor de 3 discipliner ? hvem ved ? måske bliver det til en årlig tradition?

Adskillige altaner, terrasser og kun 450m til Vesterhavet!

Lad jer fortrylle af dette sommerhus? helt unikke byggestil, komfortable og charmerede indretning samt de mange terrasser, der giver jer mulighed for at nyde udelivet i fulde drag, uanset vind og vejr. Både altaner og flere terrasser er nemlig delvist overdækkede og afskærmede, og så står der naturligvis havemøbler, solsenge og grill til rådighed. Som et særligt highlight finder I også her udespaen, hvor I kan tilbringe mange hyggelige stunder sammen. Læng jer tilbage med et glas kold vin, og nyd det varme vand under åben himmel.

Fra jeres feriehus på Fanø skal I blot tilbagelægge 450 meter før I står på den brede sandstand. Fanøs strand er noget helt specielt ? gå fx en tur i vandkanten, som ved ebbe vel at mærke er længere væk end ved flod, og gå på skattejagt efter muslingeskaller og rav ? også kendt som havets guld!

På stranden mellem Rindby og Sønderho på Fanø kan I køre i bil, hvilket er en ret speciel oplevelse ? og for gæster med helt små børn eller gangbesværede en stor fordel. Fanø egner sig også rigtig godt til cykeludflugter gennem skov, plantage og langs vandet.

Faciliteter

  8 Antal personer
  1 Husdyr tilladt
  1100 m Afstand til indløb
  450 m Afstand til strand
Sauna
Opvaske-maskine
Ikke-ryger

Øvrige faciliteter

Om huset

  Grundareal: 3001 m²
  Husareal: 280 m²
  Byggeår: 2013
  Renoveret: 2021
  Indkøb: 1100 m
  Hav: 450 m
  Havudsigt
  Personer: 8
  Soveværelser: 4
  Enkeltsenge: 2
  Dobbeltsenge: 3
  Dyr
  Brændeovn
  Vaskemaskine
  Opvaske-maskine
  Tørretumbler

Rum

Køkken:
  Køleskab
  Ovn
  Mikroovn

Badeværelse:
  Badeværelser: 2
  Sauna

Underholdning

  Internet
  CD-afspiller
  DVD-afspiller
  Radio
  Tyske TV kanaler

Udendørs

  Liggestole
  Grill

Betingelser

På ankomstdagen kan nøglen hentes på vores kontor senest kl. 15. Ofte er husene tidligere klar til indflytning, kom gerne ind og spørg om jeres hus er klar. Afrejsetidspunktet er senest kl. 10 eller kl. 9, hvis der er booket slutrengøring.

Beliggenhed

Book huset
Ugekalender 2026
03
DKK
9.953
04
05
DKK
9.953
06
DKK
9.953
07
DKK
10.923
08
09
DKK
9.953
10
11
DKK
9.953
12
DKK
9.953
13
DKK
11.883
14
15
16
DKK
10.923
17
DKK
10.923
18
DKK
11.883
19
DKK
11.883
20
21
22
DKK
13.233
23
24
25
26
27
28
DKK
20.203
29
30
31
32
DKK
21.893
33
DKK
20.973
34
DKK
18.223
35
36
37
38
DKK
11.883
39
DKK
11.883
40
41
DKK
11.883
42
43
44
45
46
47
48
49
50
51
52
DKK
15.653
53
DKK
20.203

Varighed

Valgte periode: Uge
-
Pris: Book dette hus »
Kontakt  Ring mig op

Lignende huse

Toppen 10
Rindby
Pris fra 9.003 DKK
Se mere
Paradisvej 54
Rindby
Pris fra 9.883 DKK
Se mere
Paradisvej 62
Rindby
Pris fra 9.953 DKK
Se mere
Vindgaf 43
Rindby
Pris fra 9.343 DKK
Se mere