« Tilbage

Stråtækt feriehusidyl med pool og spa

Katalognr.: 60514

Per Knoldsvej 28C, Blåvand

Dette charmerende stråtækte sommerhus på Per Knoldsvej 28C byder velkommen til hyggelige feriedage med afslapning for op til 8 personer og 1 hund. Her kan I nyde hinandens selskab rundt om spisebordet, i den hyggelige stue eller i den 14 m2 store pool. Det er ikke kun de menneskelige batterier, der bliver ladet op her, for huset har også en ladeboks til jeres elbil (husk ladekabel/adapter type 2).

Stråtækt idyl, der rimer på hygge

Allerede ved ankomst til Per Knoldsvej 28C falder skuldrene lidt ned, for I rammes straks af feriestemning ved synet af sommerhuset med stråtag. Den afslappede stemning fortsætter, når I kommer ind i sommerhuset, for her er der virkelig mulighed for at være sammen i det store køkken/alrum. I selve køkkenet er der plads til, at I kan hjælpes ad med at tilberede maden, og heldigvis er der en opvaskemaskine til rådighed.

Spisestue og stuen med det dejlige lysindfald ligger i forlængelse af hinanden, og på den måde kan I være sammen hver for sig. Nogle vil måske gerne spille spil ved det store spisebord, mens andre vil hygge sig i sofaerne med en underholdende film eller en god bog ved brændeovnens hyggelige varme.

Soveværelser med god skabsplads til alle

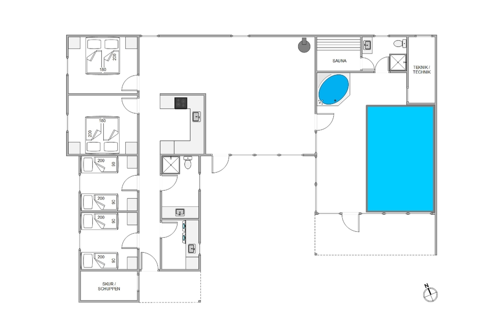
Feriehuset har 4 soveværelser ? 2 med dobbeltsenge og 2 med enkeltsenge ? og på hvert værelse er der 2 skabe, så I har plads til jeres tøj og sager. Derudover er der også 2 badeværelser med gulvvarme. Det ene ligger på værelsesgangen, og det andet ligger i forbindelse med poolrummet ved siden af saunaen.

Der er også et bryggers med både vaskemaskine og tørretumbler samt en mikroovn. Et lille sparetip: Brug sommerhusets miljøvenlige og energibesparende varmepumpe.

Poolrum med sauna og spa 

Den 14 m2 store pool vil med garanti give leg og velvære i mange timer til både store og små. Trænger I til lidt mere forkælelse, står både saunaen og den 2-personers spa klar. 

Stor ugenert grund omkranset af træer

Der er dejligt læ på den 2915 m2 store grund, da de omkringliggende træer skærmer for vestenvinden og giver god mulighed for at nyde udelivet. Feriehuset har flere terrasser, så I har mulighed for at følge solen rundt eller finde skygge. Liggestolene står klar til jer, ligesom gasgrillen kun venter på jeres grillmad.

Den store græsplæne, gyngerne og sandkassen kalder på børn til leg i haven, ligesom familiens hund kan løbe lidt energi af.

Blåvand har mange oplevelsesmuligheder

Den gode feriestemning i Blåvand by ligger kun 1500 meter væk, og her er rige muligheder for shopping, cafébesøg, souvenirkøb og en lækker middag på én af de mange restauranter. I Blåvand finder I også både Blåvand Zoo, Minigolf og museet Tirpitz. Sidst men ikke mindst bør det nævnes, at den smukke hvide strand kun ligger 800 m fra sommerhuset, så der er ikke langt til en forfriskende dukkert eller timer med strandlege.

 

Faciliteter

  8 Antal personer
  1 Husdyr tilladt
  1500 m Afstand til indløb
  800 m Afstand til strand
  14 m Pool
Sauna
Opvaske-maskine
Ikke-ryger

Øvrige faciliteter

Om huset

  Grundareal: 2915 m²
  Husareal: 161 m²
  Byggeår: 1992
  Renoveret: 2015
  Indkøb: 1500 m
  Hav: 800 m
  Personer: 8
  Soveværelser: 4
  Enkeltsenge: 4
  Dobbeltsenge: 2
  Børnestole: 1
  Børnesenge: 1
  Dyr
  Brændeovn
  Svømmepøl
  Vaskemaskine
  Opvaske-maskine
  Tørretumbler

Rum

Køkken:
  Køleskab
  Ovn
  Mikroovn

Badeværelse:
  Badeværelser: 2
  Sauna

Underholdning

  CD-afspiller
  DVD-afspiller
  Radio
  Tyske TV kanaler

Udendørs

  Liggestole
  Grill

Betingelser

På ankomstdagen kan nøglen hentes på vores kontor senest kl. 15. Ofte er husene tidligere klar til indflytning, kom gerne ind og spørg om jeres hus er klar. Afrejsetidspunktet er senest kl. 10 eller kl. 9, hvis der er booket slutrengøring.

Beliggenhed

Book huset
Ugekalender 2025
46
DKK
7.897
47
48
DKK
7.897
49
DKK
7.897
50
DKK
7.897
51
52

Varighed

Valgte periode: Uge
-
Pris: Book dette hus »
Kontakt  Ring mig op

Lignende huse

Fyrvej 9
Blåvand
Pris fra 26.097 DKK
Se mere
Sønder-Vasevej 2B
Blåvand
Pris fra 20.757 DKK
Se mere
Sønder-Vasevej 18
Blåvand
Pris fra 12.117 DKK
Se mere
Horns Rev 20
Blåvand
Pris fra 8.537 DKK
Se mere