« Tilbage

Dejligt aktivitetshus til 12 personer med udespa og udesauna

Katalognr.: 41674

Rævestien 29, Henneby

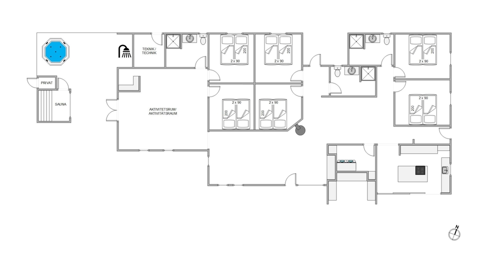
Træd ind i dette luksuriøse sommerhus i Henneby, som er bygget i 2024 og hvor hver detalje er nøje udvalgt for at skabe de rette ferierammer! Sommerhuset på 227 m2 har plads til 12 gæster. Her er et dejligt aktivitetsrum med airhockey, dart, billard og bordtennis, mens den overdækkede terrasse er perfekt til de lune grillaftner! På terrassen venter jer også sauna og spa! Hjertelig velkommen på Rævestien 29.

Direkte ved sommerhuset er der mulighed for at oplade el-bilen ? Lademuligheden for el bilen er en ladestander med type 2 stik.

Moderne og rummeligt aktivitetshus med brændeovn

Som et højdepunkt i sommerhuset finder I aktivitetsrummet med både billard, airhockey og bordtennis. Her kan I udfordre hinanden og få mange timer til at gå! Det samme gør sig gældende i køkkenalrummet, der forbinder stue og køkken. Et dejligt rum, hvor lyset inviteres indenfor. Køkkenet inviterer til fælles madlavning, mens sofaarrangementet indbyder til hyggelige spilleaftener eller film. Gør det hele ekstra hyggeligt ved at tænde den hyggelige brændeovn.

Alle hverdagens hjælpere i form af opvaskemaskine, vaskemaskine og tørretumbler står selvfølgelig til rådighed, og der er gulvvarme i både opholdsrum, soveværelser og badeværelser. Sommerhuset har 3 badeværelser samt 6 gode soveværelser. På alle soveværelser finder I gode senge, der sikrer jer en god nattesøvn.

Overdækket terrasse og lækre wellnessoplevelser med udendørs spa og sauna

Med ferieadresse på Rævestien 29 får I masser af mulighed for at koble af og samle nye kræfter i løbet af ferien. Der er lagt op til lækre wellnessoplevelser udendørs. Efter en aktiv dag kan hele familien slappe af i udespaen og mærke, hvordan boblerne masserer de trætte muskler. Ønsker I mere intens afslapning, kan I tænde saunaen ? praktisk er her også en udebruser*, så I kan blive kølet ned eller skylle sandet af fødderne efter en dejlig dag på stranden.

Også på terrassen kan I holde de hyggeligste grillaftner. Mens børnene leger på den grønne græsplæne, kan I dække op under overdækningen og tænde op i gasgrillen ? følelsen af ægte sommer! Nyd maden sammen med et køligt glas rosé og se børnene lege på plænen, gynge eller bygge sandslotte i sommerhusets sandkasse.

Tæt på skønne aktiviteter

I nærheden har I mange skønne naturoplevelser. Ikke langt fra sommerhuset ligger Blåbjerg Klitplantage, der byder på gode vandre- og cykelstier, som I kan opleve den smukke natur fra. Desuden har I kun 2,2 kilometer til Vesterhavet og de brede sandstrande, som er et besøg værd på alle tider af året.

Området omkring sommerhuset byder på en bred vifte af aktiviteter, der sikrer, at hver dag kan blive fyldt med nye oplevelser. Det kunne blandt andet være en familiedyst på golfbanen, smage en god fed softice eller besøge de fine butikker. Ved hjælp af bil kan I hurtigt nå frem til andre gode steder såsom Tirpitz, Givskud Zoo, hvor I kan komme helt tæt på dyrene. I kan også besøge LEGOLAND og nyde en hel dag med familien og masser af sjove forlystelser.

* Udebruser kan benyttes fra 01. april til 31 oktober

Faciliteter

  12 Antal personer
   Husdyr ikke tilladt
  2000 m Afstand til indløb
  2200 m Afstand til strand
Opvaske-maskine
Ikke-ryger

Øvrige faciliteter

Om huset

  Grundareal: 2423 m²
  Husareal: 227 m²
  Byggeår: 2024
  Indkøb: 2000 m
  Hav: 2200 m
  Personer: 12
  Soveværelser: 6
  Dobbeltsenge: 6
  Brændeovn
  Vaskemaskine
  Opvaske-maskine
  Tørretumbler

Rum

Køkken:
  Køleskab
  Ovn
  Mikroovn

Badeværelse:
  Badeværelser: 3

Underholdning

  Radio
  Tyske TV kanaler

Udendørs

  Liggestole

Betingelser

På ankomstdagen kan nøglen hentes på vores kontor senest kl. 15. Ofte er husene tidligere klar til indflytning, kom gerne ind og spørg om jeres hus er klar. Afrejsetidspunktet er senest kl. 10 eller kl. 9, hvis der er booket slutrengøring.

Beliggenhed

Book huset
Ugekalender 2026
07
08
09
10
11
12
13
14
15
16
17
18
19
20
21
22
23
24
25
26
27
28
DKK
23.403
29
DKK
24.533
30
31
32
33
34
35
36
37
38
39
40
41
DKK
12.363
42
43
44
45
46
47
48
49
50
51
52
DKK
17.993
53

Varighed

Valgte periode: Uge
-
Pris: Book dette hus »
Kontakt  Ring mig op

Lignende huse

Klitvej 23
Henne Strand
Pris fra 16.203 DKK
Se mere
Drosselvej 2
Henne Strand
Pris fra 19.235 DKK
Se mere
Strandgodsvej 17
Henneby
Pris fra 8.683 DKK
Se mere
Rævestien 29
Henneby
Pris fra 12.363 DKK
Se mere