« Tilbage

Feriehus med udsigt til klitlandskab ved Vesterhavet

Katalognr.: A1332

Redningsvejen 39, Nymindegab

På Redningsvejen 39 i Nymindegab ligger dette sommerhus fra 1945 skønt placeret på en bakketop. Fra sommerhuset har I udsigt ud over klitlandskabet, der ligger mod vest.

Sommerhus med brændeovn

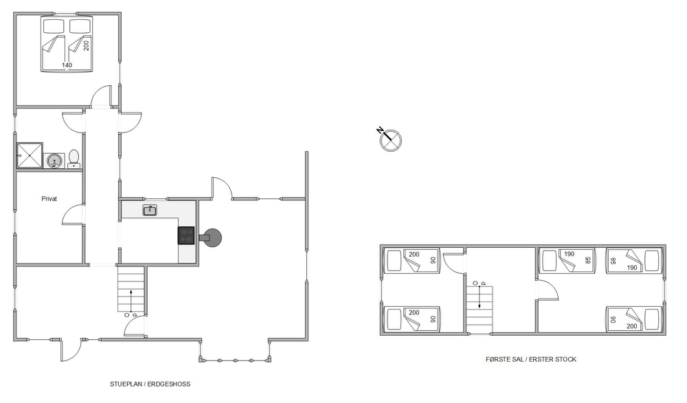
Sommerhusets 125 m² fordeler sig på 2 etager, der er indrettet med synlige bjælker i loftet. I stueplan finder I køkken, spisestue og stue, der hver har sit eget rum. I spisestuen kan I samles til gode måltider og måske lægge et puslespil efter maden?

I stuen med brændeovn kan du nyde en kop kaffe og en god bog på bænken i vindueskarmen eller i en af lænestolene. Herfra har du den skønneste udsigt over Vesterhavets klitter. I kan med fordel benytte varmepumpen til at holde en behagelig temperatur i rummet.

I stueplan ligger også sommerhusets badeværelse med gulvvarme samt et soveværelse indrettet med dobbeltseng. På 1. sal finder I de resterende sovepladser fordelt på 2 værelser med enkeltsenge. Vær opmærksom på, at der på 1. salen er lavt til loftet. 

Naturgrund med udsigt

Sommerhuset ligger på en fin naturgrund, hvorfra I også har udsigt over det smukke landskab mod vest. Grunden ligger på en bakketop og er afskærmet af træer og buske. Placeringen på bakketoppen gør, at sommerhuset ikke er egnet til gangbesværede. Fra parkeringspladsen fører trapper jer op til feriehuset.

Til aften kan I tænde op i grillen og holde en hyggelig grillaften. Maden kan nydes på terrassen, mens morgendagens ferieaktiviteter planlægges.

Ferie ved Nymindegab

Sommerhuset ligger i Nymindegab, der er et skønt feriested syd for Ringkøbing Fjord og nær Vesterhavet. Fra sommerhuset har I 1,3 kilometer til Vesterhavet, der indbyder til gode gåture.

Til nærmeste indkøb er der 6,5 kilometer. I kan handle ved den lokale købmand i Bjerregård, og ellers ligger Nørre Nebel heller ikke langt herfra. Her finder I et udvalg af både supermarkeder og specialbutikker. Ved campingpladsen i Nymindegab finder i et minimarked samt et badeland, legeplads og minigolfbane, som helt sikkert vil være et hit hos børnene. Desuden finder I LocalFood på Nymindegabs hovedvej, hvor I kan købe lokale specialiteter til aftensmaden, eller tag ud og spise på Nymindegab Kro. 

Til natur- og fugleelskere kan det i høj grad anbefales at besøge Tipperne, der er et af Europas vigtigste fuglereservater. Her er der mulighed for at se ænder, gæs, snepper, hjejler m.m. alt efter årstiden.

Faciliteter

  6 Antal personer
   Husdyr ikke tilladt
  6500 m Afstand til indløb
  1300 m Afstand til strand
Opvaske-maskine
Ikke-ryger

Øvrige faciliteter

Om huset

  Grundareal: 3000 m²
  Husareal: 125 m²
  Byggeår: 1945
  Renoveret: 2005
  Indkøb: 6500 m
  Hav: 1300 m
  Havudsigt
  Personer: 6
  Soveværelser: 3
  Enkeltsenge: 5
  Dobbeltsenge: 1
  Brændeovn
  Opvaske-maskine

Rum

Køkken:
  Køleskab
  Ovn

Badeværelse:
  Badeværelser: 1

Underholdning

  Radio
  Tyske TV kanaler

Udendørs

  Liggestole
  Grill

Betingelser

På ankomstdagen kan nøglen hentes på vores kontor senest kl. 15. Ofte er husene tidligere klar til indflytning, kom gerne ind og spørg om jeres hus er klar. Afrejsetidspunktet er senest kl. 10 eller kl. 9, hvis der er booket slutrengøring.

Beliggenhed

Book huset
Ugekalender 2025
43
44
DKK
5.257
45
DKK
3.607
46
DKK
3.607
47
DKK
3.607
48
DKK
3.607
49
DKK
3.607
50
DKK
3.607
51
DKK
3.607
52
DKK
7.287
01
DKK
10.087

Varighed

Valgte periode: Uge
-
Pris: Book dette hus »
Kontakt  Ring mig op

Lignende huse

Jeppesvej 114
Houstrup
Pris fra 5.267 DKK
Se mere
Fyrrekrogen 17
Houstrup
Pris fra 5.017 DKK
Se mere
Skovvang 20
Houstrup
Pris fra 6.177 DKK
Se mere
Hans Hansensvej 7
Houstrup
Pris fra 4.977 DKK
Se mere