« Tilbage

Charmerende sommerhus med pool, spa og sauna

Katalognr.: J0258 (Gl. husnr.: 197)

Sneppedalen 88, Houvig

På Sneppedalen 88 ved Houvig findes dette feriehus på 200 m2. Her får I et stort sommerhus med pool og med plads til én eller to familier. Feriehuset ligger på en flot naturgrund direkte ud til de fredede klitarealer og med en helt fantastisk udsigt. Sommerhuset huser plads til otte personer, og jeres to hunde er mere end velkommne. 

Hyggelig indretning med god plads her på Sneppedalen 88

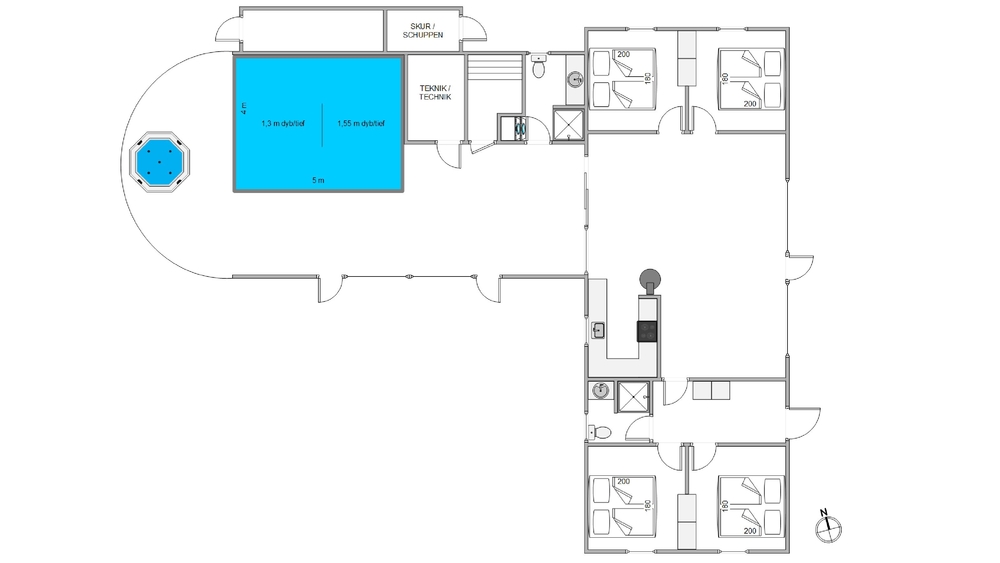
Det 200 m2 store sommerhus har masser af plads både inde og ude. Feriehuset er indrettet med fire soverum, som alle er med dobbeltseng. Det sikrer jer den gode søvn på ferien. Sommerhusets køkken liggger i åben forbindelse med alrummet, hvorfra de store vinduer sikrer et flot lys og en god udsigt til klitlandskabet udenfor. Dertil er sommerhuset indrettet med gode møbler, vaskemaskine, tørretumbler og opvaskemaskine, så ferien bliver så komfortabel som muligt. badeværelest som blev renoveret i 2022 har desuden gulvvarme, så man ikke fryser om fødderne. Feriehuset har naturligvis gratis, trådløst internet, så I kan surfe på nettet.

Perfekt uderum til børn og hund

Uderummet er et sandt paradis for børnene og familiens hund. Her er der masser af plads til at lege på hele den ugenerede grund ned mod klitterne. Terrassen er perfekt til afslapning, som hører ferien til. Og når solen er fremme, kan de voksne trække sig tilbage og nyde varmen på solsengen eller diverse terrassemøbler. 

Underholdning til børnene i sommerhus med pool ? spa og sauna

Med en beliggenhed bare 150 meter fra Vesterhavet er I kun nogle få minutters gang fra en rigtig dejlig strand. Her kan I få sand mellem tæerne og nyde den friske natur. Hvis vejret er dårligt, så er det dog ingen hindring. Sommerhuset har nemlig en dejlig 16 m2 stor pool, som sikrer underholdning til børnene fra morgen til aften. De vil elske at plaske rundt i vandet ? og der er selvfølgelig også plads til, at de voksne kan snuppe et par forfriskende baner frem og tilbage. Poolen bliver opvarmet med en energivenlig varmepumpe, hvilket betyder et mindre forbrug.

Sommerhuset har desuden en dejlig stor spa til fire personer med en flot udsigt til landskabet og en skøn sauna. Her tør vi næsten love, at jeres batterier bliver ladt hurtigt op igen. Alt i alt indbyder dette sommerhus til flere skønne timer med afslapning og nærvær med familien. 

Faciliteter

  8 Antal personer
  1 Husdyr tilladt
  1500 m Afstand til indløb
  150 m Afstand til strand
  16 m Pool
Sauna
Opvaske-maskine
Ikke-ryger

Øvrige faciliteter

Om huset

  Grundareal: 2500 m²
  Husareal: 200 m²
  Byggeår: 1992
  Renoveret: 2022
  Indkøb: 1500 m
  Hav: 150 m
  Personer: 8
  Soveværelser: 4
  Dobbeltsenge: 4
  Børnestole: 2
  Dyr
  Brændeovn
  Svømmepøl
  Vaskemaskine
  Opvaske-maskine
  Tørretumbler

Rum

Køkken:
  Køleskab
  Ovn
  Mikroovn

Badeværelse:
  Badeværelser: 2
  Sauna

Underholdning

  CD-afspiller
  DVD-afspiller
  Radio
  Tyske TV kanaler

Udendørs

  Liggestole
  Grill

Betingelser

På ankomstdagen kan nøglen hentes på vores kontor senest kl. 15. Ofte er husene tidligere klar til indflytning, kom gerne ind og spørg om jeres hus er klar. Afrejsetidspunktet er senest kl. 10 eller kl. 9, hvis der er booket slutrengøring.

Beliggenhed

Book huset
Ugekalender 2026
07
DKK
12.853
08
09
10
11
12
13
14
15
16
17
DKK
8.843
18
19
20
21
22
23
DKK
12.853
24
DKK
12.853
25
26
27
28
29
30
31
32
DKK
24.133
33
DKK
22.393
34
35
36
37
DKK
12.853
38
39
40
41
42
43
44
DKK
18.673
45
46
47
48
49
50
51
52
DKK
18.673
53

Varighed

Valgte periode: Uge
-
Pris: Book dette hus »
Kontakt  Ring mig op

Lignende huse

Lodbergsvej 155
Søndervig
Pris fra 13.583 DKK
Se mere
Frans Julius Vej 50
Søndervig
Pris fra 14.423 DKK
Se mere
Holmsland Klitvej 74A
Klegod
Pris fra 19.963 DKK
Se mere
Søtangevej 1 Nr. 7
Holmsland
Pris fra 16.723 DKK
Se mere