« Tilbage

Poolhus perfekt til familieferie og plads til 4 hunde

Katalognr.: 60563

Sydslugen 19, Blåvand

På Sydslugen 19 ligger dette klassiske hyggelige sommerhus med swimmingpool. Sommerhuset er perfekt, hvis flere familier ønsker at holde ferie sammen ? her er nemlig plads til 8 gæster og 4 hunde. Beliggende på en pragtfuld naturgrund med god plads til leg og tæt på Vesterhavet.

Praktisk og velholdt sommerhus perfekt til ferie med børn

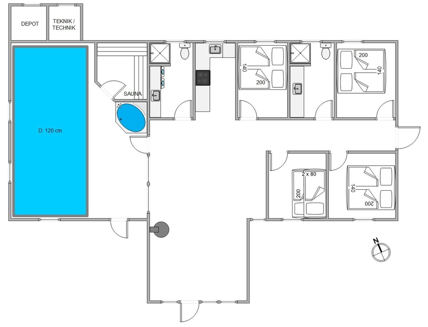
Hjertelig velkommen til dette fine sommerhus på Sydslugen 19. Et lyst og rummeligt feriehus på 165 m2, hvor I er lovet mange skønne timer i poolrummet med adgang til det åbne køkkenalrum. En lille wellness afdeling med 15 m2 swimmingpool, et stort boblebad og sauna ? her er bestemt noget både for voksne og børn. Her er mulighed for timevis af sjov og vandplaskeri i alt slags vejr.

Overalt er huset velholdt og pænt indrettet. Efter en lang dag i vandet kan I finde brætspillene frem, kokkerere et dejligt måltid og slutte aftenen af på den store flydersofa med en god film. For at skabe lidt ekstra hygge kan I tænde op i brændeovnen, der spreder varme og glæde. Som en lille fin detalje er der i stuen store ovenlysvinduer, som virkelig lyser rummet op. I den anden ende af feriehuset, finder I de fire soveværelser. Et værelse er indrettet med en dobbeltseng, 180×200, to værelser med 140×200, mens det fjerde har 2 enkeltsenge, d.v.s. 2x80x200 cm. Et sommerhus hvor I, familie eller venner, helt sikkert vil føle jer godt tilpas.

Afskærmet terrasse og fredeligt sommerhusområde på Sydslugen 19

Beliggende i et roligt sommerhusområde omgivet af den smukke vestjyske natur. Mod nordvest har feriehuset en dejlig fliseterrasse, hvor I kan nyde solskinstimer og de lune sommeraftner med lækker grillmad. Her er der udsigt udover den smukke hede, hvor marehalmen vifter let i vinden. Sæt jer godt til rette i havemøblerne med en god krimi, lad børnene lege og hundene trisse rundt. For de allermindste er her opsat en lille sandkasse samt et gyngestativ, og foran huset findes et stort frit område, som er ideelt til bl.a. drageflyvning.

Blåvand er omgivet af storslået natur, store hede- og skovarealer, de fineste hvide sandstrande, det brusende Vesterhav og Blåvandshuk, som er Danmarks vestligste punkt. Blåvand har et hyggeligt og familievenligt miljø, masser af spændende butikker, indkøbsmuligheder og gode spisesteder. Området byder også på et glaspusteri, bolchekogeri, keramikværksted, ravsliberi samt flere museer.

Faciliteter

  8 Antal personer
  1 Husdyr tilladt
  2000 m Afstand til indløb
  350 m Afstand til strand
  20 m Pool
Sauna
Opvaske-maskine
Ikke-ryger

Øvrige faciliteter

Om huset

  Grundareal: 2520 m²
  Husareal: 165 m²
  Byggeår: 1991
  Renoveret: 2023
  Indkøb: 2000 m
  Hav: 350 m
  Personer: 8
  Soveværelser: 4
  Dobbeltsenge: 3
  Børnestole: 1
  Dyr
  Brændeovn
  Svømmepøl
  Vaskemaskine
  Opvaske-maskine
  Tørretumbler

Rum

Køkken:
  Køleskab
  Ovn
  Mikroovn

Badeværelse:
  Badeværelser: 2
  Sauna

Underholdning

  Tyske TV kanaler

Udendørs

  Liggestole
  Grill

Betingelser

På ankomstdagen kan nøglen hentes på vores kontor senest kl. 15. Ofte er husene tidligere klar til indflytning, kom gerne ind og spørg om jeres hus er klar. Afrejsetidspunktet er senest kl. 10 eller kl. 9, hvis der er booket slutrengøring.

Beliggenhed

Book huset
Ugekalender 2026
07
DKK
11.773
08
09
DKK
8.633
10
11
DKK
9.593
12
13
14
15
16
17
DKK
9.593
18
19
DKK
10.503
20
21
DKK
10.503
22
DKK
11.773
23
24
25
26
27
28
29
30
DKK
21.243
31
32
DKK
21.243
33
DKK
20.303
34
35
36
37
DKK
11.773
38
DKK
10.503
39
DKK
10.503
40
DKK
10.503
41
DKK
10.503
42
43
44
DKK
17.603
45
46
47
48
49
50
51
52
DKK
17.603
53

Varighed

Valgte periode: Uge
-
Pris: Book dette hus »
Kontakt  Ring mig op

Lignende huse

Hans Thuesensvej 32
Blåvand
Pris fra 15.253 DKK
Se mere
Sønder-Vasevej 2B
Blåvand
Pris fra 21.153 DKK
Se mere
Gl. Skolevej 9
Blåvand
Pris fra 19.493 DKK
Se mere
Strandparken 15B
Blåvand
Pris fra 17.056 DKK
Se mere